← Back to Bradford Metropolitan District Council

Status

Pending Consideration Demolition
Received
n/a
New dwellings
0

Summary

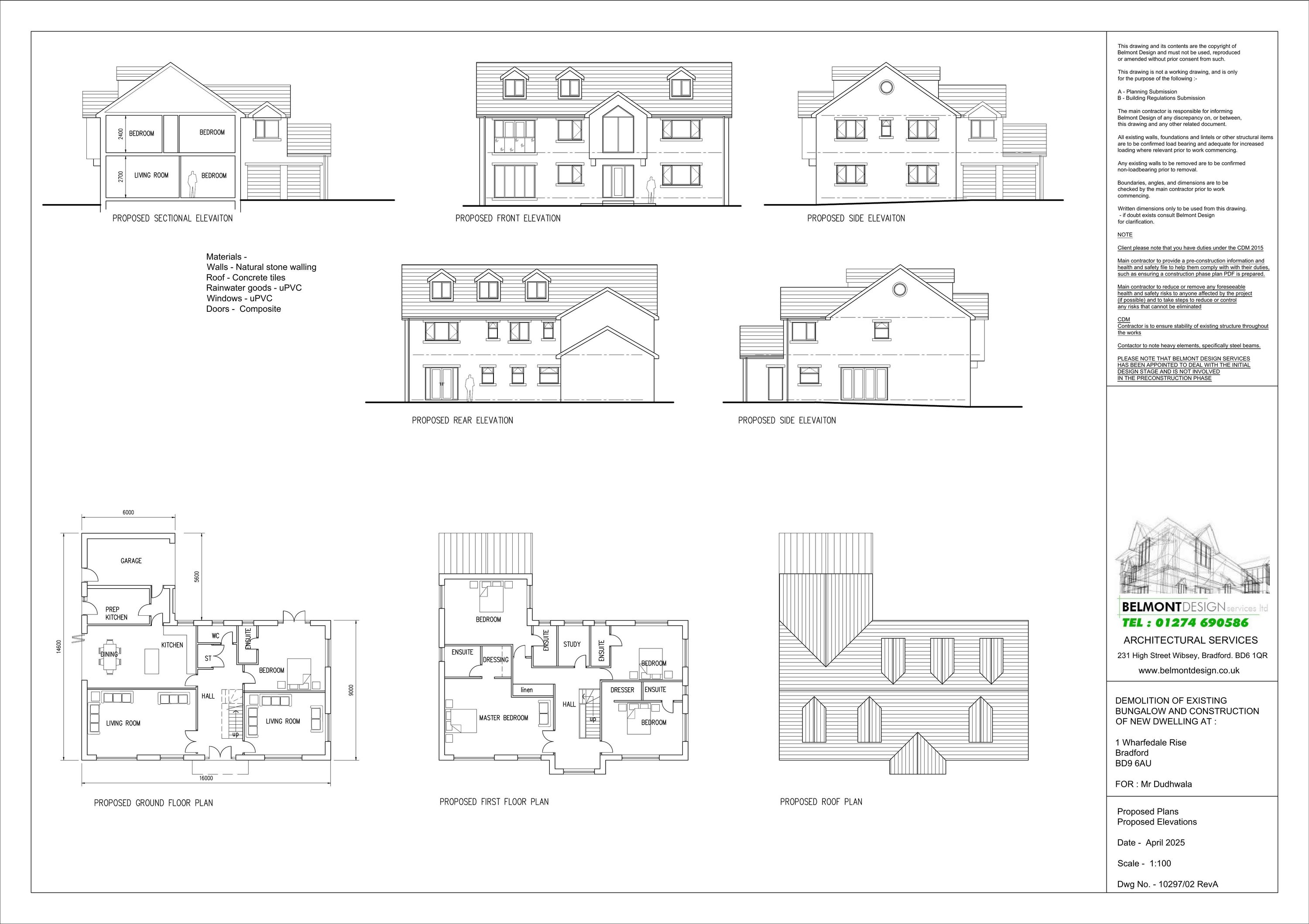
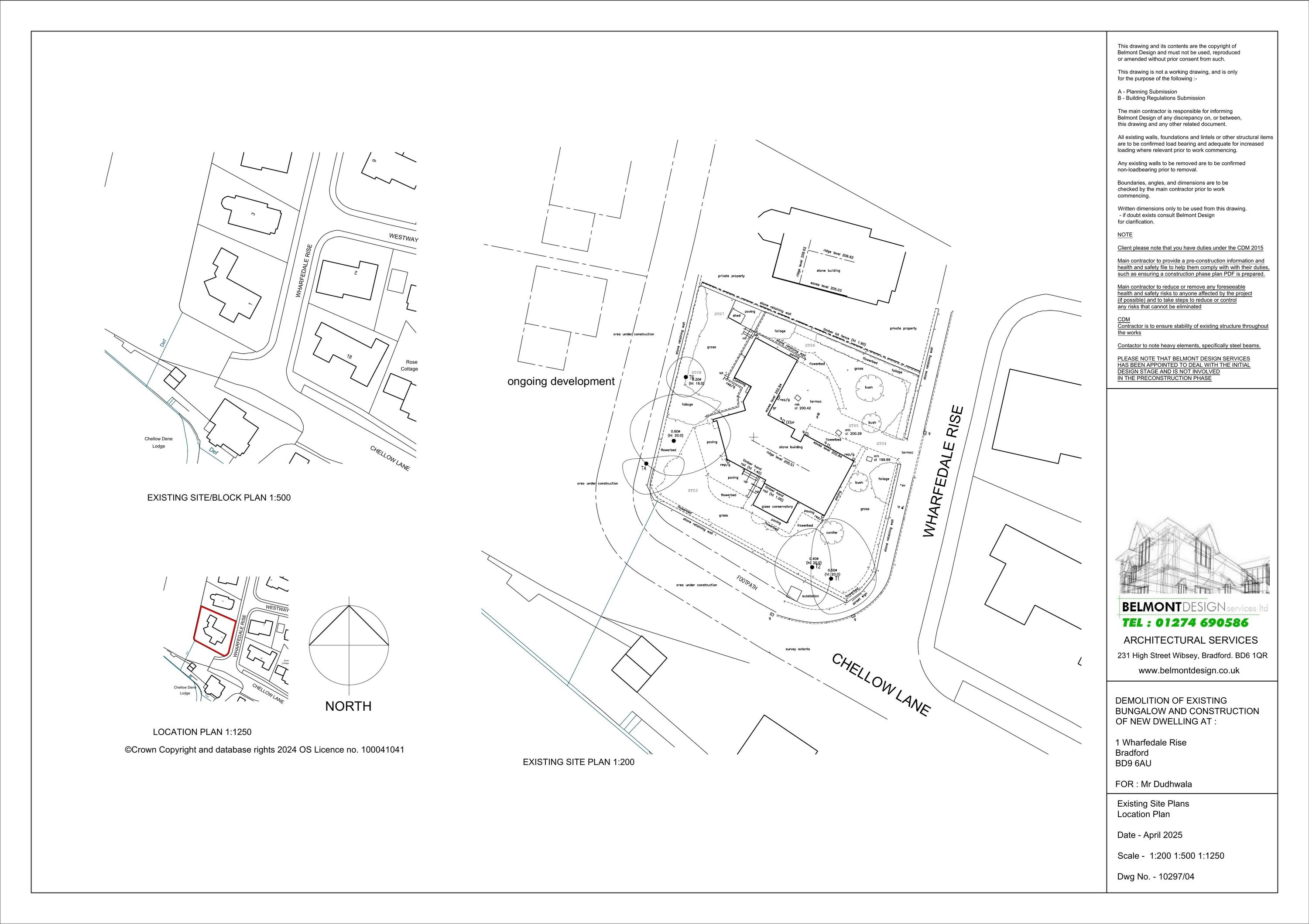
Demolition of existing bungalow and construction of a new dwelling.

Full Proposal

Demolition of existing bungalow and construction of new dwelling

Documents

APPLICATION FORM REDACTED
Application Form
Not archived · Council Link
ARBORICULTURAL IMPACT ASSESSMENT
Supporting Information
Not archived · Council Link
ARBORICULTURAL IMPLICATIONS PLAN
Drawing
Not archived · Council Link
ARBORICULTURAL REPORT
Supporting Information
Not archived · Council Link
BAT EMERGENCE SURVEY
Supporting Information
Not archived · Council Link
BAT ROOST SURVEY
Supporting Information
Not archived · Council Link
CIL FORM 1
Application Form
Not archived · Council Link
CONSULTEE: BIODIVERSITY TEAM
Consultee Comment
Not archived · Council Link
CONSULTEE: BIODIVERSITY TEAM
Consultee Comment
Not archived · Council Link
CONSULTEE: BIODIVERSITY TEAM
Consultee Comment
Not archived · Council Link
CONSULTEE: CHRIS HUGHES - WEST YORKSHIRE POLICE - DOCO
Consultee Comment
Not archived · Council Link
CONSULTEE: TREES TEAM
Consultee Comment
Not archived · Council Link
DESIGN AND ACCESS STATEMENT
Drawing
Not archived · Council Link
EXISTING PLANS
Drawing
Not archived · Council Link
Drawing
Archived · Council Link
HIGHWAYS CONSULTATION RESPONSE
Consultee Comment
Not archived · Council Link
LOCATION PLAN
OS Extract
Not archived · Council Link
Revised Drawing
Archived · Council Link
Revised Drawing
Archived · Council Link
SITE NOTICE
Publicity
Not archived · Council Link
TREE CONSTRAINTS PLAN
Drawing
Not archived · Council Link

Take Action

Make your voice heard. Authorities need to hear from people who support new homes.

✉️ Write Email in Support View on Council Portal