← Back to Bradford Metropolitan District Council

Status

Pending Consideration Change of use
Received
n/a
New dwellings
0

Summary

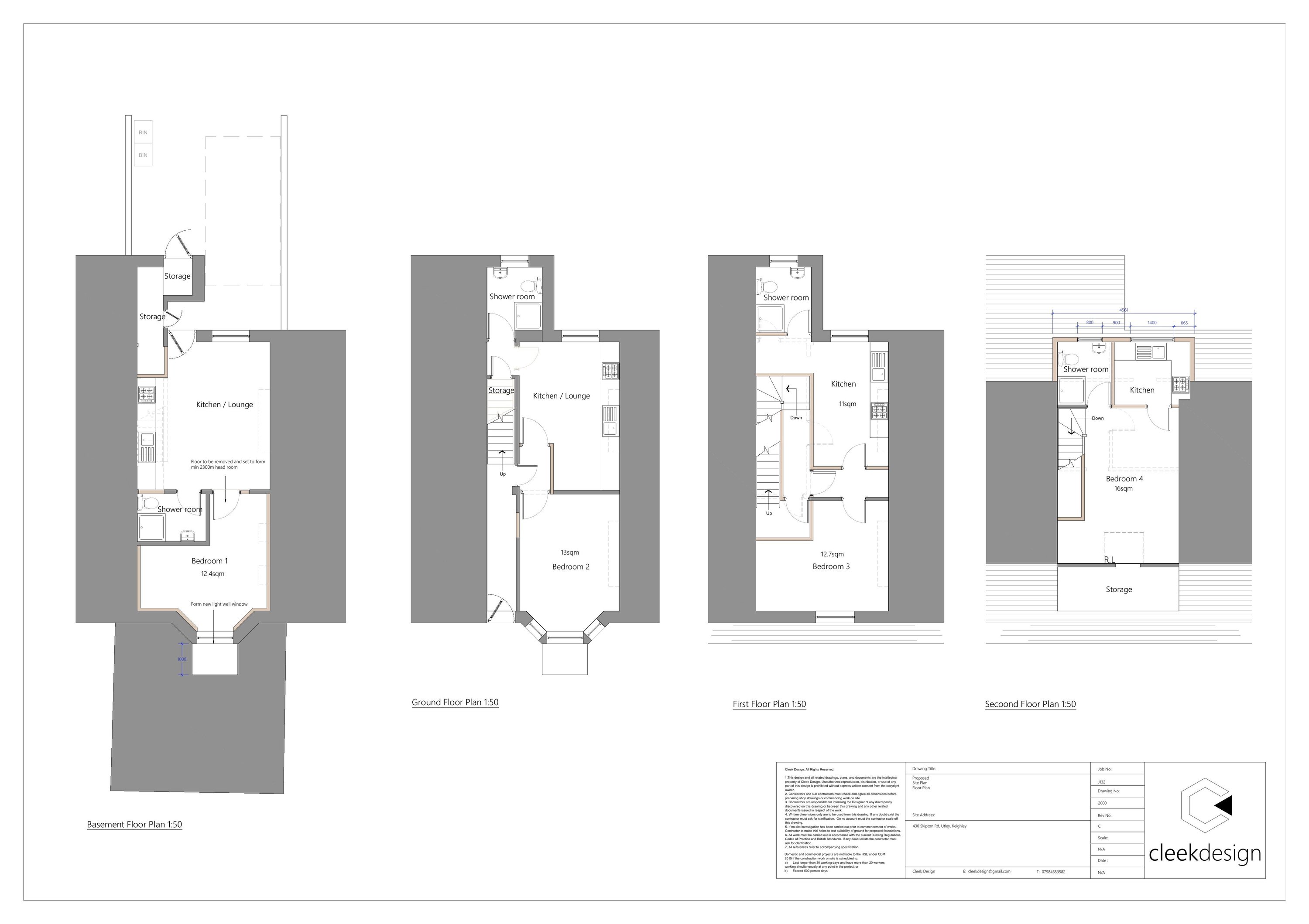
Change from four-bed house to four-bed house in multiple occupation with dormer and parking.

Full Proposal

Change of use from 4-bed house to 4-bed house in multiple occupation plus rear dormer and parking with bike storage to rear

Documents

APPLICATION FORM REDACTED
Application Form
Not archived · Council Link
DESIGN AND ACCESS STATEMENT
Supporting Information
Not archived · Council Link
EXISTING ELEVATIONS
Drawing
Not archived · Council Link
EXISTING LOCATION PLAN
Drawing
Not archived · Council Link
HIGHWAYS CONSULTATION RESPONSE
Consultee Comment
Not archived · Council Link
MR JOE COONEY
Consultee Comment
Not archived · Council Link
MR SHONU MIAH
Consultee Comment
Not archived · Council Link
PROPOSED APARTMENT ELEVATIONS
Drawing
Not archived · Council Link
Revised Drawing
Archived · Council Link
Superseded Drawings
Archived · Council Link
Superseded Drawings
Archived · Council Link
Revised Drawing
Archived · Council Link

Take Action

Make your voice heard. Authorities need to hear from people who support new homes.

✉️ Write Email in Support View on Council Portal