← Back to Bradford Metropolitan District Council

Status

Pending Consideration Change of use
Received
n/a
New dwellings
3

Summary

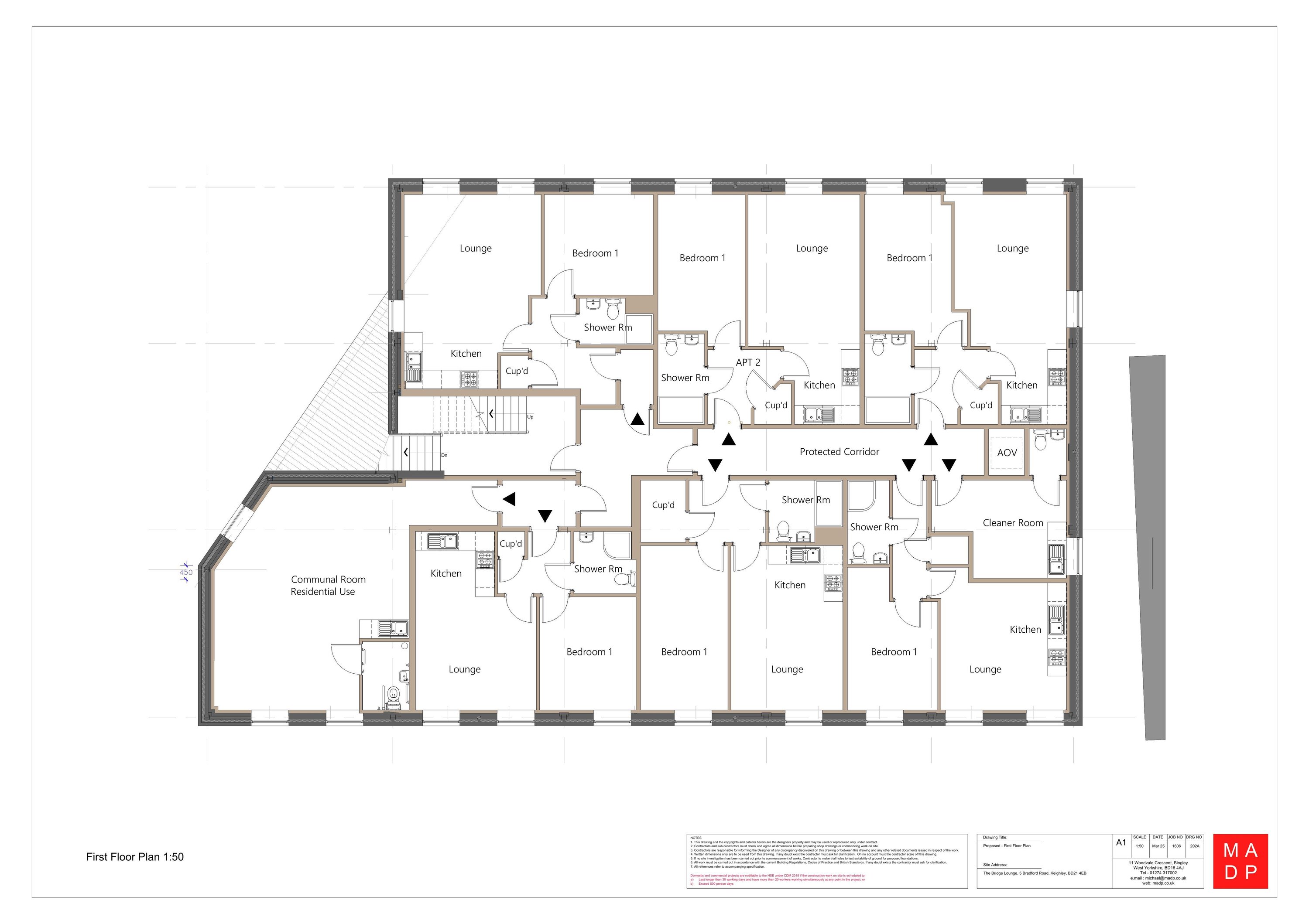
Reconfigure five apartments into eight assisted living units with communal space and staff rooms.

Full Proposal

Change of use and reconfiguration of first and second floors from 5 residential apartments to 8 assisted living units with associated communal living space and two staff rooms

Documents

APPLICATION FORM
Application Form
Not archived · Council Link
APPLICATION FORM REDACTED
Application Form
Not archived · Council Link
CAR PARKING ASSESSMENT
Supporting Information
Not archived · Council Link
CONSULTEE: BIODIVERSITY TEAM
Consultee Comment
Not archived · Council Link
CONSULTEE: CHRIS HUGHES - WEST YORKSHIRE POLICE - DOCO
Consultee Comment
Not archived · Council Link
CONSULTEE: ENVIRONMENTAL HEALTH NUISANCE
Consultee Comment
Not archived · Council Link
CONSULTEE: RIGHTS OF WAY
Consultee Comment
Not archived · Council Link
DESIGN AND ACCESS STATEMENT
Revised Supporting Information
Not archived · Council Link
DESIGN AND ACCESS STATEMENT
Superseded Supporting Information
Not archived · Council Link
EXISTING AND PROPOSED ELEVATIONS
Drawing
Not archived · Council Link
EXISTING FIRST FLOOR PLAN
Superseded Drawings
Not archived · Council Link
FLOOD RISK ASSESSMENT
Supporting Information
Not archived · Council Link
HABITAT MITIGATION AGREEMENT
Habitat Mitigation Form
Not archived · Council Link
HIGHWAYS CONSULTATION RESPONSE
Consultee Comment
Not archived · Council Link
LOCATION PLAN
Superseded Drawings
Not archived · Council Link
MR JOE COONEY
Consultee Comment
Not archived · Council Link
MR SHONU MIAH
Consultee Comment
Not archived · Council Link
PROPOSED FIRST FLOOR PLAN
Superseded Drawings
Not archived · Council Link
Revised Drawing
Archived · Council Link
Revised Drawing
Archived · Council Link
Superseded Drawings
Archived · Council Link
PROPOSED SECOND FLOOR PLAN
Superseded Drawings
Not archived · Council Link
REVISED CIL PAAIR FORM
Application Form
Not archived · Council Link
Superseded Drawings
Archived · Council Link
Revised Drawing
Archived · Council Link

Take Action

Make your voice heard. Authorities need to hear from people who support new homes.

✉️ Write Email in Support View on Council Portal