← Back to Bradford Metropolitan District Council

Status

Pending Decision Change of use
Received
n/a
New dwellings
0

Summary

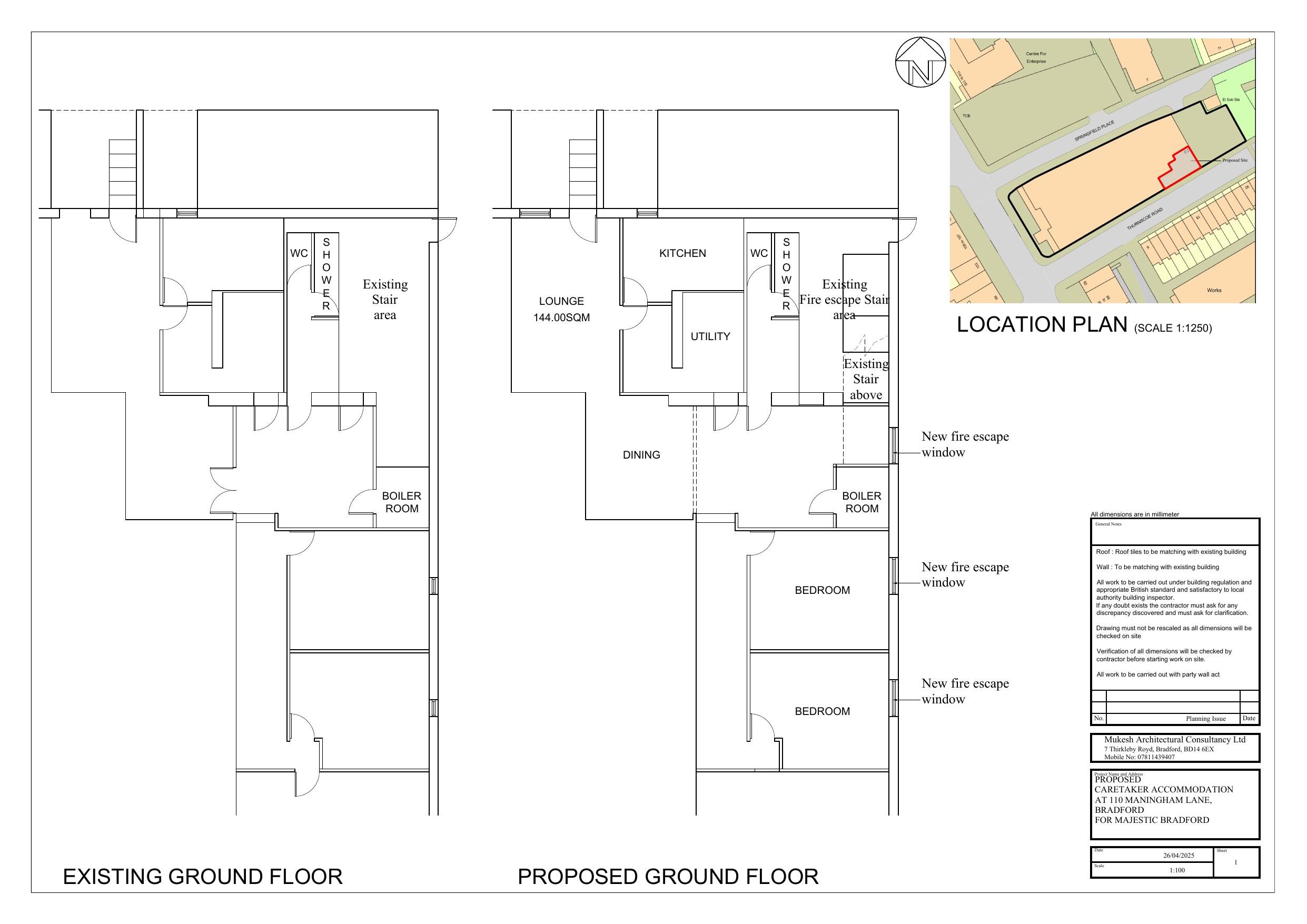
Change of use of existing store to a one 2‑bed caretaker residential unit.

Full Proposal

Change of use of existing store to a 2-bed residential unit for caretaker accommodation. Alterations to existing windows on south elevation

Documents

APPLICATION FORM REDACTED
Application Form
Not archived · Council Link
CONSULTEE: ENVIRONMENTAL HEALTH NUISANCE
Consultee Comment
Not archived · Council Link
EXISTING AND PROPOSED ELEVATIONS
Drawing
Not archived · Council Link
EXISTING AND PROPOSED ELEVATIONS
Drawing
Not archived · Council Link
HIGHWAYS CONSULTATION RESPONSE
Consultee Comment
Not archived · Council Link
SITE NOTICE
Publicity
Not archived · Council Link
SITE NOTICE MAP
Publicity
Not archived · Council Link

Take Action

Make your voice heard. Authorities need to hear from people who support new homes.

✉️ Write Email in Support View on Council Portal