← Back to Bradford Metropolitan District Council

Status

Pending Consideration House extension
Received
n/a
New dwellings
0

Summary

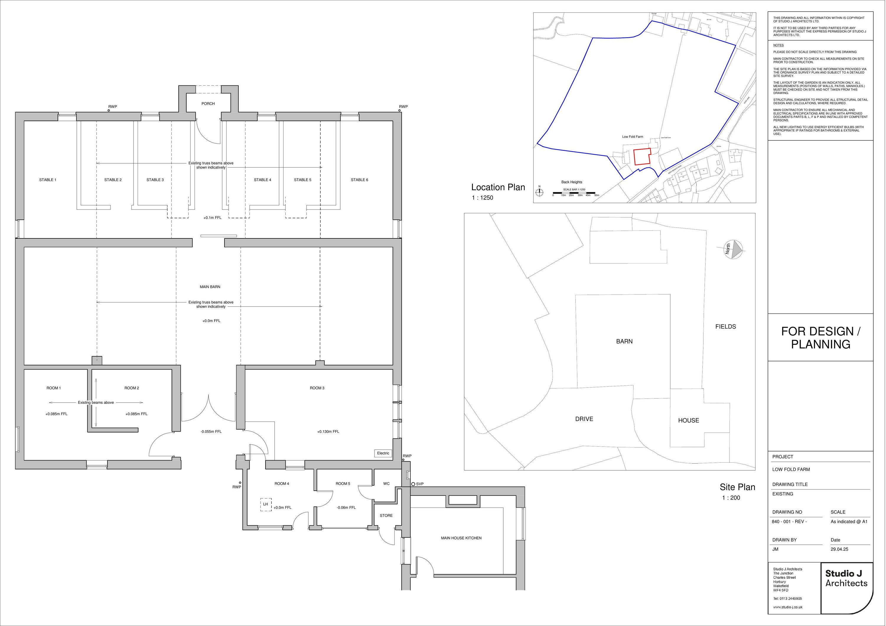
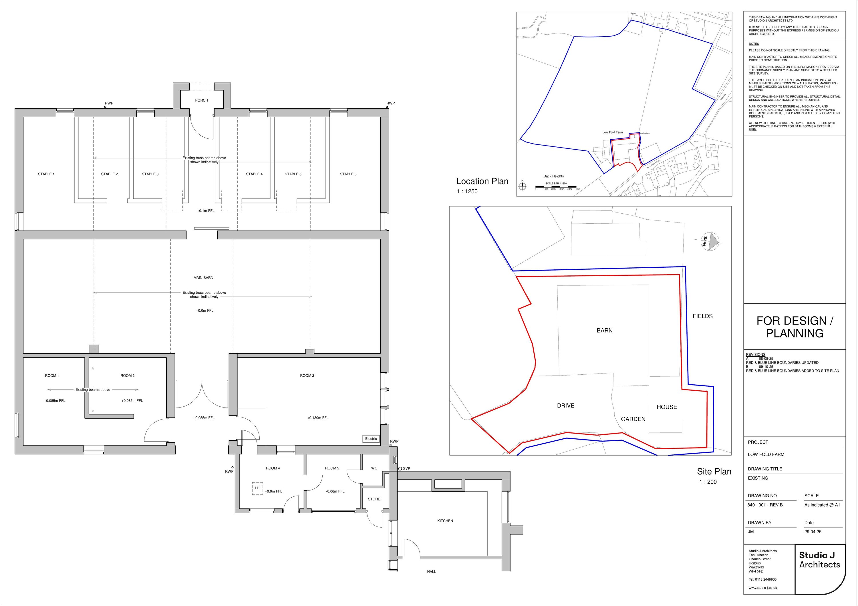
Front extension and change of use/extension of former barn, linked to form one larger dwelling.

Full Proposal

Front extension to main house, change of use and extension of former barn including formation of internal granny annexe, and linking to main house to form 1.No larger dwelling.

Documents

CONSULTEE: BIODIVERSITY TEAM
Consultee Comment
Not archived · Council Link
EXISTING ELEVATIONS AND 3D VIEWS
Drawing
Not archived · Council Link
EXISTING MAIN HOUSE
Drawing
Not archived · Council Link
Superseded Drawings
Archived · Council Link
NEW LOCATION PLAN
OS Extract
Not archived · Council Link
PROPOSED ELEVATIONS AND 3D VIEWS
Drawing
Not archived · Council Link
PROPOSED MAIN HOUSE NEW PORCH
Drawing
Not archived · Council Link
Revised Drawing
Archived · Council Link
Superseded Drawings
Archived · Council Link

Take Action

Make your voice heard. Authorities need to hear from people who support new homes.

✉️ Write Email in Support View on Council Portal