← Back to Bradford Metropolitan District Council

Status

Pending Consideration New housing
Received
n/a
New dwellings
1

Full Proposal

Construction of one detached dwelling and associated works

Documents

APPLICATION FORM REDACTED
Application Form
Not archived · Council Link
ARBORICULTURAL IMPACT ASSESSMENT AND TREE PROTECTION PLAN
Supporting Information
Not archived · Council Link
CIL FORM 1: ADDITIONAL INFORMATION
Application Form
Not archived · Council Link
CONSULTEE: BIODIVERSITY TEAM
Consultee Comment
Not archived · Council Link
CONSULTEE: CHRIS HUGHES - WEST YORKSHIRE POLICE - DOCO
Consultee Comment
Not archived · Council Link
CONSULTEE: DRAINAGE CONSULTATIONS
Consultee Comment
Not archived · Council Link
CONSULTEE: TREES TEAM
Consultee Comment
Not archived · Council Link
HABITAT MITIGATION AGREEMENT
Habitat Mitigation Form
Not archived · Council Link
HIGHWAYS CONSULTATION RESPONSE
Consultee Comment
Not archived · Council Link
LOCATION PLAN
Drawing
Not archived · Council Link
PLANNING STATEMENT - REV 0
Supporting Information
Not archived · Council Link
PRELIMINARY ECOLOGICAL APPRAISAL
Supporting Information
Not archived · Council Link
PROPOSED AXONOMETRIC VIEW 1
Revised Supporting Information
Not archived · Council Link
PROPOSED AXONOMETRIC VIEW 1
Superseded Supporting Information
Not archived · Council Link
PROPOSED AXONOMETRIC VIEW 2
Superseded Supporting Information
Not archived · Council Link
PROPOSED AXONOMETRIC VIEW 2
Revised Supporting Information
Not archived · Council Link
PROPOSED BASEMENT
Superseded Drawings
Not archived · Council Link
PROPOSED ELEVATIONS
Superseded Drawings
Not archived · Council Link
PROPOSED ELEVATIONS
Revised Drawing
Not archived · Council Link
PROPOSED FIRST FLOOR
Superseded Drawings
Not archived · Council Link
PROPOSED FIRST FLOOR PLAN
Revised Drawing
Not archived · Council Link
PROPOSED GA SECTIONS
Superseded Drawings
Not archived · Council Link
PROPOSED GROUND FLOOR
Superseded Drawings
Not archived · Council Link
PROPOSED GROUND FLOOR PLAN
Revised Drawing
Not archived · Council Link
PROPOSED SECOND FLOOR
Superseded Drawings
Not archived · Council Link
PROPOSED SECOND FLOOR PLAN
Revised Drawing
Not archived · Council Link
PROPOSED SECTION
Drawing
Not archived · Council Link
PROPOSED SITE GA SECTION
Superseded Drawings
Not archived · Council Link
Revised Drawing
Archived · Council Link
Superseded Drawings
Archived · Council Link
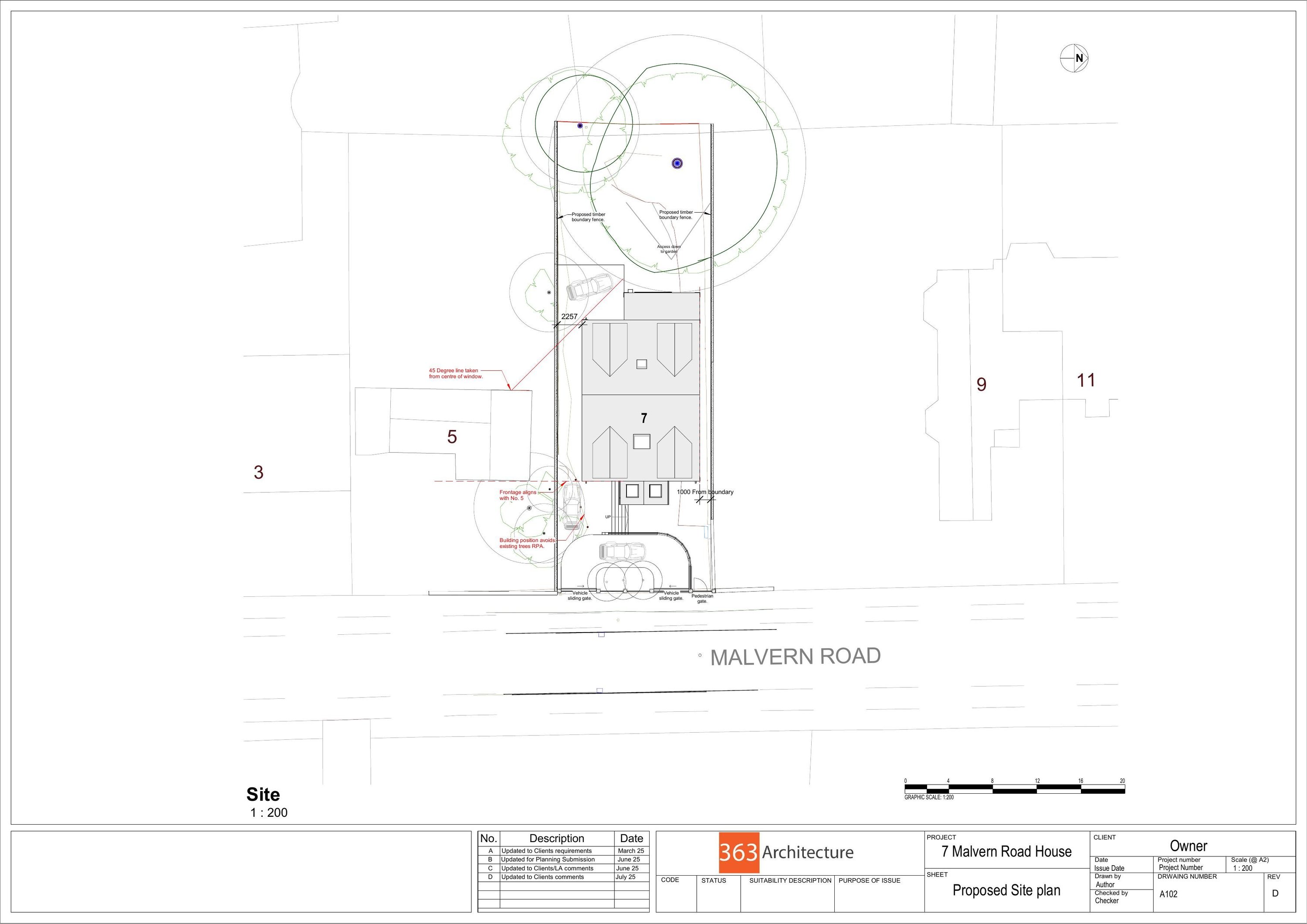
PROPOSED SITE SECTION
Revised Drawing
Not archived · Council Link
SELF BUILD CONFIRMATION
Supporting Information
Not archived · Council Link

Take Action

Make your voice heard. Authorities need to hear from people who support new homes.

✉️ Write Email in Support View on Council Portal