← Back to Bradford Metropolitan District Council

Status

Pending Consideration Demolition
Received
n/a
New dwellings
0

Full Proposal

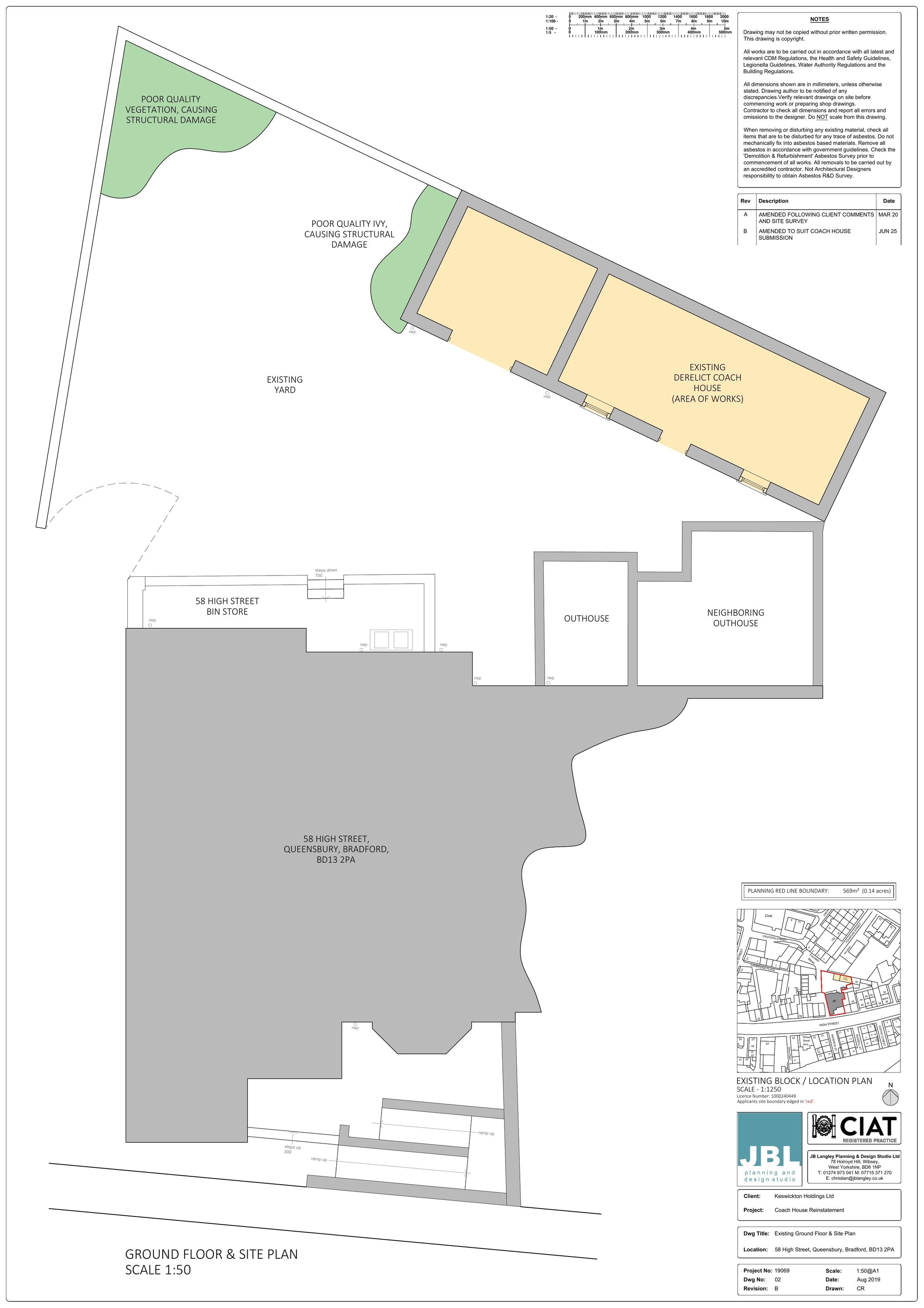
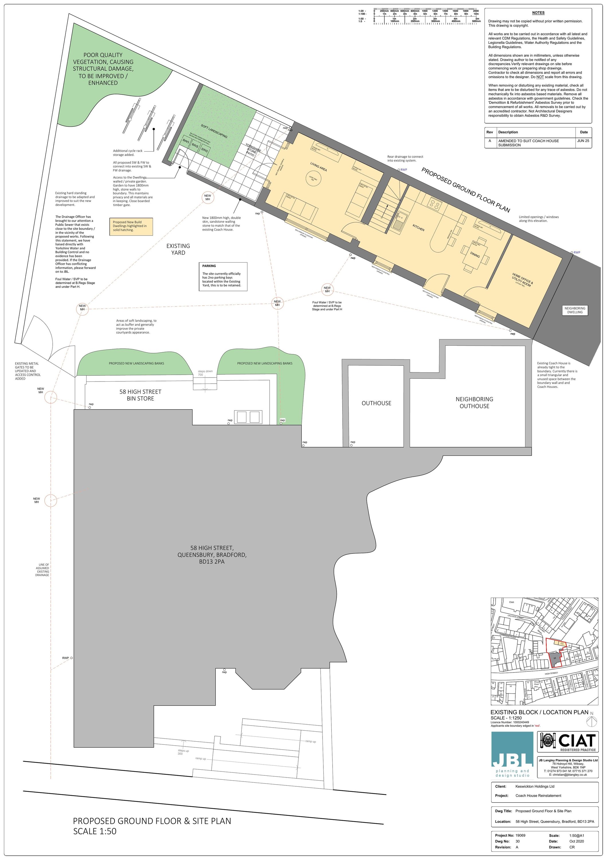
Demolition of existing former coach house and reconstruction to form a detached dwelling

Documents

APPLICATION FORM REDACTED
Application Form
Not archived · Council Link
BIODIVERSITY GAIN PLAN
Supporting Information
Not archived · Council Link
BNG BASELINE PLANS
Supporting Information
Not archived · Council Link
BNG METRIC
Supporting Information
Not archived · Council Link
CONSULTEE: CHRIS HUGHES - WEST YORKSHIRE POLICE - DOCO
Consultee Comment
Not archived · Council Link
CONSULTEE: HERITAGE CONSERVATION CONSULTEE RESPONSE
Consultee Comment
Not archived · Council Link
DESIGN AND ACCESS HERITAGE STATEMENT
Supporting Information
Not archived · Council Link
ER-7969-01 - PRELIMINARY ROOST ASSESSMENT
Supporting Information
Not archived · Council Link
EXISTING & PROPOSED FIRST FLOOR & ROOF PLAN
Drawing
Not archived · Council Link
EXISTING ELEVATIONS
Drawing
Not archived · Council Link
EXISTING ELEVATIONS & PLANNING SECTIONS
Drawing
Not archived · Council Link
HABITAT MITIGATION AGREEMENT
Habitat Mitigation Form
Not archived · Council Link
HIGHWAYS CONSULTATION RESPONSE
Consultee Comment
Not archived · Council Link
PROPOSED ELEVATIONS & PLANNING SECTIONS
Drawing
Not archived · Council Link
Drawing
Archived · Council Link
SITE NOTICE
Publicity
Not archived · Council Link
SITE NOTICE
Publicity
Not archived · Council Link
STRUCTURAL ASSESSMENT
Supporting Information
Not archived · Council Link

Take Action

Make your voice heard. Authorities need to hear from people who support new homes.

✉️ Write Email in Support View on Council Portal