← Back to Bradford Metropolitan District Council

Status

Pending Consideration Change of use
Received
n/a
New dwellings
0

Full Proposal

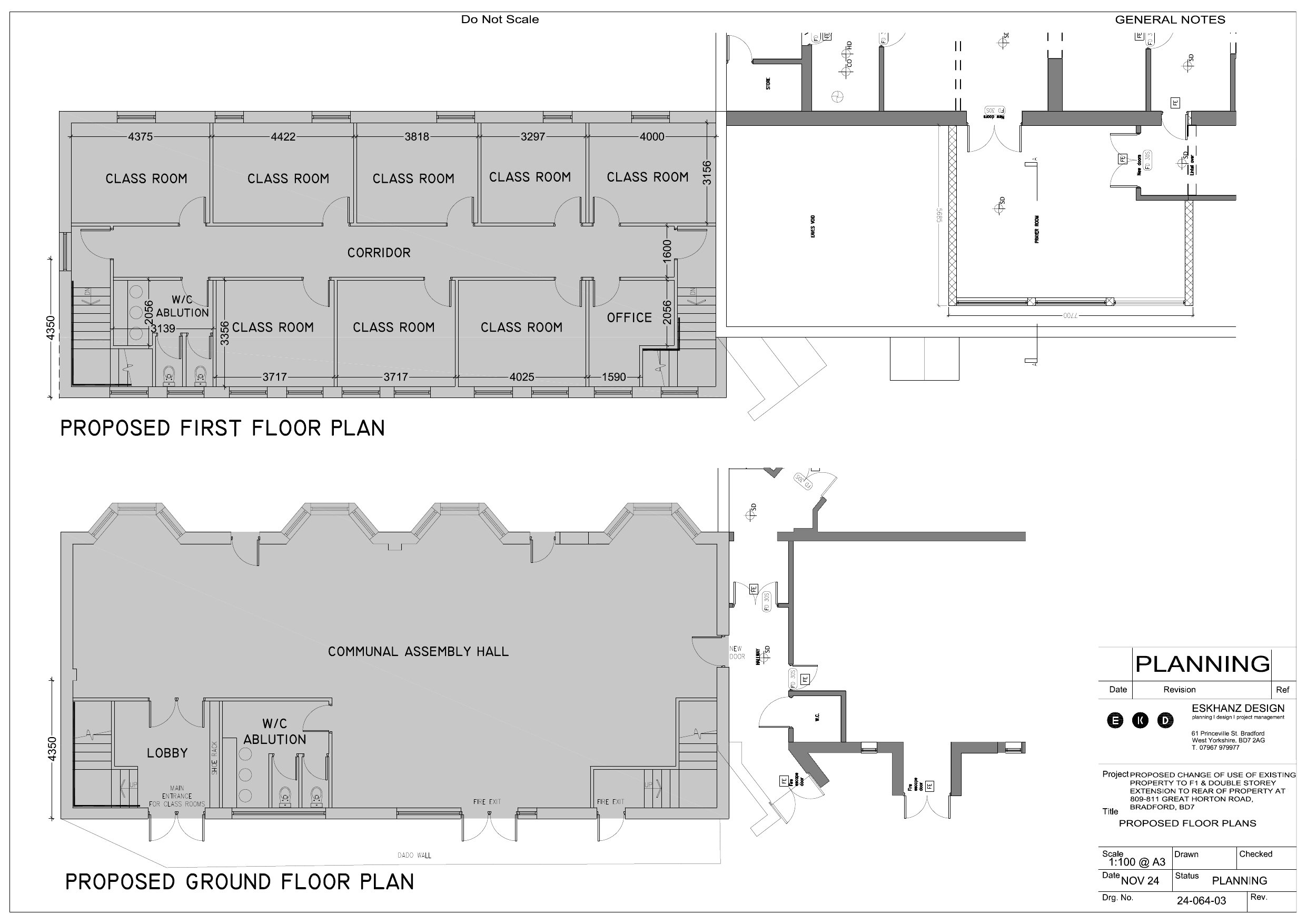
Change of use of existing property to F1 use (Learning and non-residential institutions) and two storey rear extension

Documents

APPLICATION FORM
Application Form
Not archived · Council Link
COAL MINING RISK ASSESSMENT
Supporting Information
Not archived · Council Link
CONSULTEE: DRAINAGE CONSULTATIONS
Consultee Comment
Not archived · Council Link
CONSULTEE: ENVIRONMENTAL HEALTH
Consultee Comment
Not archived · Council Link
CONSULTEE: ENVIRONMENTAL HEALTH
Consultee Comment
Not archived · Council Link
CONSULTEE: ENVIRONMENTAL HEALTH
Consultee Comment
Not archived · Council Link
CONSULTEE: YORKSHIRE WATER SERVICES LTD DEVELOPER SERVICES
Consultee Comment
Not archived · Council Link
DESIGN AND ACCESS STATEMENT
Supporting Information
Not archived · Council Link
EXISTING AND PROPOSED ROOF PLAN
Drawing
Not archived · Council Link
EXISTING ELEVATIONS
Drawing
Not archived · Council Link
EXISTING FLOOR PLANS
Drawing
Not archived · Council Link
EXISTING FLOOR PLANS AND LOCATION PLAN
Drawing
Not archived · Council Link
HIGHWAYS CONSULTATION RESPONSE
Consultee Comment
Not archived · Council Link
PROPOSED ELEVATIONS
Drawing
Not archived · Council Link
PROPOSED ELEVATIONS
Superseded Drawings
Not archived · Council Link
Drawing
Archived · Council Link
Drawing
Archived · Council Link
THE COAL AUTHORITY
Consultee Comment
Not archived · Council Link

Take Action

Make your voice heard. Authorities need to hear from people who support new homes.

✉️ Write Email in Support View on Council Portal