← Back to Bradford Metropolitan District Council

Status

Pending Consideration Change of use
Received
n/a
New dwellings
0

Full Proposal

Partial demolition of existing nursing home. Change of use to a dwellinghouse use (C3). Construction of a single storey rear extension to form snooker room, gym and swimming pool.

Documents

APPLICATION FORM REDACTED
Application Form
Not archived · Council Link
CIL PAAIR FORM
Application Form
Not archived · Council Link
CONSULTEE: DRAINAGE CONSULTATIONS
Consultee Comment
Not archived · Council Link
CONSULTEE: HERITAGE CONSERVATION CONSULTEE RESPONSE
Consultee Comment
Not archived · Council Link
CONSULTEE: TREES TEAM
Consultee Comment
Not archived · Council Link
EXISTING ELEVATIONS
Drawing
Not archived · Council Link
EXISTING FIRST FLOOR PLAN
Drawing
Not archived · Council Link
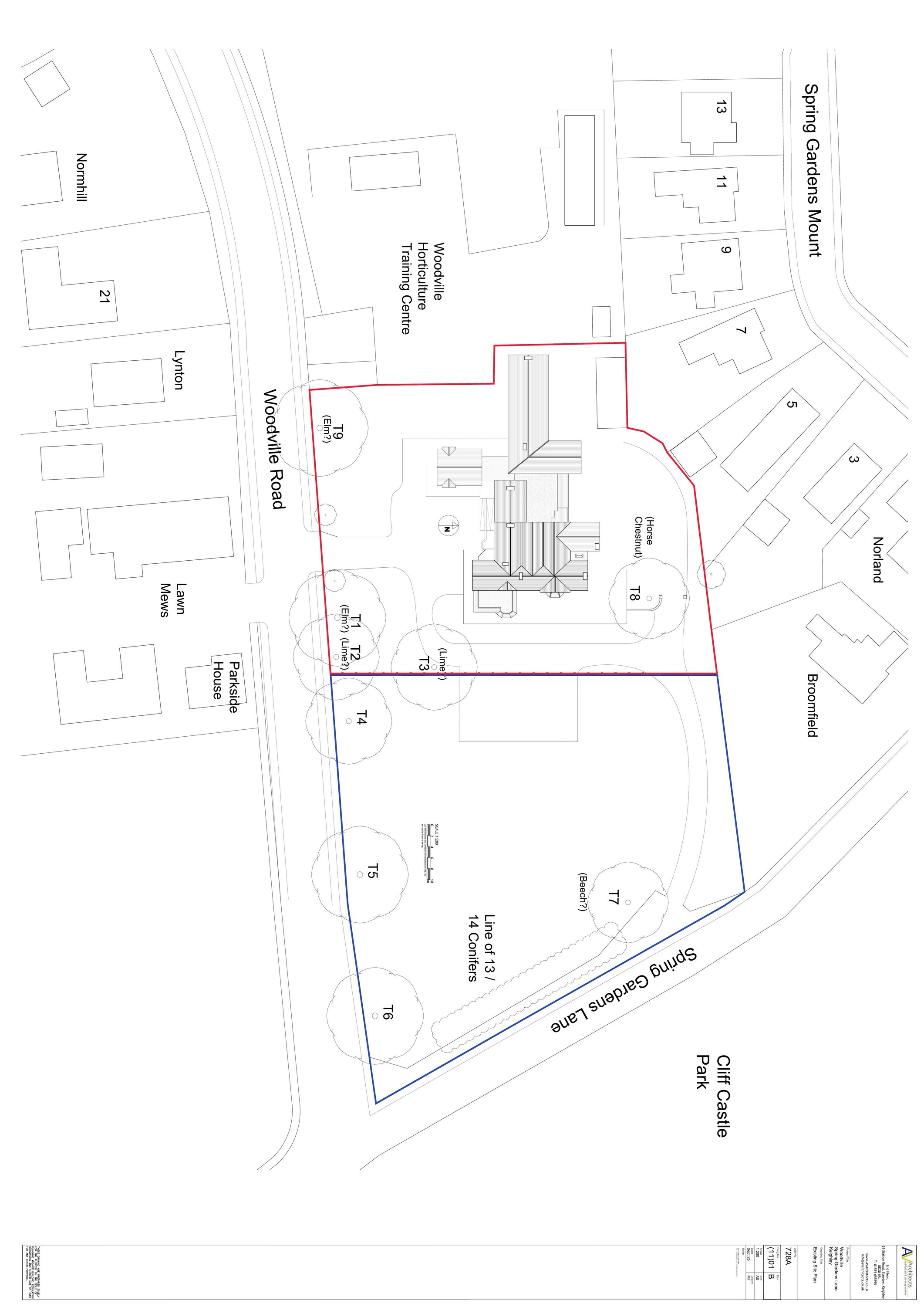
EXISTING GROUND FLOOR PLAN
Drawing
Not archived · Council Link
Drawing
Archived · Council Link
HABITAT MITIGATION AGREEMENT
Habitat Mitigation Form
Not archived · Council Link
HERITAGE STATEMENT
Supporting Information
Not archived · Council Link
MR JOE COONEY
Consultee Comment
Not archived · Council Link
PROPOSED ELEVATIONS
Drawing
Not archived · Council Link
PROPOSED FIRST FLOOR PLAN
Drawing
Not archived · Council Link
PROPOSED GROUND FLOOR PLAN
Drawing
Not archived · Council Link
Drawing
Archived · Council Link
Drawing
Archived · Council Link
SITE NOTICE
Publicity
Not archived · Council Link
SITE NOTICE MAP
Publicity
Not archived · Council Link

Take Action

Make your voice heard. Authorities need to hear from people who support new homes.

✉️ Write Email in Support View on Council Portal