← Back to Bradford Metropolitan District Council

Status

Pending Decision New housing
Received
n/a
New dwellings
2

Summary

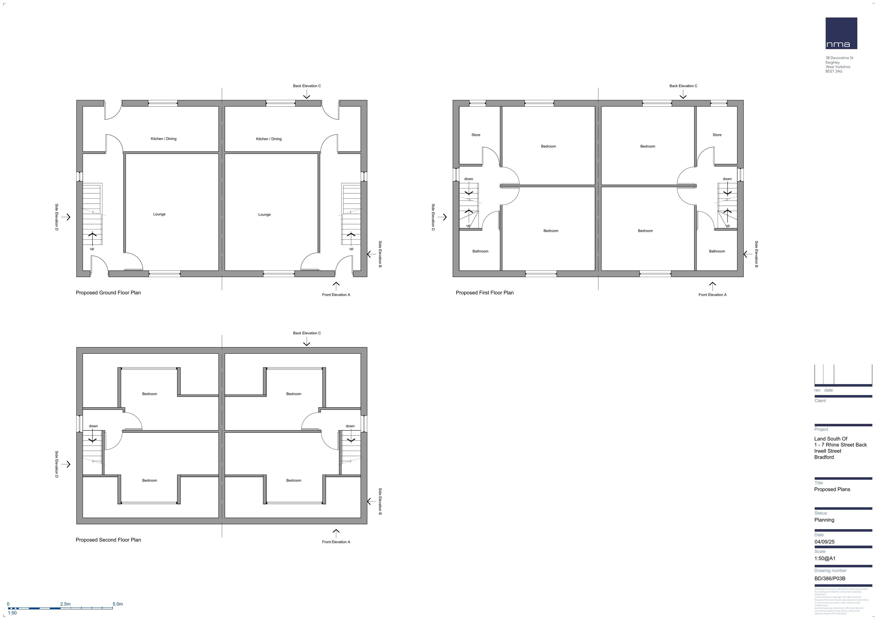
Construction of two dwellings (retrospective).

Full Proposal

Construction of 2 dwellings (Retrospective)

Documents

APPLICATION FORM REDACTED
Application Form
Not archived · Council Link
CIL PAAIR FORM
Application Form
Not archived · Council Link
COAL MINING RISK ASSESSMENT
Supporting Information
Not archived · Council Link
CONSULTEE: CHRIS HUGHES - WEST YORKSHIRE POLICE - DOCO
Consultee Comment
Not archived · Council Link
CONSULTEE: DRAINAGE CONSULTATIONS
Consultee Comment
Not archived · Council Link
DESIGN AND ACCESS STATEMENT
Supporting Information
Not archived · Council Link
DRAINAGE PLAN
Supporting Information
Not archived · Council Link
DRAINAGE STRATEGY
Supporting Information
Not archived · Council Link
EXISTING ELEVATIONS
Drawing
Not archived · Council Link
EXISTING FLOOR PLANS
Drawing
Not archived · Council Link
EXISTING PLANS
Drawing
Not archived · Council Link
HIGHWAYS CONSULTATION RESPONSE
Consultee Comment
Not archived · Council Link
LOCATION PLAN
OS Extract
Not archived · Council Link
PERCOLATION REPORT
Supporting Information
Not archived · Council Link
PROPOSED BIN STORE DETAILS
Drawing
Not archived · Council Link
PROPOSED ELEVATIONS
Drawing
Not archived · Council Link
PROPOSED ELEVATIONS
Revised Drawing
Not archived · Council Link
PROPOSED ELEVATIONS
Revised Drawing
Not archived · Council Link
PROPOSED ELEVATIONS SHOWING 25 DEGREE LINE
Drawing
Not archived · Council Link
Drawing
Archived · Council Link
Drawing
Archived · Council Link
Drawing
Archived · Council Link
THE COAL AUTHORITY
Consultee Comment
Not archived · Council Link

Take Action

Make your voice heard. Authorities need to hear from people who support new homes.

✉️ Write Email in Support View on Council Portal