← Back to Bradford Metropolitan District Council

Status

Pending Consideration New housing
Received
n/a
New dwellings
1

Full Proposal

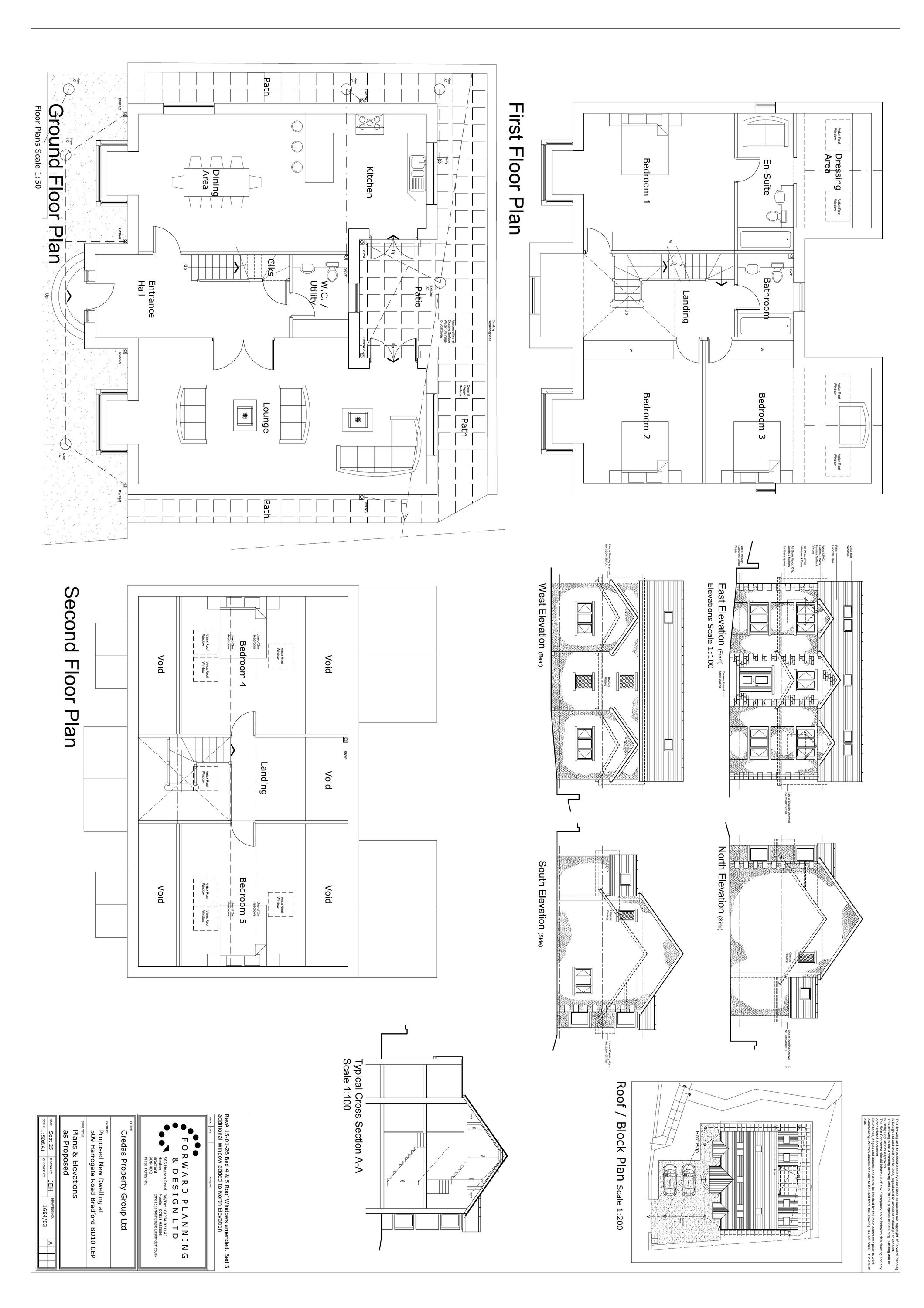
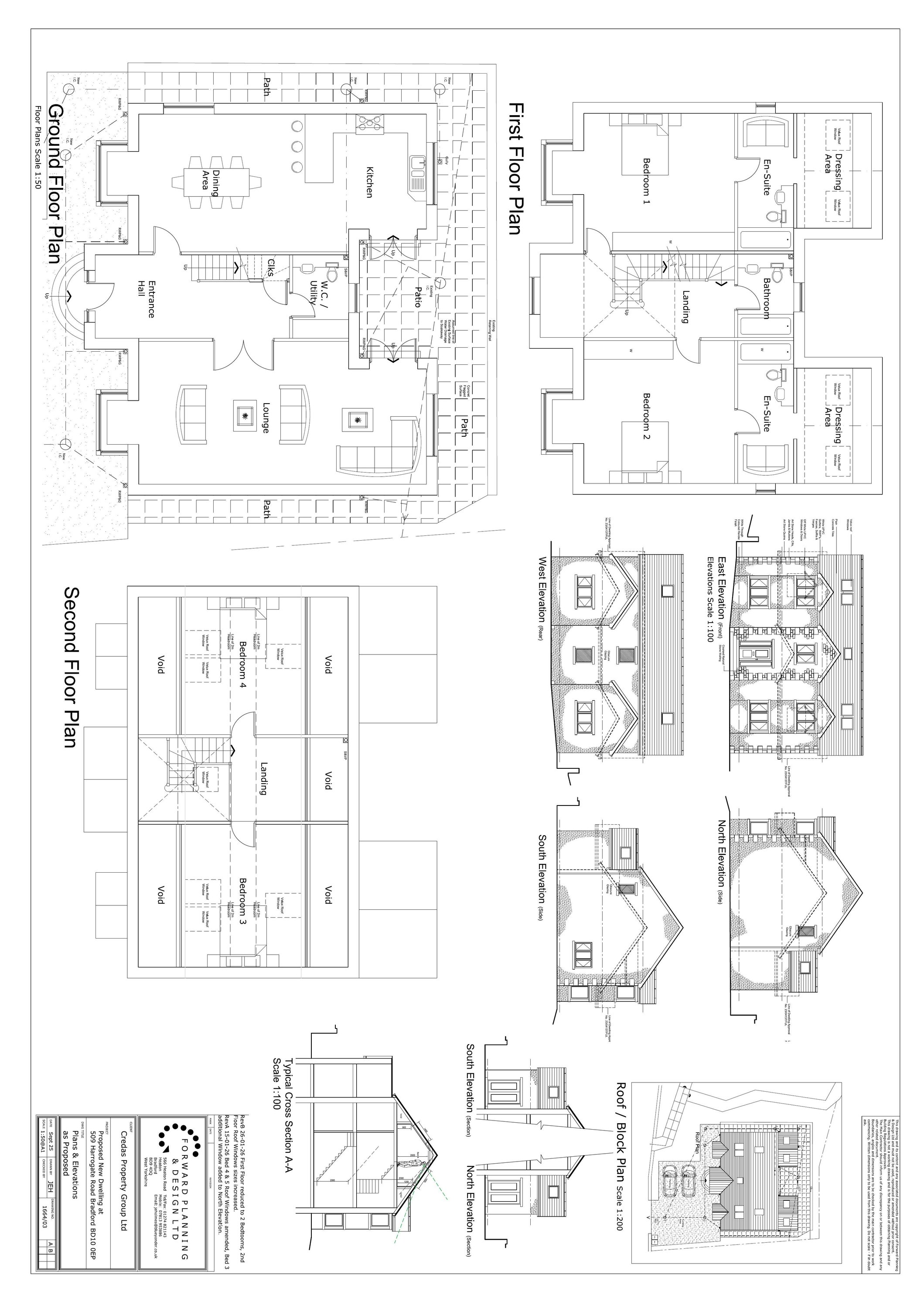
Construction of detached dwelling (part retrospective)

Documents

APPLICATION FORM REDACTED
Application Form
Not archived · Council Link
CIL ADDITIONAL INFORMATION
Supporting Information
Not archived · Council Link
CONSULTEE: CHRIS HUGHES - WEST YORKSHIRE POLICE - DOCO
Consultee Comment
Not archived · Council Link
EXISTING PLANS AND ELEVATIONS
Drawing
Not archived · Council Link
LOCATION PLAN
Drawing
Not archived · Council Link
PLANS & ELEVATIONS AS EXISTING
Drawing
Not archived · Council Link
PLANS & ELEVATIONS AS PROPOSED
Superseded Drawings
Not archived · Council Link
Revised Drawing
Archived · Council Link
Superseded Drawings
Archived · Council Link
Revised Drawing
Archived · Council Link
Superseded Drawings
Archived · Council Link

Take Action

Make your voice heard. Authorities need to hear from people who support new homes.

✉️ Write Email in Support View on Council Portal