← Back to Bradford Metropolitan District Council

Status

Pending Consideration New housing
Received
n/a
New dwellings
116

Summary

Construction of 116 new dwellings, new access, public green space and associated infrastructure.

Full Proposal

Construction of 116 dwellings with new access onto Wilson Road, public green space, and associated infrastructure

Documents

AIR QUALITY ASSESSMENT
Supporting Information
Not archived · Council Link
APPENDIX 2: TREE CONSTRAINTS PLAN
Drawing
Not archived · Council Link
APPENDIX 3: TREE IMPACT PLAN
Drawing
Not archived · Council Link
APPLICATION FORM REDACTED
Application Form
Not archived · Council Link
ARCHAEOLOGY DESKTOP
Supporting Information
Not archived · Council Link
ARCHAEOLOGY DESKTOP ASSESSMENT
Supporting Information
Not archived · Council Link
BAT SURVEY
Supporting Information
Not archived · Council Link
BIODIVERSITY NET GAIN ASSESSMENT
Supporting Information
Not archived · Council Link
BIODIVERSITY NET GAIN REPORT_(V01)
Supporting Information
Not archived · Council Link
BNG METRIC
Supporting Information
Not archived · Council Link
BRADFORD DIGITAL INFRASTRUCTURE STATEMENT
Supporting Information
Not archived · Council Link
BREEDING BIRDS SURVEY
Supporting Information
Not archived · Council Link
COMBINED ARBORICULTURAL IMPACT ASSESSMENT
Supporting Information
Not archived · Council Link
COMBINED ARBORICULTURAL IMPACT ASSESSMENT
Supporting Information
Not archived · Council Link
COMBINED BS5837 REPORT
Supporting Information
Not archived · Council Link
CONSULTEE: BIODIVERSITY TEAM
Consultee Comment
Not archived · Council Link
CONSULTEE: CHRIS HUGHES - WEST YORKSHIRE POLICE - DOCO
Consultee Comment
Not archived · Council Link
CONSULTEE: CLEAN AIR PLAN TEAM CBMDC
Consultee Comment
Not archived · Council Link
CONSULTEE: CONSERVATION TEAM
Consultee Comment
Not archived · Council Link
CONSULTEE: DRAINAGE CONSULTATIONS
Consultee Comment
Not archived · Council Link
CONSULTEE: EDUCATION I S SERVICE
Consultee Comment
Not archived · Council Link
CONSULTEE: ENVIRONMENTAL HEALTH LAND CONTAMINATION
Consultee Comment
Not archived · Council Link
CONSULTEE: ENVIRONMENTAL HEALTH NUISANCE
Consultee Comment
Not archived · Council Link
CONSULTEE: LANDSCAPE ARCHITECT
Consultee Comment
Not archived · Council Link
CONSULTEE: LOCAL PLAN
Consultee Comment
Not archived · Council Link
CONSULTEE: PARKS & GREENSPACES DEVELOPMENT
Consultee Comment
Not archived · Council Link
CONSULTEE: PUBLIC HEALTH
Consultee Comment
Not archived · Council Link
CONSULTEE: TREES TEAM
Consultee Comment
Not archived · Council Link
DESIGN AND ACCESS STATEMENT
Supporting Information
Not archived · Council Link
DESIGN AND ACCESS STATEMENT
Supporting Information
Not archived · Council Link
DETAILED LANDSCAPE PROPOSALS
Drawing
Not archived · Council Link
DETAILED LANDSCAPE PROPOSALS (1 OF 3)
Drawing
Not archived · Council Link
DETAILED LANDSCAPE PROPOSALS (2 OF 3)
Drawing
Not archived · Council Link
DETAILED LANDSCAPE PROPOSALS (3 OF 3)
Drawing
Not archived · Council Link
DETAILED LANDSCAPE PROPOSALS 2 OF 3
Drawing
Not archived · Council Link
DETAILED LANDSCAPE PROPOSALS 3 OF 3
Drawing
Not archived · Council Link
DIGITAL INFRASTRUCTURE STATEMENT
Supporting Information
Not archived · Council Link
DRAINAGE STRATEGY
Drawing
Not archived · Council Link
DRAINAGE STRATEGY
Drawing
Not archived · Council Link
ECOLOGICAL IMPACT ASSESSMENT
Supporting Information
Not archived · Council Link
ECOLOGICAL IMPACT ASSESSMENT FINAL_11.09.25(V))_MERGED
Supporting Information
Not archived · Council Link
ELEVATIONS
Drawing
Not archived · Council Link
ENERGY STATEMENT
Supporting Information
Not archived · Council Link
ENERGY STATEMENT
Supporting Information
Not archived · Council Link
FIGURE 2 - BASELINE HABITATS PLAN
Drawing
Not archived · Council Link
FIGURE 3 - PROPOSED HABITATS PLAN
Drawing
Not archived · Council Link
FLOOD RISK ASSESSMENT
Supporting Information
Not archived · Council Link
FLOOD RISK ASSESSMENT
Supporting Information
Not archived · Council Link
GEOENVIRONMENTAL APPRAISAL REPORT PART 01
Supporting Information
Not archived · Council Link
GEOENVIRONMENTAL APPRAISAL REPORT PART 02
Supporting Information
Not archived · Council Link
GEOENVIRONMENTAL APPRAISAL REPORT PART 03
Supporting Information
Not archived · Council Link
GEOENVIRONMENTAL APPRAISAL REPORT PART 04
Supporting Information
Not archived · Council Link
GEOENVIRONMENTAL APPRAISAL REPORT PART 05
Supporting Information
Not archived · Council Link
GEOENVIRONMENTAL APPRAISAL REPORT PART 06
Supporting Information
Not archived · Council Link
GEOENVIRONMENTAL APPRAISAL REPORT PART 07
Supporting Information
Not archived · Council Link
GEOENVIRONMENTAL APPRAISAL REPORT PART 08
Supporting Information
Not archived · Council Link
GEOENVIRONMENTAL APPRAISAL REPORT PART 08
Supporting Information
Not archived · Council Link
GEOENVIRONMENTAL APPRAISAL REPORT PART 10
Supporting Information
Not archived · Council Link
HEALTH AND SAFETY EXECUTIVE
Consultee Comment
Not archived · Council Link
HIGHWAYS CONSULTATION RESPONSE
Consultee Comment
Not archived · Council Link
HSE
Consultee Comment
Not archived · Council Link
LOCAL PLAN
Consultee Comment
Not archived · Council Link
LOCATION PLAN
Revised Drawing
Not archived · Council Link
NOISE IMPACT ASSESSMENT
Supporting Information
Not archived · Council Link
NOTICE NO. 1
Supporting Information
Not archived · Council Link
PLANNING STATEMENT
Supporting Information
Not archived · Council Link
PROPOSED BOUNDARY TREATMENT PLAN
Revised Drawing
Not archived · Council Link
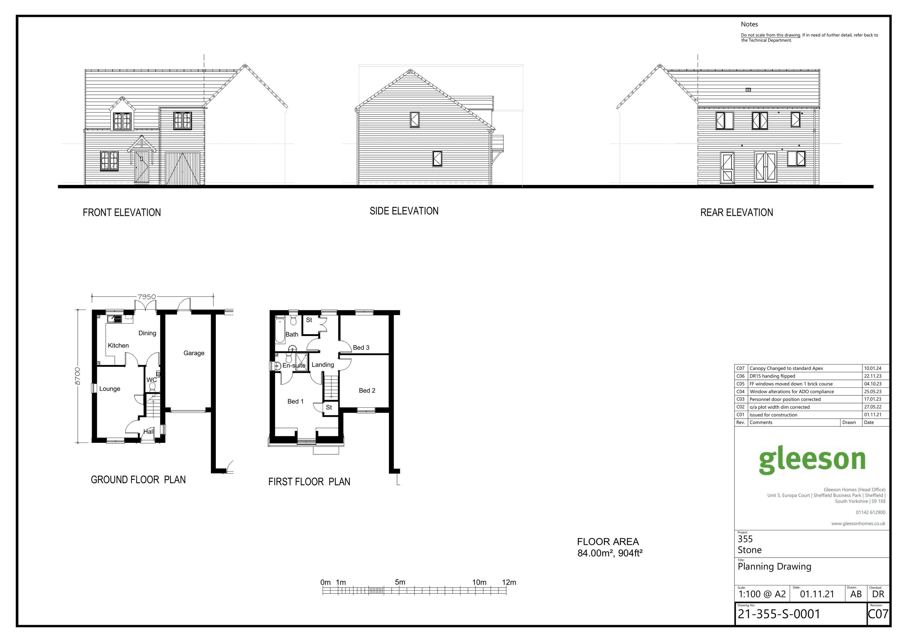
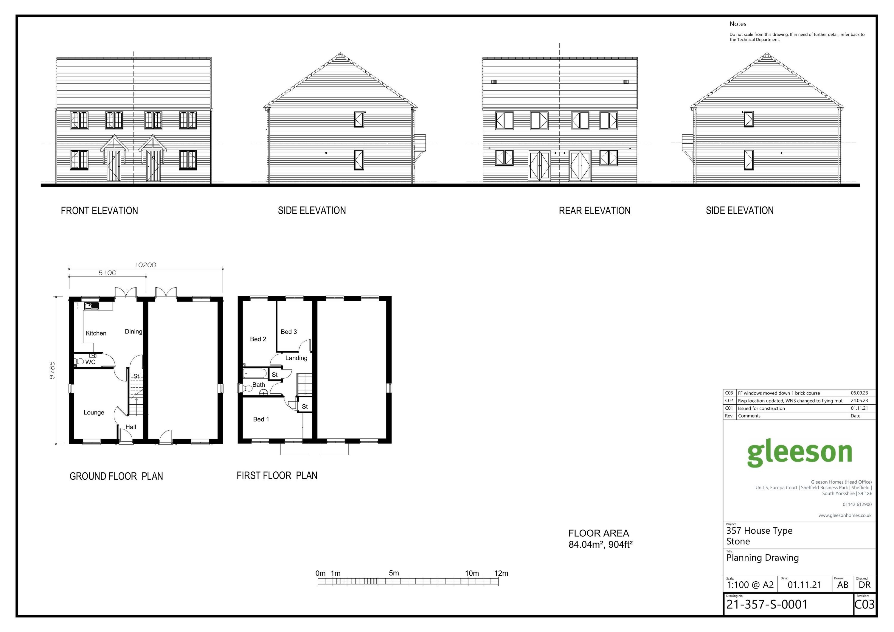
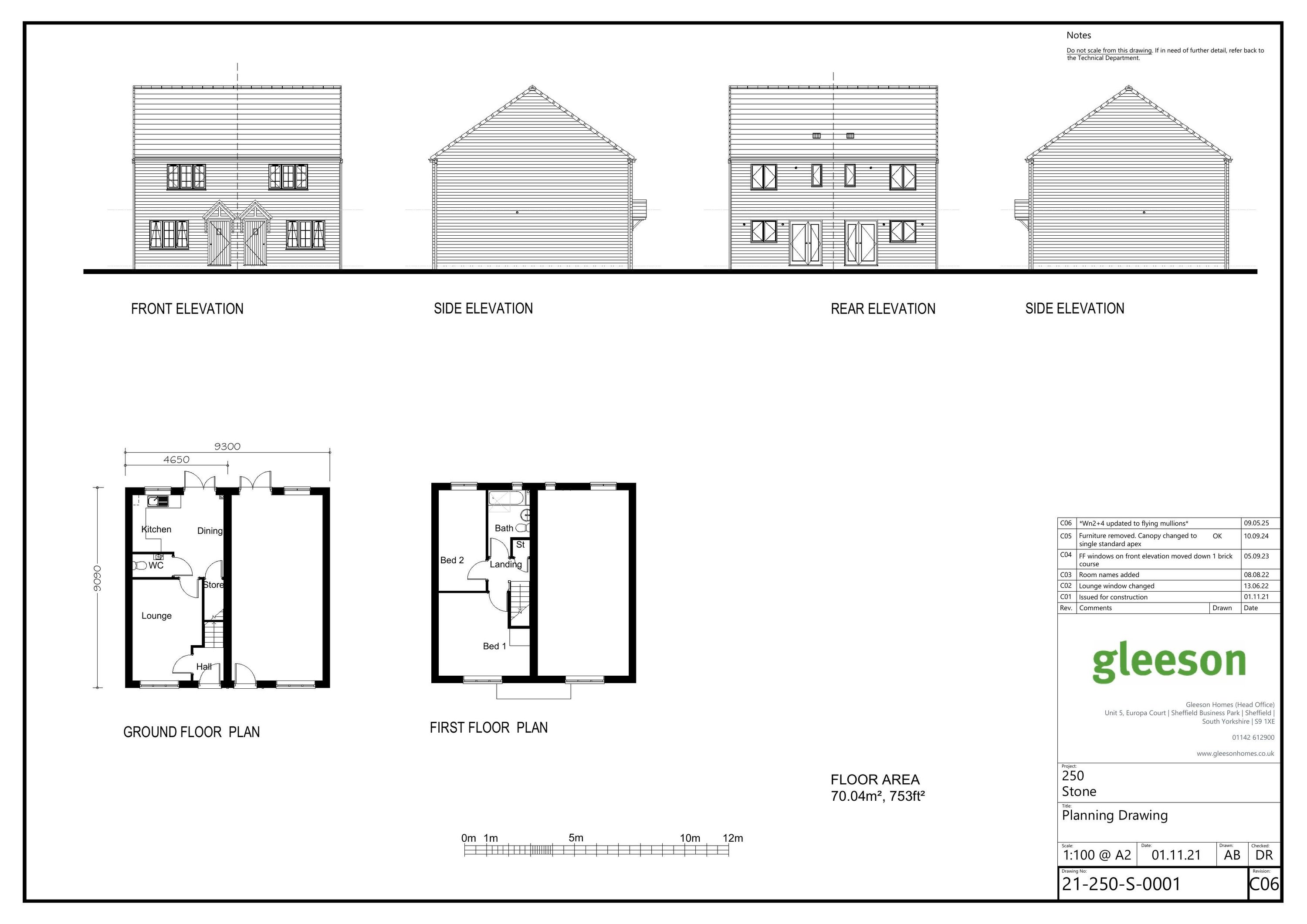
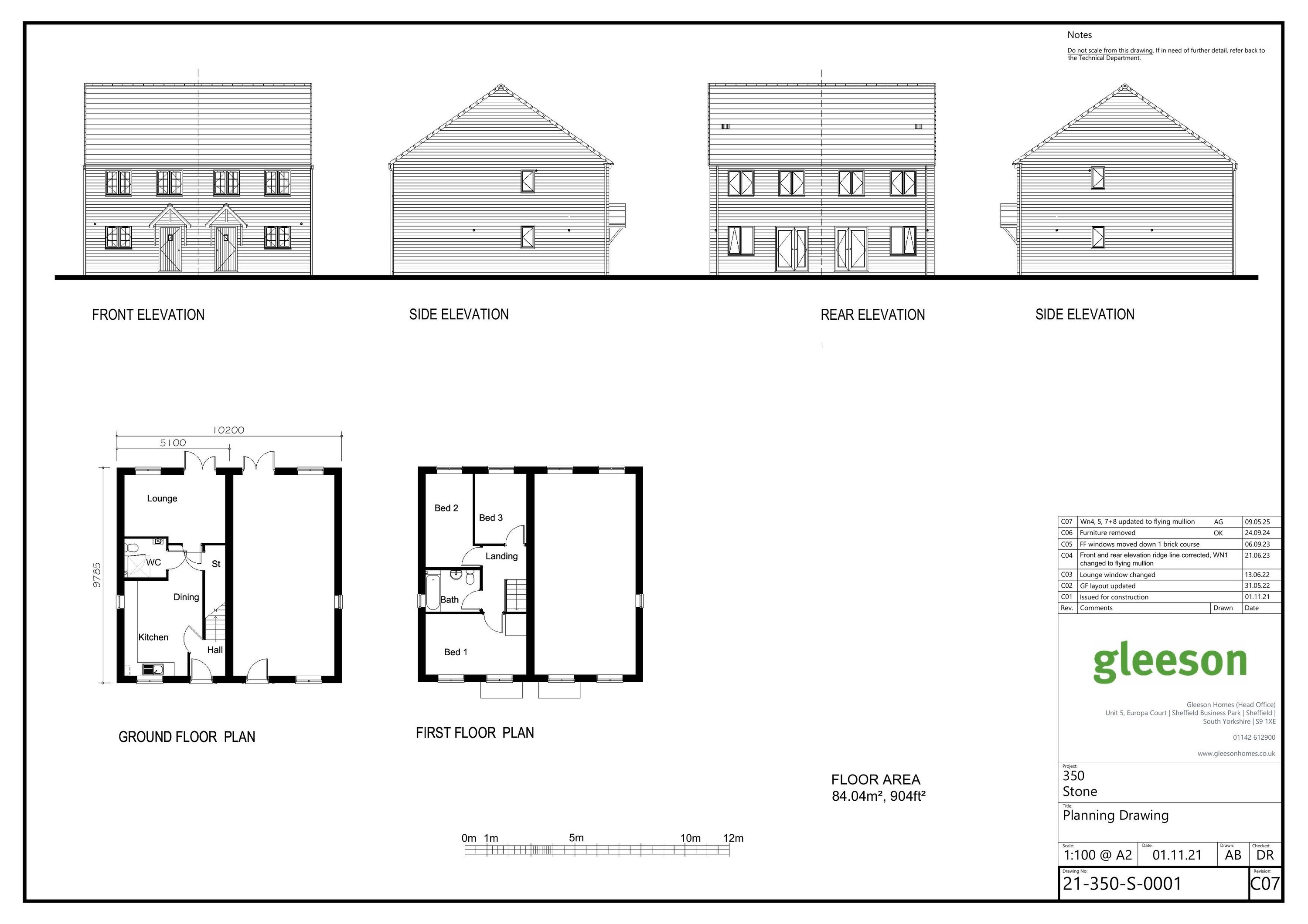
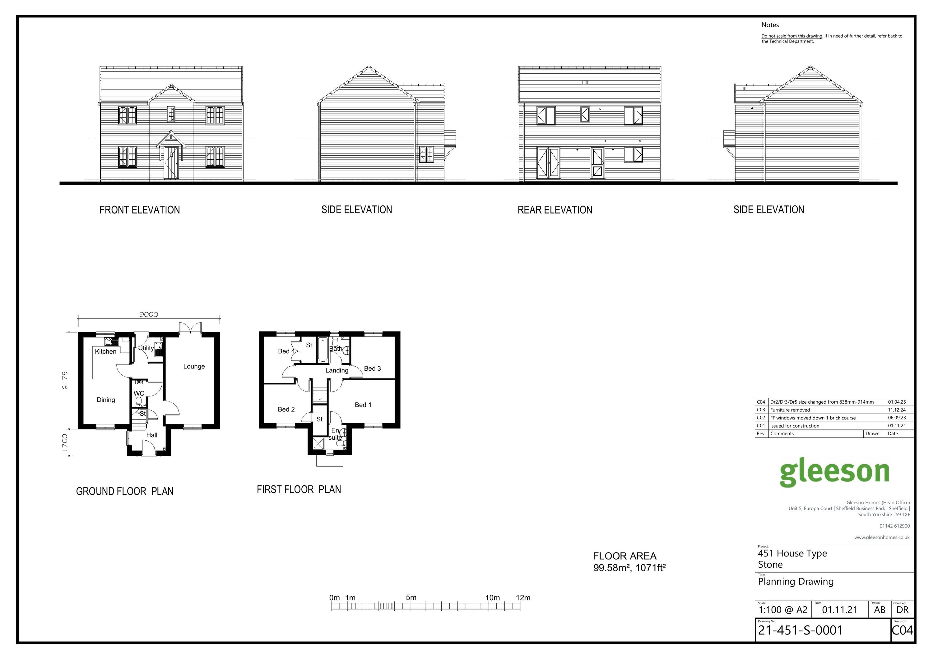
PROPOSED ELEVATIONS
Drawing
Not archived · Council Link
PROPOSED ELEVATIONS
Drawing
Not archived · Council Link
PROPOSED ELEVATIONS
Drawing
Not archived · Council Link
PROPOSED ELEVATIONS
Drawing
Not archived · Council Link
PROPOSED ELEVATIONS
Drawing
Not archived · Council Link
PROPOSED ELEVATIONS
Drawing
Not archived · Council Link
PROPOSED ELEVATIONS
Drawing
Not archived · Council Link
PROPOSED ELEVATIONS
Drawing
Not archived · Council Link
PROPOSED ELEVATIONS
Drawing
Not archived · Council Link
PROPOSED ELEVATIONS
Drawing
Not archived · Council Link
PROPOSED ELEVATIONS
Drawing
Not archived · Council Link
PROPOSED HABITATS PLAN
Drawing
Not archived · Council Link
PROPOSED MATERIALS PLAN
Revised Drawing
Not archived · Council Link
PROPOSED SITE LAYOUT
Revised Drawing
Not archived · Council Link
PROPOSED SITE LAYOUT
Revised Drawing
Not archived · Council Link
PROPOSED SITE LAYOUT
Revised Drawing
Not archived · Council Link
REPTILE SURVEY
Supporting Information
Not archived · Council Link
REVISED AIR QUALITY ASSESSMENT
Supporting Information
Not archived · Council Link
REVISED NOISE IMPACT ASSESSMENT
Supporting Information
Not archived · Council Link
RIGHTS OF WAY
Consultee Comment
Not archived · Council Link
SECURITY THROUGH DESIGN GLEESON 2024
Supporting Information
Not archived · Council Link
SITE NOTICE
Publicity
Not archived · Council Link
SITE NOTICE MAP
Publicity
Not archived · Council Link
STATEMENT OF COMMUNITY INVOLVEMENT
Supporting Information
Not archived · Council Link
SUPERSEDED AIR QUALITY ASSESSMENT
Supporting Information
Not archived · Council Link
SUPERSEDED NOISE IMPACT ASSESSMENT
Supporting Information
Not archived · Council Link
THE COAL AUTHORITY
Consultee Comment
Not archived · Council Link
THE STATUTORY METRIC V-01
Supporting Information
Not archived · Council Link
TRANSPORT ASSESSMENT ADDENDUM WITH APPENDICES
Supporting Information
Not archived · Council Link
TRANSPORT ASSESSMENT WITH APPENDICES
Supporting Information
Not archived · Council Link
TRAVEL PLAN WITH APPENDICES
Supporting Information
Not archived · Council Link
TRAVEL PLAN WITH APPENDICES
Supporting Information
Not archived · Council Link
TREE CONSTRAINTS PLAN
Drawing
Not archived · Council Link
TREE IMPACT PLAN
Drawing
Not archived · Council Link
WEST YORKSHIRE COMBINED AUTHORITY (HIGHWAYS)
Consultee Comment
Not archived · Council Link
WEST YORKSHIRE COMBINED AUTHORITY (HIGHWAYS)
Consultee Comment
Not archived · Council Link
YORKSHIRE WATER
Supporting Information
Not archived · Council Link

Take Action

Make your voice heard. Authorities need to hear from people who support new homes.

✉️ Write Email in Support View on Council Portal