← Back to Bradford Metropolitan District Council

Status

Pending Decision Change of use
Received
n/a
New dwellings
0

Full Proposal

Conversion of barn to form additional residential accommodation to attached dwelling and associated external alterations

Documents

APPLICATION FORM
Application Form
Not archived · Council Link
BAT EMERGENCE SURVEY REPORT
Supporting Information
Not archived · Council Link
CIL FORM 1: ADDITIONAL INFORMATION
Application Form
Not archived · Council Link
CONSULTEE: BIODIVERSITY TEAM
Consultee Comment
Not archived · Council Link
CONSULTEE: HERITAGE CONSERVATION CONSULTEE RESPONSE
Consultee Comment
Not archived · Council Link
DELEGATED OFFICER REPORT
Planning Officer Report
Not archived · Council Link
DESIGN AND ACCESS STATEMENT
Supporting Information
Not archived · Council Link
ECOLOGICAL ASSESSMENT - EXEMPTION
Supporting Information
Not archived · Council Link
EXISTING AND PROPOSED LANDSCAPE PLANS
Drawing
Not archived · Council Link
EXISTING ELEVATIONS
Revised Drawing
Not archived · Council Link
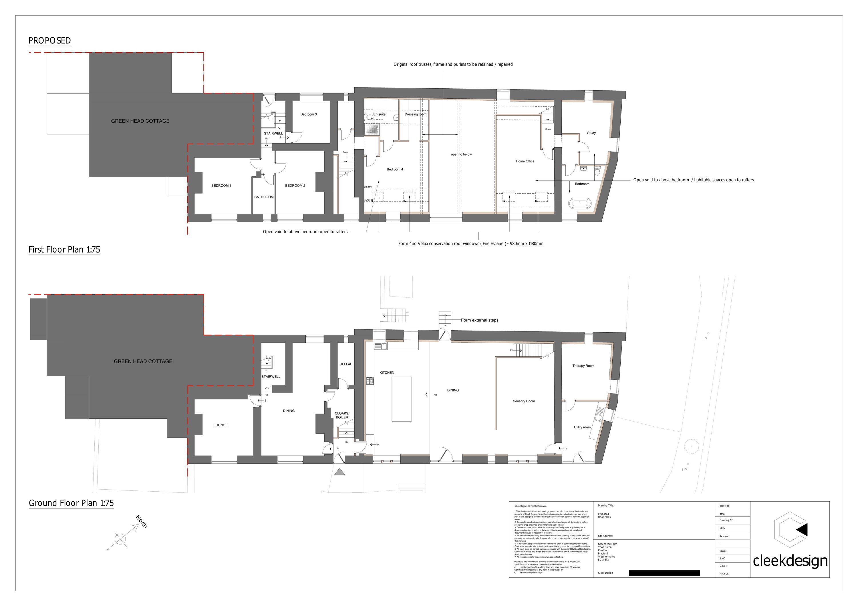
EXISTING FLOOR PLANS
Drawing
Not archived · Council Link
Drawing
Archived · Council Link
FLOOD RISK ASSESSMENT
Supporting Information
Not archived · Council Link
HABITAT MITIGATION AGREEMENT
Habitat Mitigation Form
Not archived · Council Link
HERITAGE STATEMENT REV A
Supporting Information
Not archived · Council Link
HIGHWAYS CONSULTATION RESPONSE
Consultee Comment
Not archived · Council Link
LOCATION PLAN
Drawing
Not archived · Council Link
METHOD STATEMENT
Supporting Information
Not archived · Council Link
PRELIMINARY ROOST ASSESSMENT REPORT
Supporting Information
Not archived · Council Link
PROPOSED DETAILS
Revised Drawing
Not archived · Council Link
PROPOSED ELEVATIONS
Revised Drawing
Not archived · Council Link
PROPOSED ELEVATIONS WITH REPAIRS
Revised Drawing
Not archived · Council Link
Drawing
Archived · Council Link
SITE NOTICE
Publicity
Not archived · Council Link
STRUCTURAL ASSESSMENT REPORT
Supporting Information
Not archived · Council Link

Take Action

Make your voice heard. Authorities need to hear from people who support new homes.

✉️ Write Email in Support View on Council Portal