← Back to Bradford Metropolitan District Council

Status

Pending Decision Commercial
Received
n/a
New dwellings
0

Full Proposal

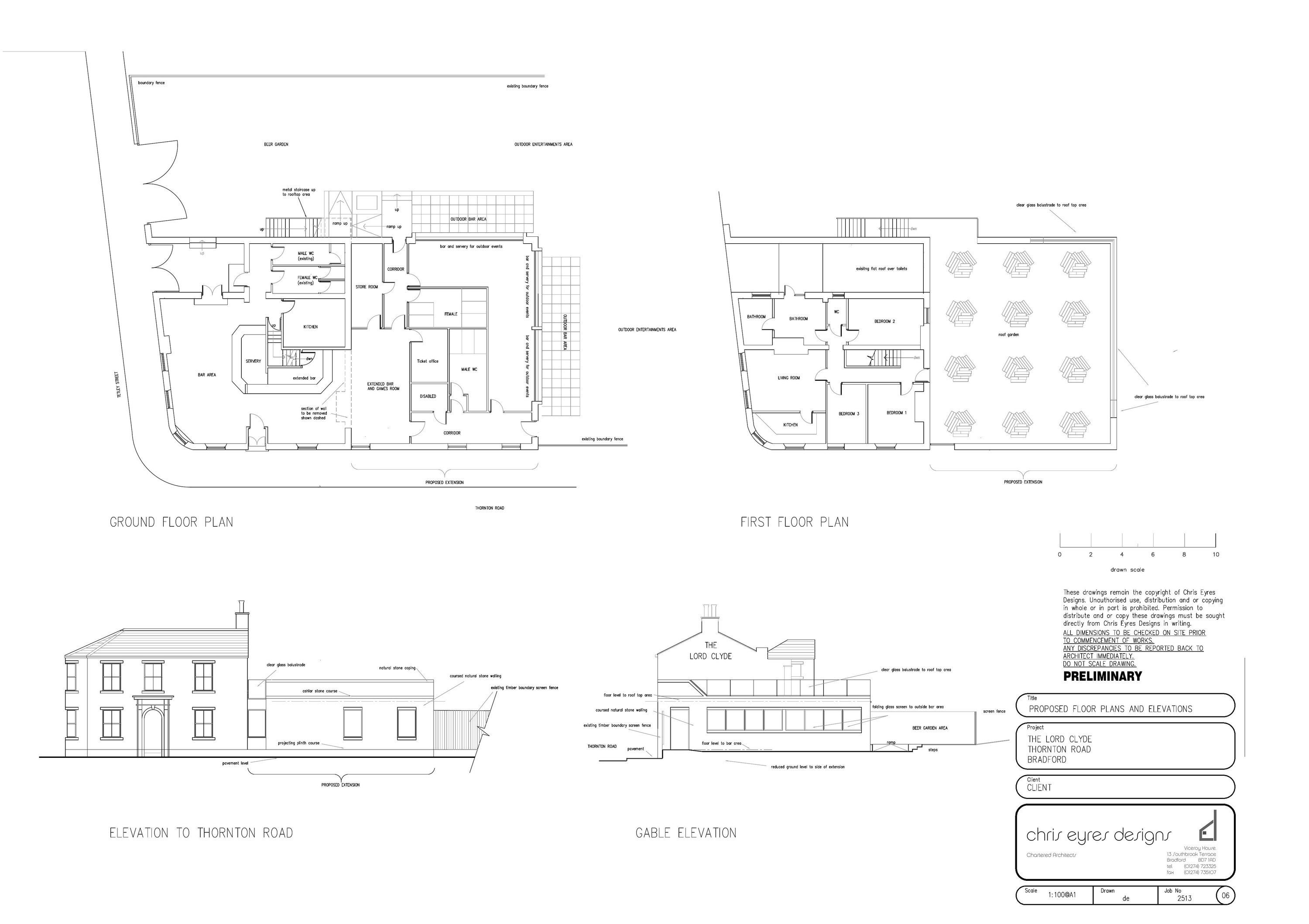
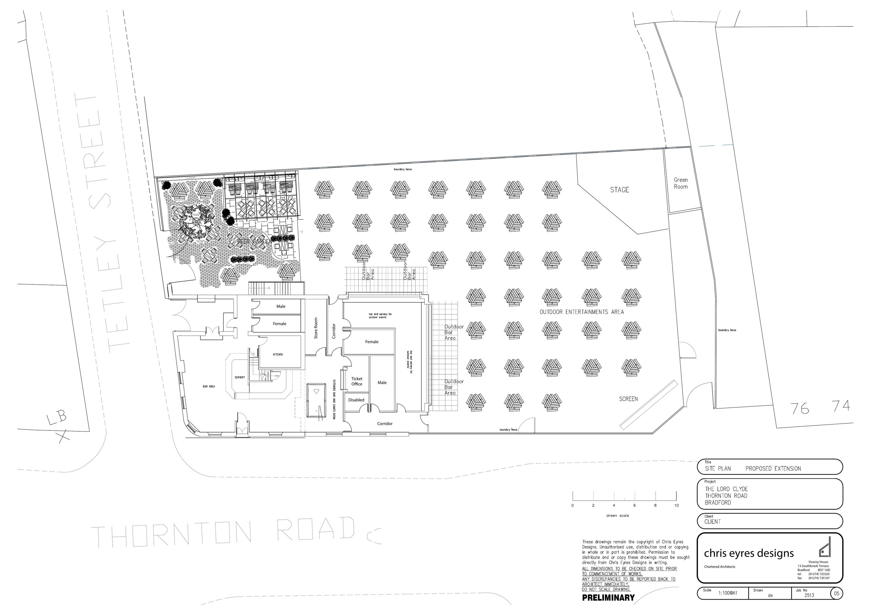
Single storey extension to public house to form kiosks, WCs and ancillary back-of-house and creation of managed external beer garden with fixed daytime performance stage and outdoor screen, seating, lighting, first floor roof patio, boundary treatments and associated works

Documents

APPLICATION FORM REDACTED
Application Form
Not archived · Council Link
CONSULTEE: DRAINAGE CONSULTATIONS
Consultee Comment
Not archived · Council Link
CONSULTEE: ENVIRONMENTAL HEALTH NUISANCE
Consultee Comment
Not archived · Council Link
CONSULTEE: HERITAGE CONSERVATION CONSULTEE RESPONSE
Consultee Comment
Not archived · Council Link
DRAINAGE AND WATER SEARCH
Drawing
Not archived · Council Link
DRAINAGE AND WATER SEARCH
Drawing
Not archived · Council Link
EXISTING FLOOR PLANS AND ELEVATIONS
Drawing
Not archived · Council Link
HERITAGE STATEMENT
Supporting Information
Not archived · Council Link
LOCATION PLAN
OS Extract
Not archived · Council Link
PLANNING DESIGN AND ACCESS STATEMENT LORD CLYDE EXTENSIONV2
Supporting Information
Not archived · Council Link
Drawing
Archived · Council Link
PROPOSED STAGE PLANS AND ELEVATIONS
Drawing
Not archived · Council Link
Drawing
Archived · Council Link
SITE NOTICE
Publicity
Not archived · Council Link
SITE NOTICE MAP
Publicity
Not archived · Council Link

Take Action

Make your voice heard. Authorities need to hear from people who support new homes.

✉️ Write Email in Support View on Council Portal