← Back to Bradford Metropolitan District Council

Status

Pending Consideration New housing
Received
n/a
New dwellings
0

Full Proposal

Construction of new dwelling

Documents

APPLICATION FORM REDACTED
Application Form
Not archived · Council Link
CIL PAAIR FORM
Application Form
Not archived · Council Link
CONSULTEE: CHRIS HUGHES - WEST YORKSHIRE POLICE - DOCO
Consultee Comment
Not archived · Council Link
DESIGN ACCESS STATEMENT
Supporting Information
Not archived · Council Link
EXISTING AND PROPOSED STREET SCENE
Drawing
Not archived · Council Link
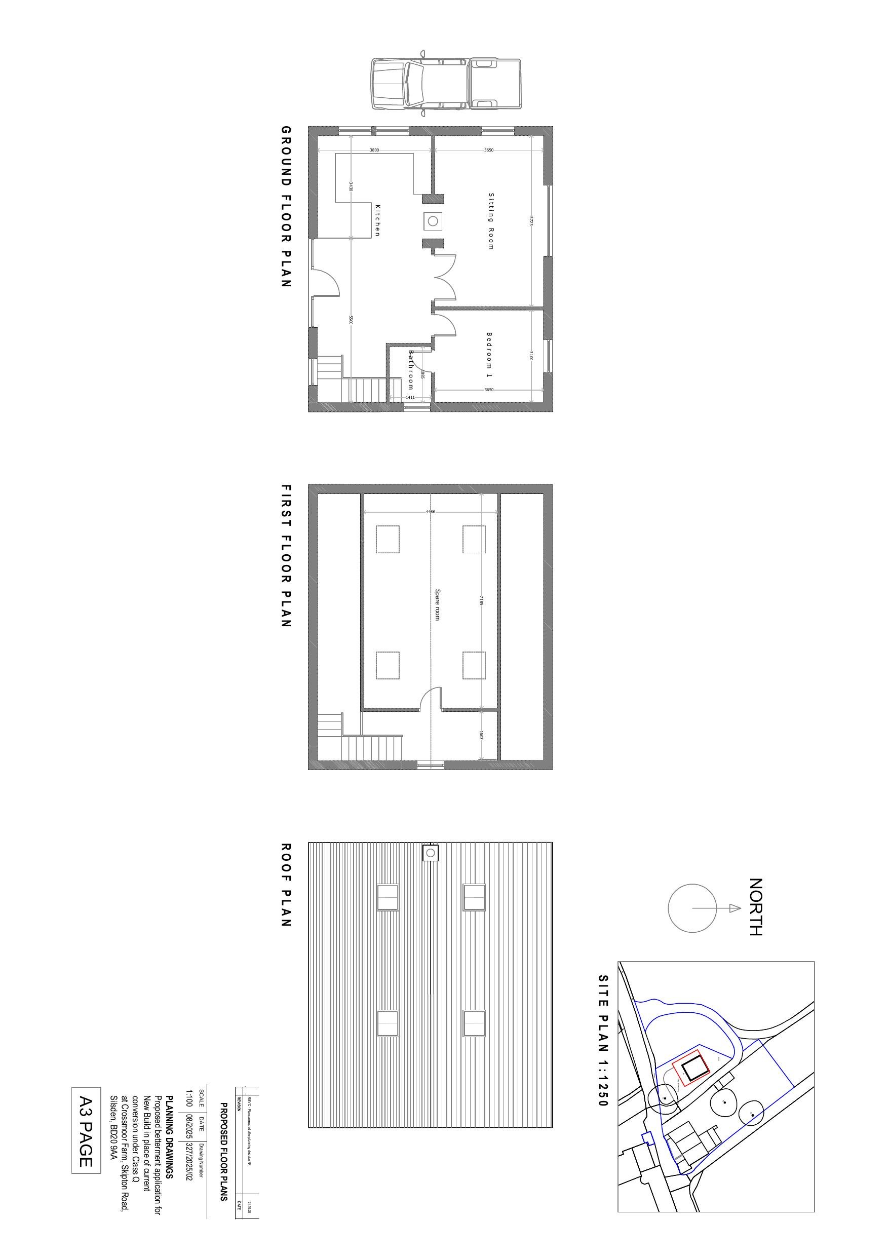
EXISTING PLANS AND ELEVATIONS
Drawing
Not archived · Council Link
Drawing
Archived · Council Link
HERITAGE STATEMENT
Supporting Information
Not archived · Council Link
LOCATION PLAN
Drawing
Not archived · Council Link
PLANS AND ELEVATIONS
Drawing
Not archived · Council Link
PROPOSED ELEVATIONS AND SECTIONS
Drawing
Not archived · Council Link
Drawing
Archived · Council Link
Drawing
Archived · Council Link
SITE NOTICE
Publicity
Not archived · Council Link
SITE NOTICE MAP
Publicity
Not archived · Council Link

Take Action

Make your voice heard. Authorities need to hear from people who support new homes.

✉️ Write Email in Support View on Council Portal