← Back to Bradford Metropolitan District Council

Status

Pending Consideration Change of use
Received
n/a
New dwellings
0

Full Proposal

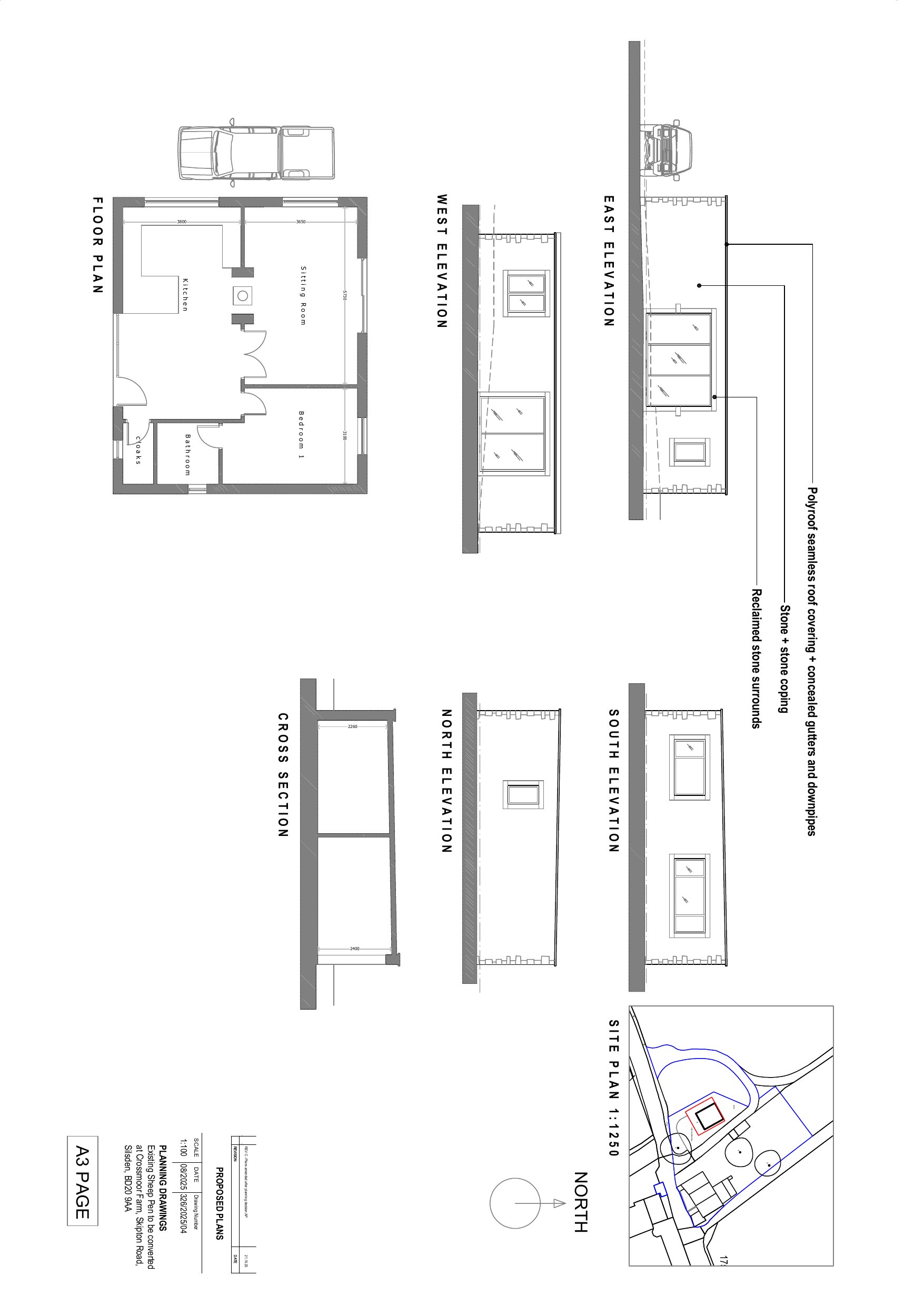
Class Q change of use of an agricultural building to form one dwelling (relating to approval of application 25/04004/PAR)

Documents

DESIGN AND ACCESS STATEMENT
Supporting Information
Not archived · Council Link
EXISTING PLANS OF SHEEP PEN
Drawing
Not archived · Council Link
LOCATION PLAN FOR SHEEP PEN
Drawing
Not archived · Council Link

Take Action

Make your voice heard. Authorities need to hear from people who support new homes.

✉️ Write Email in Support View on Council Portal