← Back to Breckland District Council

Status

Unknown status House extension
Received
n/a
New dwellings
0

Full Proposal

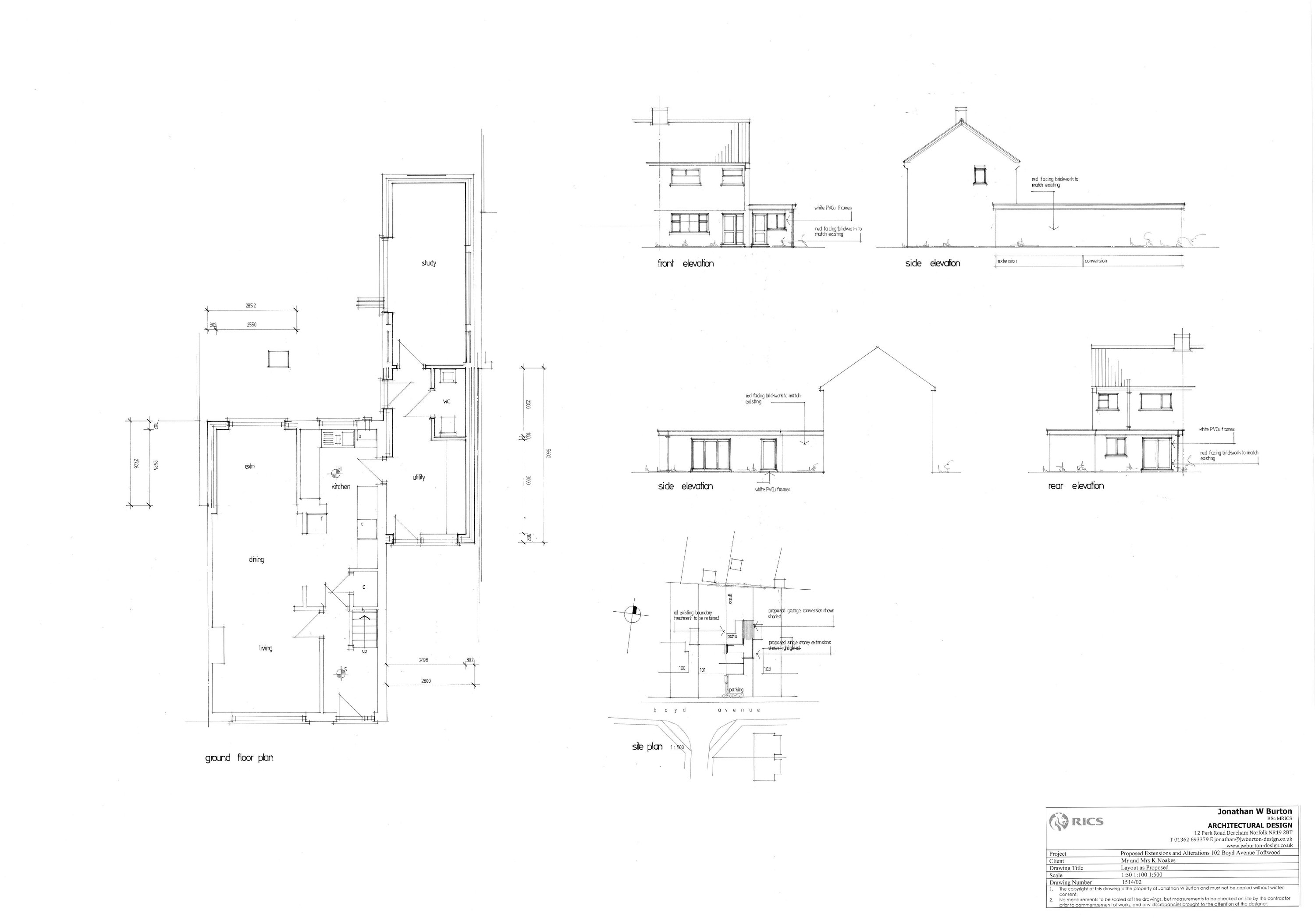
Proposed Single Storey Extensions to Side and Rear including Garage Conversion

Documents

ApplicationFormRedacted.pdf
Application Forms/Certificates (public/redacted)
Not archived · Council Link
Decision Notice
Decision Notice
Not archived · Council Link
Drg.No 1514 01 A1 Layout Plan Existing
Other Plans
Not archived · Council Link
Officer Report
Delegated/Committee Report
Not archived · Council Link

Take Action

Make your voice heard. Authorities need to hear from people who support new homes.

✉️ Write Email in Support View on Council Portal