← Back to Brent

Status

Registered House extension
Received
08 Dec 2025
New dwellings
0

Full Proposal

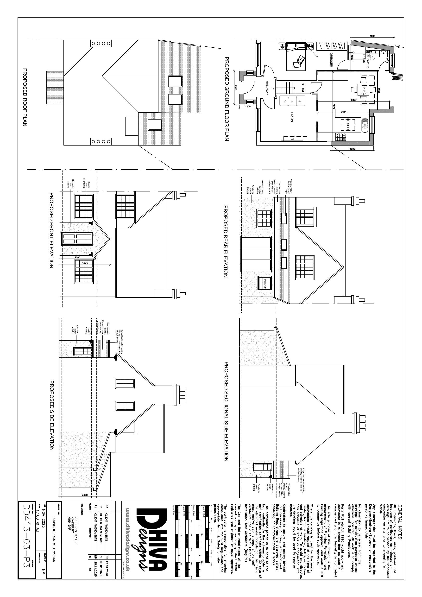
Proposed single storey rear extension and front porch to dwellinghouse.

Documents

Application form (redacted)
Application Form (Public)
Not archived · Council Link
Brents site notice 13/01/2026
Original Submission
Not archived · Council Link
Brents site notice 15/12/2025
Original Submission
Not archived · Council Link
Existing plans and elevations
Submitted Drawings Plans
Not archived · Council Link
Existing plans and elevations
Submitted Drawings Plans
Not archived · Council Link
Heritage statement
Supporting Documents
Not archived · Council Link
List - consulted
Consultation
Not archived · Council Link
List - consulted
Consultation
Not archived · Council Link
List - consulted on application
Consultation
Not archived · Council Link
List - consulted on application
Consultation
Not archived · Council Link
Location plan and proposed block plan
Submitted Drawings Plans
Not archived · Council Link
Submitted Drawings Plans
Archived · Council Link
Submitted Drawings Plans
Archived · Council Link
Submitted Drawings Plans
Archived · Council Link
Submitted Drawings Plans
Archived · Council Link
Site notice
Consultation
Not archived · Council Link
Site notice
Consultation
Not archived · Council Link

Take Action

Make your voice heard. Authorities need to hear from people who support new homes.

✉️ Write Email in Support View on Council Portal