← Back to Brent

Status

Registered New housing
Received
09 Dec 2025
New dwellings
3

Summary

Demolish building and erect new building containing 3 apartments with private amenity, cycle parking and waste storage.

Full Proposal

Proposed demolition of existing building and erection of new building containing 3x residential apartments with private amenity space, cycle parking, waste and recycling storage, landscaping and other ancillary works

Documents

3d section
Submitted Drawings Plans
Not archived · Council Link
Air quality technical note
Supporting Documents
Not archived · Council Link
Application form (redacted)
Application Form (Public)
Not archived · Council Link
Bng exemption statement
Supporting Documents
Not archived · Council Link
Daylight & sunlight report
Supporting Documents
Not archived · Council Link
Design / access / basement impact statement
Supporting Documents
Not archived · Council Link
Fire safety strategy
Supporting Documents
Not archived · Council Link
Front aerial
Submitted Drawings Plans
Not archived · Council Link
Front ground
Submitted Drawings Plans
Not archived · Council Link
List - consulted
Consultation
Not archived · Council Link
List - consulted
Consultation
Not archived · Council Link
List - consulted on application
Consultation
Not archived · Council Link
List - consulted on application
Consultation
Not archived · Council Link
Location plan
Submitted Drawings Plans
Not archived · Council Link
Measured elevations
Submitted Drawings Plans
Not archived · Council Link
Planning statement
Supporting Documents
Not archived · Council Link
Preliminary ecological appraisal and roost assessment
Supporting Documents
Not archived · Council Link
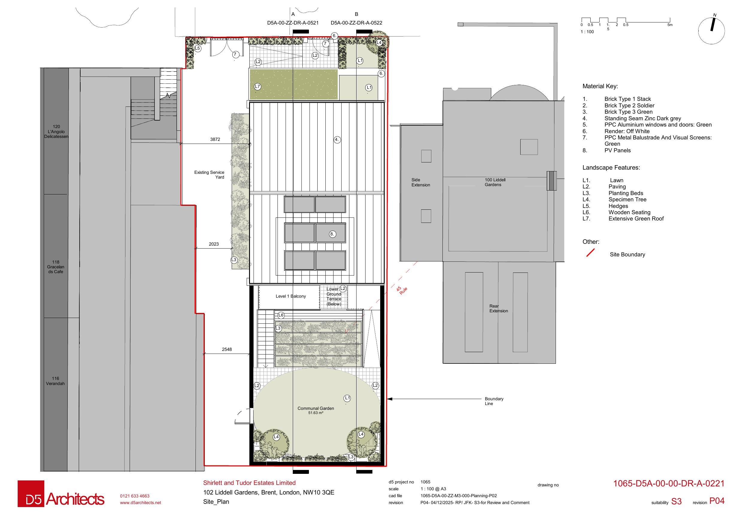
Proposed b1 plan
Submitted Drawings Plans
Not archived · Council Link
Proposed l0 plan
Submitted Drawings Plans
Not archived · Council Link
Proposed l1 plan
Submitted Drawings Plans
Not archived · Council Link
Proposed l2 plan
Submitted Drawings Plans
Not archived · Council Link
Proposed north elevation (loggia in section)
Submitted Drawings Plans
Not archived · Council Link
Proposed north elevation (street view)
Submitted Drawings Plans
Not archived · Council Link
Proposed section aa
Submitted Drawings Plans
Not archived · Council Link
Proposed section bb
Submitted Drawings Plans
Not archived · Council Link
Proposed south elevation
Submitted Drawings Plans
Not archived · Council Link
Proposed west elevation
Submitted Drawings Plans
Not archived · Council Link
Rear aerial
Submitted Drawings Plans
Not archived · Council Link
Rear ground
Submitted Drawings Plans
Not archived · Council Link
Submitted Drawings Plans
Archived · Council Link
Submitted Drawings Plans
Archived · Council Link
Structural + civil engineering basement supplementary planning document
Submitted Drawings Plans
Not archived · Council Link
Topographical survey
Submitted Drawings Plans
Not archived · Council Link
Ugf the statutory metric
Supporting Documents
Not archived · Council Link
Urban greening factor
Supporting Documents
Not archived · Council Link

Take Action

Make your voice heard. Authorities need to hear from people who support new homes.

✉️ Write Email in Support View on Council Portal