← Back to Brent

Status

Registered House extension
Received
08 Dec 2025
New dwellings
0

Full Proposal

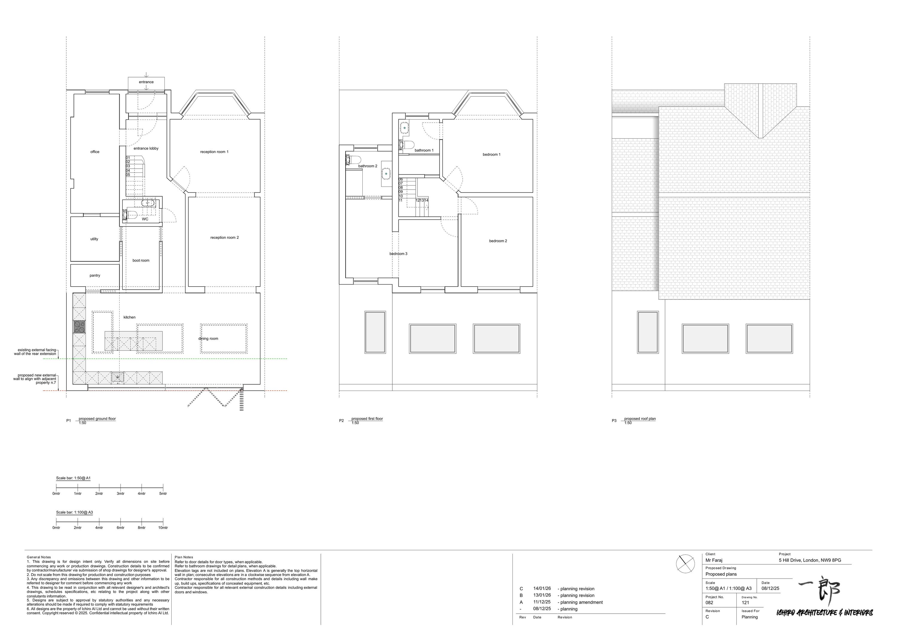
Demolition of existing rear extension and proposed hip to gable roof extension, single-storey rear extension, first-floor side extension, and conversion of garage into office with replacement of garage door with one window to the dwellinghouse.

Documents

Application form redacted
Application Form (Public)
Not archived · Council Link
Design and access statement
Design Access
Not archived · Council Link
Existing & proposed elevations - side
Submitted Drawings Plans
Not archived · Council Link
Existing and proposed side elevations
Submitted Drawings Plans
Not archived · Council Link
Existing elevations
Submitted Drawings Plans
Not archived · Council Link
Existing plans
Submitted Drawings Plans
Not archived · Council Link
List - consulted
Consultation
Not archived · Council Link
List - consulted on application
Consultation
Not archived · Council Link
Location plan
Submitted Drawings Plans
Not archived · Council Link
Proposed elevations
Submitted Drawings Plans
Not archived · Council Link
Proposed elevations
Submitted Drawings Plans
Not archived · Council Link
Submitted Drawings Plans
Archived · Council Link
Submitted Drawings Plans
Archived · Council Link
Submitted Drawings Plans
Archived · Council Link

Take Action

Make your voice heard. Authorities need to hear from people who support new homes.

✉️ Write Email in Support View on Council Portal