← Back to Brent

Status

Registered House extension
Received
16 Dec 2025
New dwellings
2

Full Proposal

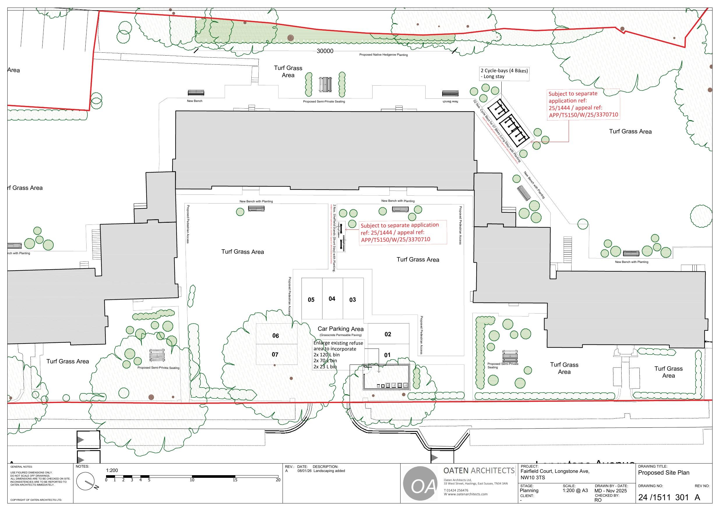
Proposed roof extensions to side wings to create 2x new self-contained dwellings, 2x three-storey side extensions to provide access staircases, associated enlargement of refuse storage, additional cycle parking spaces and improvements to soft landscaping to communal garden

Documents

Application form
Application Form (Public)
Not archived · Council Link
Biodiversity metric
Supporting Documents
Not archived · Council Link
Biodiversity net gain assessment
Supporting Documents
Not archived · Council Link
Daylight and sunlight assessment
Supporting Documents
Not archived · Council Link
Existing first floor plan
Submitted Drawings Plans
Not archived · Council Link
Existing front & rear elevations
Submitted Drawings Plans
Not archived · Council Link
Existing front elevation
Submitted Drawings Plans
Not archived · Council Link
Existing ground & first floor plans
Submitted Drawings Plans
Not archived · Council Link
Existing ground floor plan
Submitted Drawings Plans
Not archived · Council Link
Existing rear (west) elevation
Submitted Drawings Plans
Not archived · Council Link
Existing roof plan
Submitted Drawings Plans
Not archived · Council Link
Existing schematic section
Submitted Drawings Plans
Not archived · Council Link
Existing second floor & roof plans
Submitted Drawings Plans
Not archived · Council Link
Existing second floor plan
Submitted Drawings Plans
Not archived · Council Link
Existing side section
Submitted Drawings Plans
Not archived · Council Link
Submitted Drawings Plans
Archived · Council Link
Fire safety strategy (part a) reasonable exception statement
Supporting Documents
Not archived · Council Link
Submitted Drawings Plans
Archived · Council Link
Location plan
Submitted Drawings Plans
Not archived · Council Link
Submitted Drawings Plans
Archived · Council Link
Part 1 - preliminary ecological appraisal and preliminary roost assessment
Supporting Documents
Not archived · Council Link
Part 2 - preliminary ecological appraisal and preliminary roost assessment
Supporting Documents
Not archived · Council Link
Proposed first floor plan
Submitted Drawings Plans
Not archived · Council Link
Proposed front (east) elevation
Submitted Drawings Plans
Not archived · Council Link
Proposed ground floor plan
Submitted Drawings Plans
Not archived · Council Link
Proposed landscape plan
Submitted Drawings Plans
Not archived · Council Link
Proposed rear (west) elevation
Submitted Drawings Plans
Not archived · Council Link
Proposed roof plan
Submitted Drawings Plans
Not archived · Council Link
Proposed second floor plan
Submitted Drawings Plans
Not archived · Council Link
Submitted Drawings Plans
Archived · Council Link
Submitted Drawings Plans
Archived · Council Link
Urban greening factor
Supporting Documents
Not archived · Council Link

Take Action

Make your voice heard. Authorities need to hear from people who support new homes.

✉️ Write Email in Support View on Council Portal