← Back to Brent

Status

Registered Change of use
Received
22 Dec 2025
New dwellings
0

Full Proposal

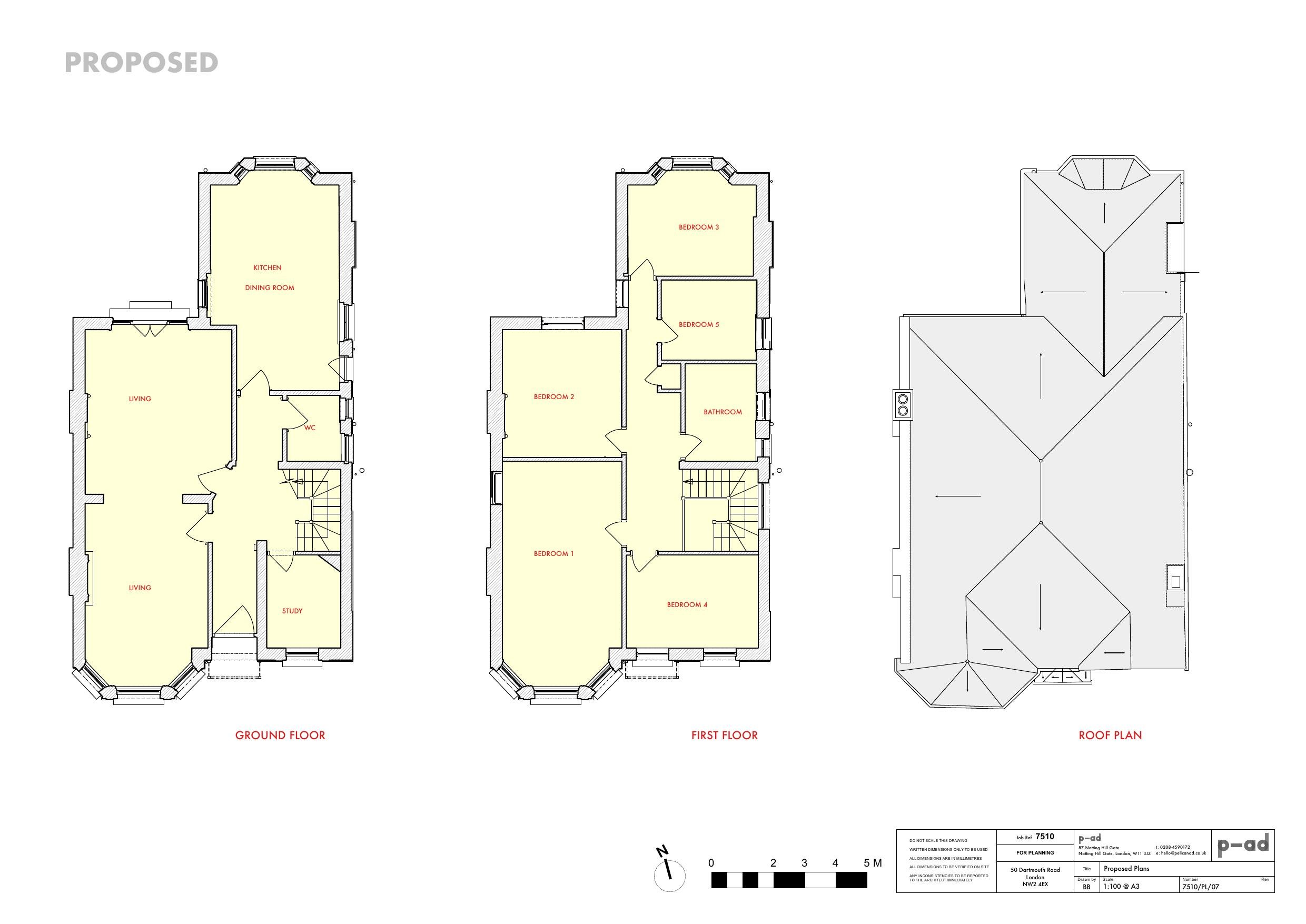
Reversion of 2 self-contained flats into a single family dwellinghouse, removal of external staircase to rear with replacement of first floor door with a double glazed timber sash window

Documents

Application form
Application Form (Public)
Not archived · Council Link
Cil form
Supporting Documents
Not archived · Council Link
Design and access statement/heritage
Design Access
Not archived · Council Link
Existing floor plans and elevations
Submitted Drawings Plans
Not archived · Council Link
Fire strategy
Submitted Drawings Plans
Not archived · Council Link
List - consulted
Consultation
Not archived · Council Link
List - consulted on application
Consultation
Not archived · Council Link
Location plans
Submitted Drawings Plans
Not archived · Council Link
Submitted Drawings Plans
Archived · Council Link
Proposed side window detail
Submitted Drawings Plans
Not archived · Council Link
Submitted Drawings Plans
Archived · Council Link
Site photos
Supporting Documents
Not archived · Council Link

Take Action

Make your voice heard. Authorities need to hear from people who support new homes.

✉️ Write Email in Support View on Council Portal