← Back to Brent

Status

Registered House extension
Received
Last month
New dwellings
0

Full Proposal

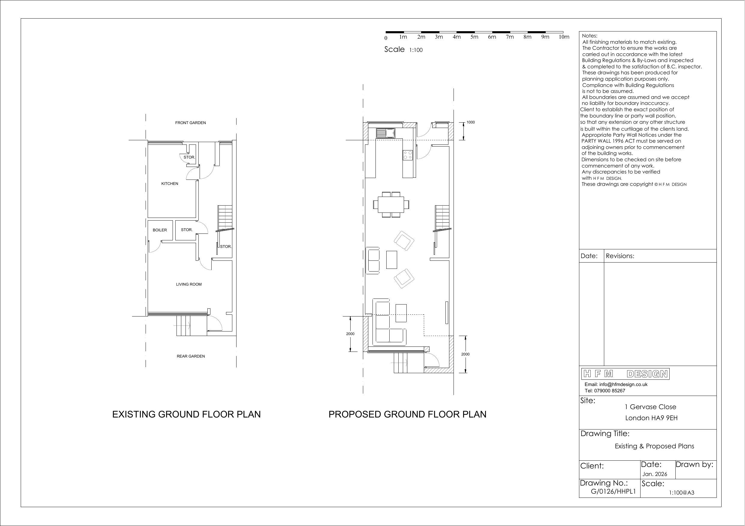
Proposed single storey front and rear extension to dwellinghouse.

Documents

Application form redacted
Application Form (Public)
Not archived · Council Link
Block plan
Submitted Drawings Plans
Not archived · Council Link
Submitted Drawings Plans
Archived · Council Link
Existing and proposed roof plans
Submitted Drawings Plans
Not archived · Council Link
Existing front and rear elevations
Submitted Drawings Plans
Not archived · Council Link
Existing side elevations
Submitted Drawings Plans
Not archived · Council Link
List - consulted
Consultation
Not archived · Council Link
List - consulted on application
Consultation
Not archived · Council Link
Location plan
Submitted Drawings Plans
Not archived · Council Link
Proposed front and rear elevations
Submitted Drawings Plans
Not archived · Council Link
Proposed side elevations
Submitted Drawings Plans
Not archived · Council Link
Submitted Drawings Plans
Archived · Council Link

Take Action

Make your voice heard. Authorities need to hear from people who support new homes.

✉️ Write Email in Support View on Council Portal