← Back to Brentwood

Status

Pending Decision New housing
Received
n/a
New dwellings
5

Summary

Demolition of existing dwelling and construction of a 5-bedroom detached replacement house.

Full Proposal

Demolition of existing dwelling and construction of 5 bedroom detached replacement dwelling

Documents

AERIAL VIEW - MR & MRS RICHARDSON - SUPPORTING NEIGHBOUR OBJECTION
Representation
Not archived · Council Link
Application Form
Application Form
Not archived · Council Link
ARIEL ROAD VIEW - MR & MRS RICHARDSON - SUPPORTING NEIGHBOUR OBJECTION
Representation
Not archived · Council Link
ARIEL SHOWING PLOT AND SIZE OF PROPOSED- MR & MRS RICHARDSON - SUPPORTING NEIGH
Representation
Not archived · Council Link
CONSULTEE - ENVIROMENTAL HEALTH
Supporting Documents
Not archived · Council Link
DEPTH, HEIGHT, BULK AND MASS OF BRICKWORK - MR & MRS RICHARDSON - SUPPORTING NE
Representation
Not archived · Council Link
Design and Access Statement
Design and Access Statement
Not archived · Council Link
EX01 EXISTING
Block Plan
Not archived · Council Link
Block Plan
Archived · Council Link
HEIGHT AND SCALE - MR & MRS RICHARDSON - SUPPORTING NEIGHBOUR OBJECTION
Representation
Not archived · Council Link
MASTER BATHROOM VIEW - MR & MRS RICHARDSON - SUPPORTING NEIGHBOUR OBJECTION
Representation
Not archived · Council Link
MR & MRS RICHARDSON
Representation
Not archived · Council Link
MR & MRS RICHARDSON OBJECTION LETTER - SUPPORTING NEIGHBOUR OBJECTION
Representation
Not archived · Council Link
OVERLOOKING & MASS - MR & MRS RICHARDSON - SUPPORTING NEIGHBOUR OBJECTION
Representation
Not archived · Council Link
OVERLOOKING FROM FIRST FLOOR HEIGHT- MR & MRS RICHARDSON - SUPPORTING NEIGHBOUR
Representation
Not archived · Council Link
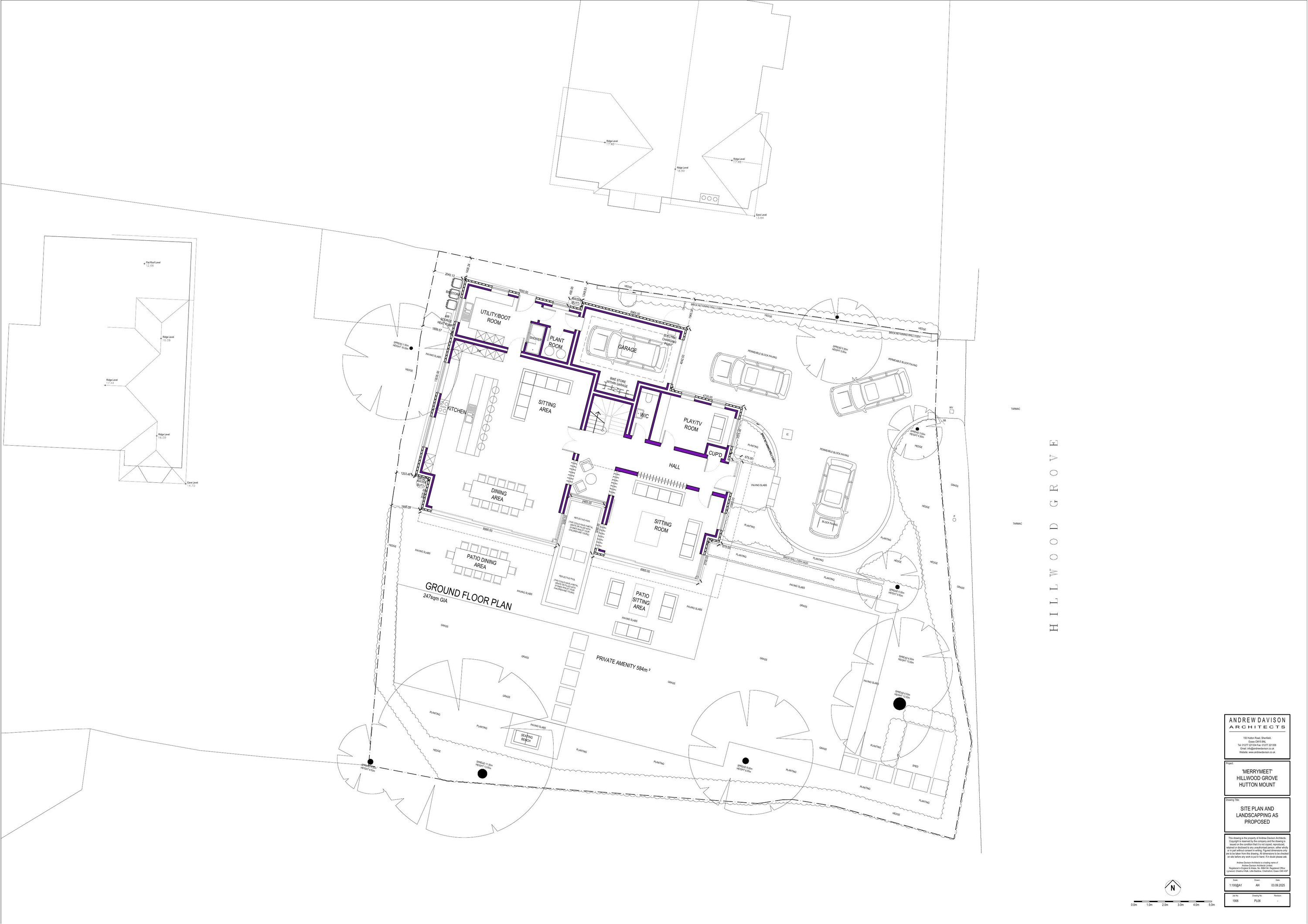
PL01 PROPOSED
Block Plan
Not archived · Council Link
PL02 / A - PROPOSED GROUND FLOOR PLAN
Drawing
Not archived · Council Link
PL02 PROPOSED GROUND FLOOR
Superseded Drawing
Not archived · Council Link
PL03 / A - PROPOSED FIRST FLOOR PLAN
Drawing
Not archived · Council Link
PL03 PROPOSED FIRST FLOOR
Superseded Drawing
Not archived · Council Link
PL04 / A - PROPOSED SECOND FLOOR PLAN
Drawing
Not archived · Council Link
PL04 PROPOSED SECOND FLOOR
Superseded Drawing
Not archived · Council Link
PL05 / A - PROPOSED ROOF PLAN
Drawing
Not archived · Council Link
PL05 PROPOSED ROOF PLAN
Superseded Drawing
Not archived · Council Link
Superseded Drawing
Archived · Council Link
PL07 PROPOSED FRONT & REAR ELEVATIONS
Drawing
Not archived · Council Link
PL08 PROPOSED SIDE ELEVATINONS
Drawing
Not archived · Council Link
PL09 3D VIEWS
Supporting Documents
Not archived · Council Link
PL10 - EXISTING AND PROPOSED STREET SCENE FRONT ELEVATION
Superseded Drawing
Not archived · Council Link
PL10 / A - STREETSCENES
Drawing
Not archived · Council Link
SIDE BY SIDE FRONT ON- MR & MRS RICHARDSON - SUPPORTING NEIGHBOUR OBJECTION
Representation
Not archived · Council Link
SIDE ELEVATION - MR & MRS RICHARDSON - SUPPORTING NEIGHBOUR OBJECTION
Representation
Not archived · Council Link
SITE MAP - MR & MRS RICHARDSON - SUPPORTING NEIGHBOUR OBJECTION
Representation
Not archived · Council Link
TOP FLOOR BEDROOM VIEW - MR & MRS RICHARDSON - SUPPORTING NEIGHBOUR OBJECTION
Representation
Not archived · Council Link
TOP FLOOR BEDROOM VIEW 2 - MR & MRS RICHARDSON - SUPPORTING NEIGHBOUR OBJECTION
Representation
Not archived · Council Link

Take Action

Make your voice heard. Authorities need to hear from people who support new homes.

✉️ Write Email in Support View on Council Portal