← Back to Bristol City Council
24/03470/F
Bristol City Council · IDOX
Status
Pending consideration
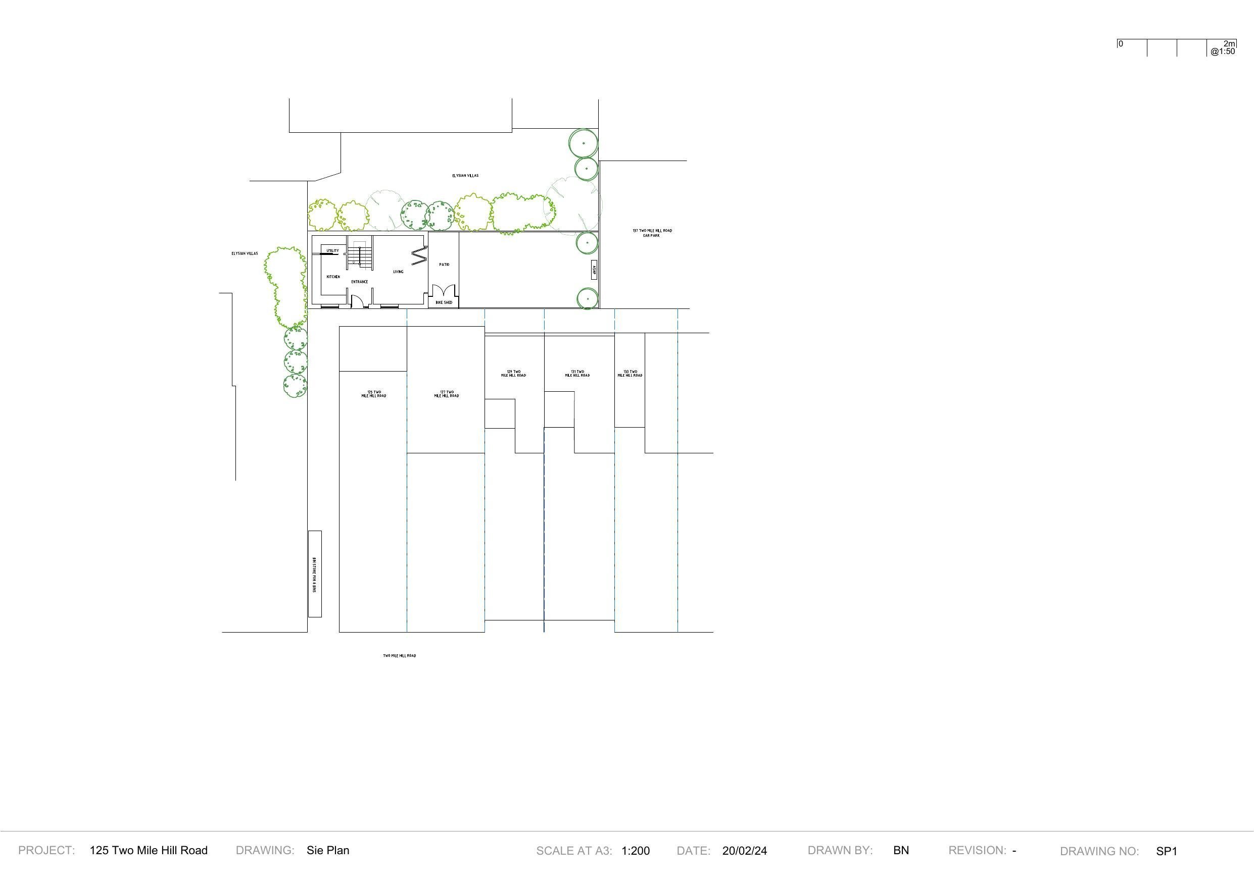
New housing
Received
04 Sep 2024
New dwellings
1
Full Proposal
Proposed 2 person 1 bedroom new dwelling house with Solar PV system and Air Source Heat Pump.
Documents
NEIGHBOUR NOTIFICATION LIST ISSUED 07/11/2024
Neighbour Notification List
Not archived
· Council Link
Take Action
Make your voice heard. Authorities need to hear from people who support new homes.