← Back to Bristol City Council

Status

Pending consideration Demolition
Received
27 Sep 2024
New dwellings
0

Full Proposal

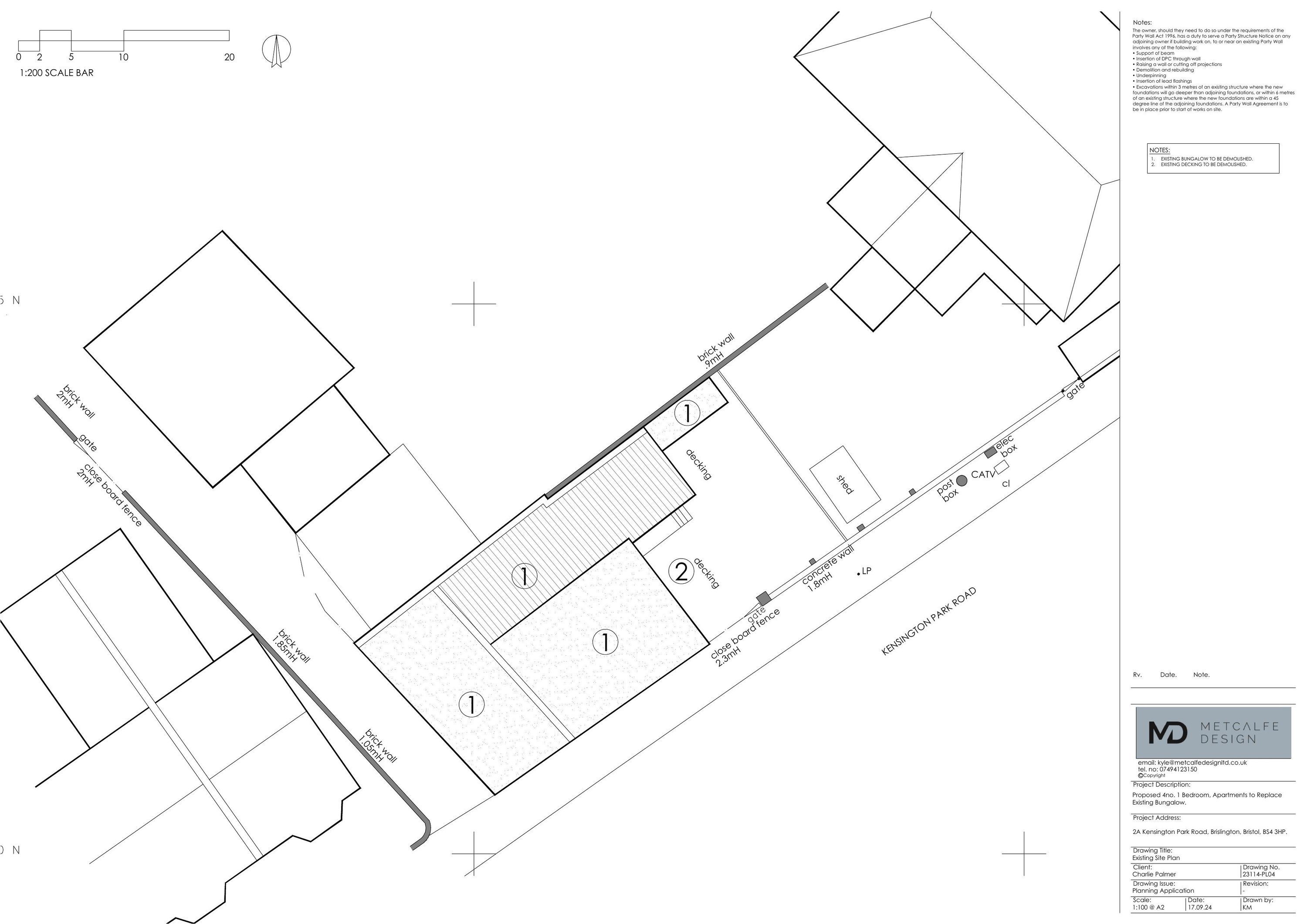
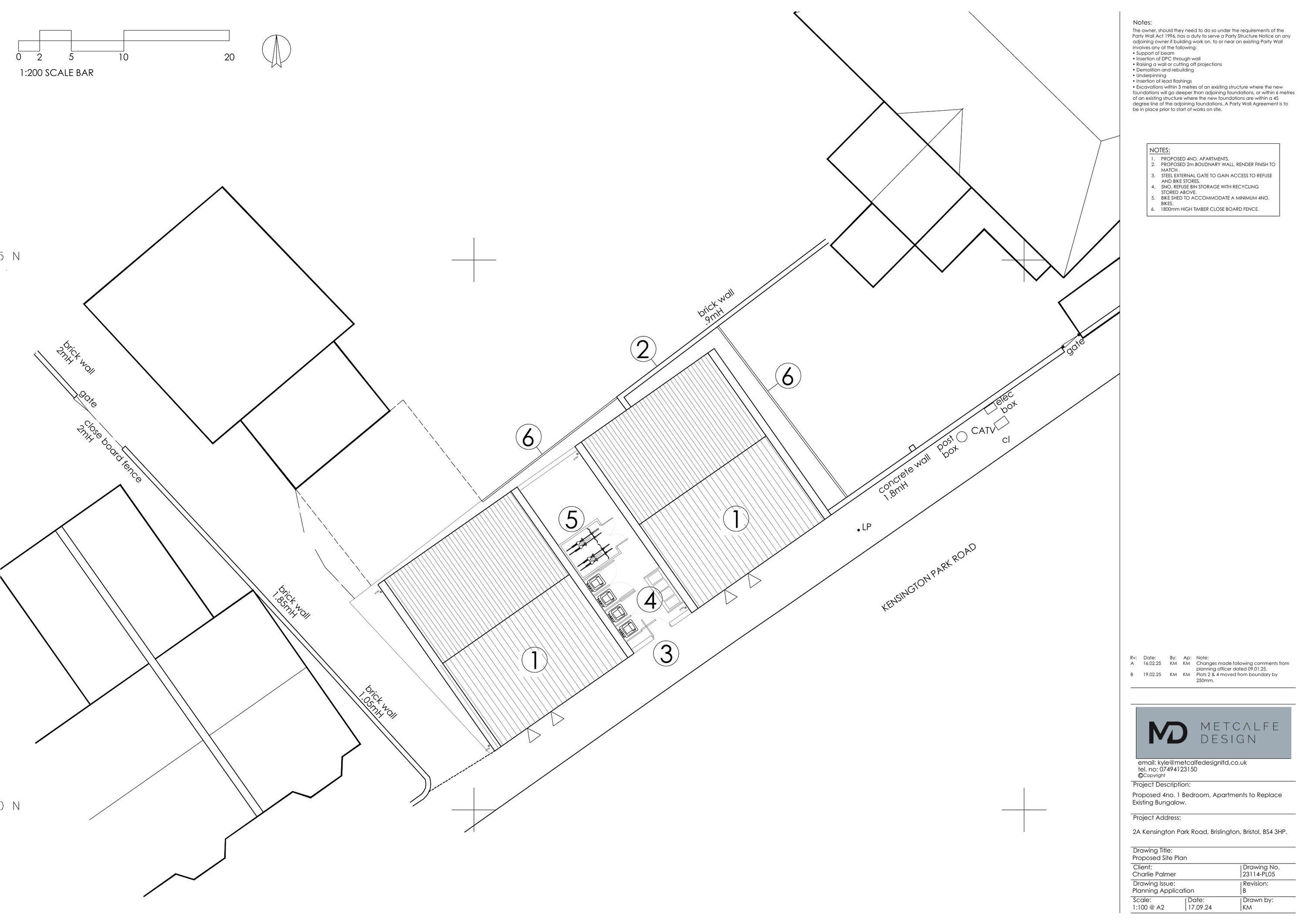
Demolition of 2 bedroom bungalow to be replaced with the construction of 4no. 1-bedroom apartments.

Documents

APPLICATION FORM
Application Form
Not archived · Council Link
CIL FORM
CIL Documents
Not archived · Council Link
COAL MINING RISK ASSESSMENT
Supporting document
Not archived · Council Link
DESIGN AND ACCESS STATEMENT
Design & Access Statement
Not archived · Council Link
ENERGY STATEMENT
Supporting document
Not archived · Council Link
EXISTING AND PROPOSED STREET SCENE
Revised plan
Not archived · Council Link
EXISTING AND PROPOSED STREET SCENES
Superseded Plan
Not archived · Council Link
EXISTING FLOOR PLANS & ELEVATIONS
Plan
Not archived · Council Link
Plan
Archived · Council Link
GEOENVIRONMENTAL DESK STUDY REPORT
Supporting document
Not archived · Council Link
INDICATIVE DRAINAGE PLAN
Plan
Not archived · Council Link
INDICATIVE DRAINAGE PLAN
Revised plan
Not archived · Council Link
NEIGHBOUR NOTIFICATION LIST ISSUED 14/10/2024
Neighbour Notification List
Not archived · Council Link
NEIGHBOUR NOTIFICATION LIST ISSUED 17.03.2025
Neighbour Notification List
Not archived · Council Link
NEUTRAL
Public Comment
Not archived · Council Link
OBJECTS
Public Comment
Not archived · Council Link
OBJECTS
Public Comment
Not archived · Council Link
OBJECTS
Public Comment
Not archived · Council Link
OBJECTS
Public Comment
Not archived · Council Link
OBJECTS
Public Comment
Not archived · Council Link
OBJECTS
Public Comment
Not archived · Council Link
OBJECTS
Public Comment
Not archived · Council Link
OBJECTS
Public Comment
Not archived · Council Link
OBJECTS
Public Comment
Not archived · Council Link
OBJECTS
Public Comment
Not archived · Council Link
OBJECTS
Public Comment
Not archived · Council Link
OBJECTS
Public Comment
Not archived · Council Link
OBJECTS
Public Comment
Not archived · Council Link
OBJECTS
Public Comment
Not archived · Council Link
OBJECTS
Public Comment
Not archived · Council Link
OBJECTS
Public Comment
Not archived · Council Link
OBJECTS
Public Comment
Not archived · Council Link
OBJECTS
Public Comment
Not archived · Council Link
OBJECTS
Public Comment
Not archived · Council Link
OBJECTS
Public Comment
Not archived · Council Link
OBJECTS
Public Comment
Not archived · Council Link
OBJECTS
Public Comment
Not archived · Council Link
OBJECTS
Public Comment
Not archived · Council Link
OBJECTS
Public Comment
Not archived · Council Link
OBJECTS
Public Comment
Not archived · Council Link
OBJECTS
Public Comment
Not archived · Council Link
OBJECTS
Public Comment
Not archived · Council Link
OBJECTS
Public Comment
Not archived · Council Link
OBJECTS
Public Comment
Not archived · Council Link
OBJECTS
Public Comment
Not archived · Council Link
OBJECTS
Public Comment
Not archived · Council Link
OBJECTS
Public Comment
Not archived · Council Link
OBJECTS
Public Comment
Not archived · Council Link
OBJECTS
Public Comment
Not archived · Council Link
OBJECTS
Public Comment
Not archived · Council Link
OBJECTS
Public Comment
Not archived · Council Link
OBJECTS
Public Comment
Not archived · Council Link
OBJECTS
Public Comment
Not archived · Council Link
OBJECTS
Public Comment
Not archived · Council Link
OBJECTS
Public Comment
Not archived · Council Link
OBJECTS
Public Comment
Not archived · Council Link
OBJECTS
Public Comment
Not archived · Council Link
OBJECTS
Public Comment
Not archived · Council Link
OBJECTS
Public Comment
Not archived · Council Link
OBJECTS
Public Comment
Not archived · Council Link
OBJECTS
Public Comment
Not archived · Council Link
OBJECTS
Public Comment
Not archived · Council Link
OBJECTS
Public Comment
Not archived · Council Link
OBJECTS
Public Comment
Not archived · Council Link
OBJECTS
Public Comment
Not archived · Council Link
OBJECTS
Public Comment
Not archived · Council Link
OBJECTS
Public Comment
Not archived · Council Link
OBJECTS
Public Comment
Not archived · Council Link
OBJECTS
Public Comment
Not archived · Council Link
Plan
Archived · Council Link
Revised plan
Archived · Council Link
Plan
Archived · Council Link
SUPPORTS
Public Comment
Not archived · Council Link
TRANSPORT DEVELOPMENT MANAGEMENT
Consultee Comment
Not archived · Council Link

Take Action

Make your voice heard. Authorities need to hear from people who support new homes.

✉️ Write Email in Support View on Council Portal