← Back to Bristol City Council

Status

Pending consideration Approval of reserved matters
Received
11 Feb 2025
New dwellings
322

Summary

Reserved matters for redevelopment to provide 322 dwellings and 428.5sqm Class E floorspace.

Full Proposal

Application for the approval of Reserved Matters (appearance, layout, landscape and scale) pursuant to outline permission 21/00531/P - Approval sought for demolition and redevelopment to provide 322 dwellings (Class C3) and 428.5sqm of Class E floorspace with supporting infrastructure, drainage, parking and landscaping.

Documents

36296 HENGROVE DAS ADDENDUM- P02
Revised document
Not archived · Council Link
ACTIVE TRAVEL ENGLAND
Comment Received
Not archived · Council Link
ACTIVE TRAVEL ENGLAND PLANNING
Comment Received
Not archived · Council Link
APARTMENT BLOCK A1 ELEVATIONS
Superseded Plan
Not archived · Council Link
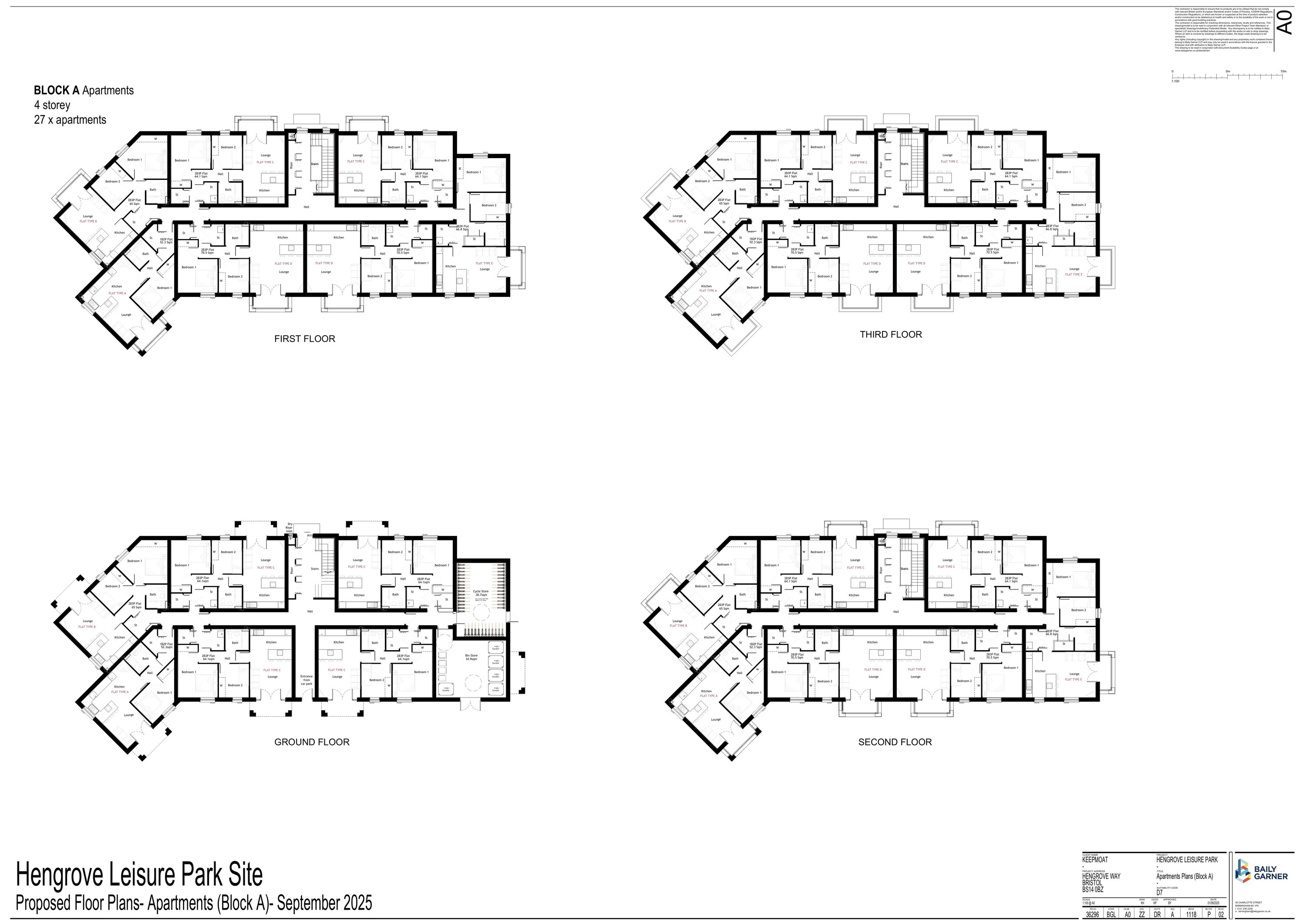
APARTMENT BLOCK A1 FLOOR PLANS
Superseded Plan
Not archived · Council Link
APARTMENT BLOCK A2 ELEVATIONS
Superseded Plan
Not archived · Council Link
APARTMENT BLOCK A2 FLOOR PLANS
Superseded Plan
Not archived · Council Link
APARTMENT BLOCK B ELEVATIONS
Superseded Plan
Not archived · Council Link
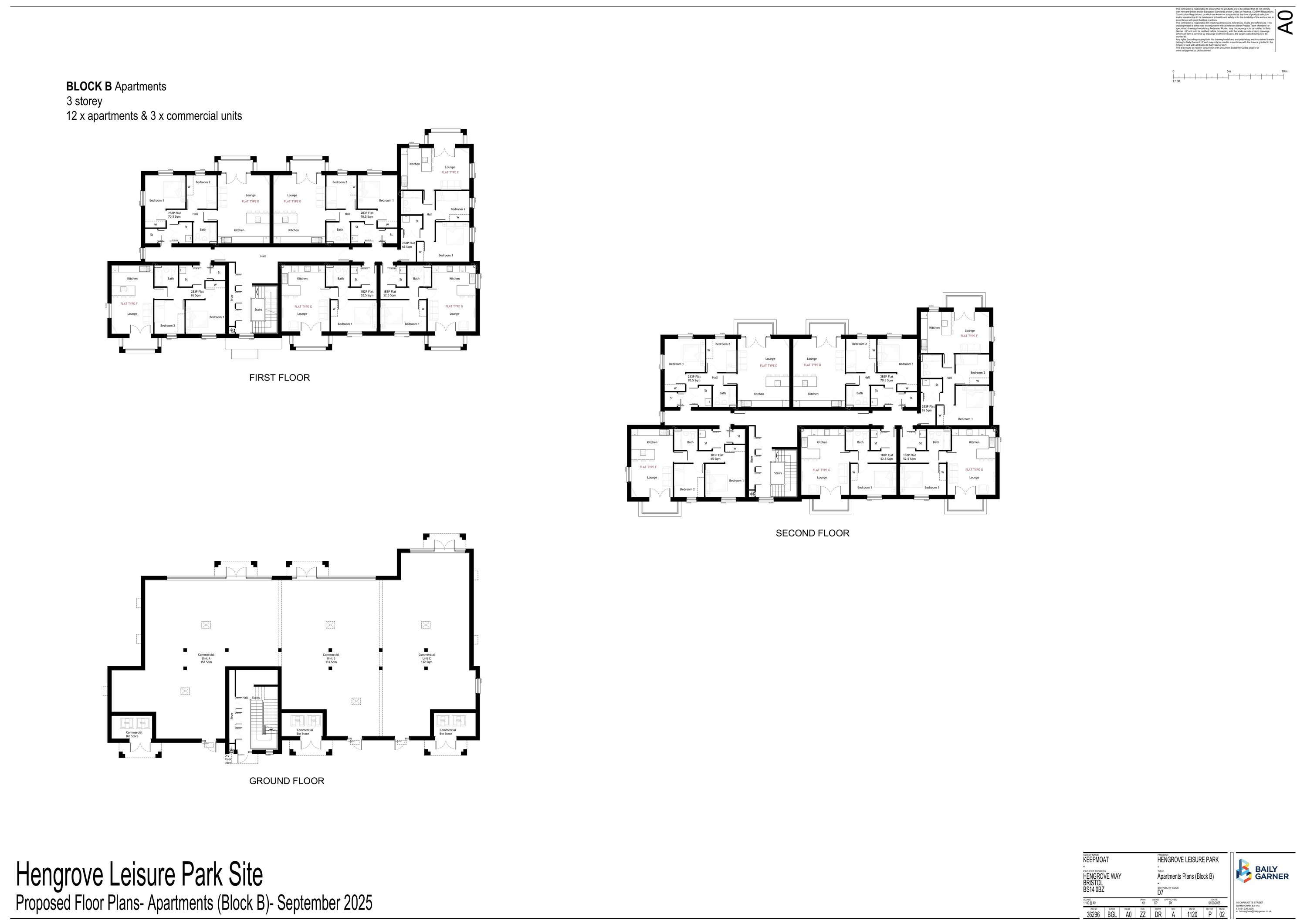
APARTMENT BLOCK B FLOOR PLANS
Superseded Plan
Not archived · Council Link
APARTMENT BLOCK C ELEVATIONS
Superseded Plan
Not archived · Council Link
APARTMENT BLOCK C FLOOR PLANS
Superseded Plan
Not archived · Council Link
APARTMENT BLOCK D ELEVATIONS
Superseded Plan
Not archived · Council Link
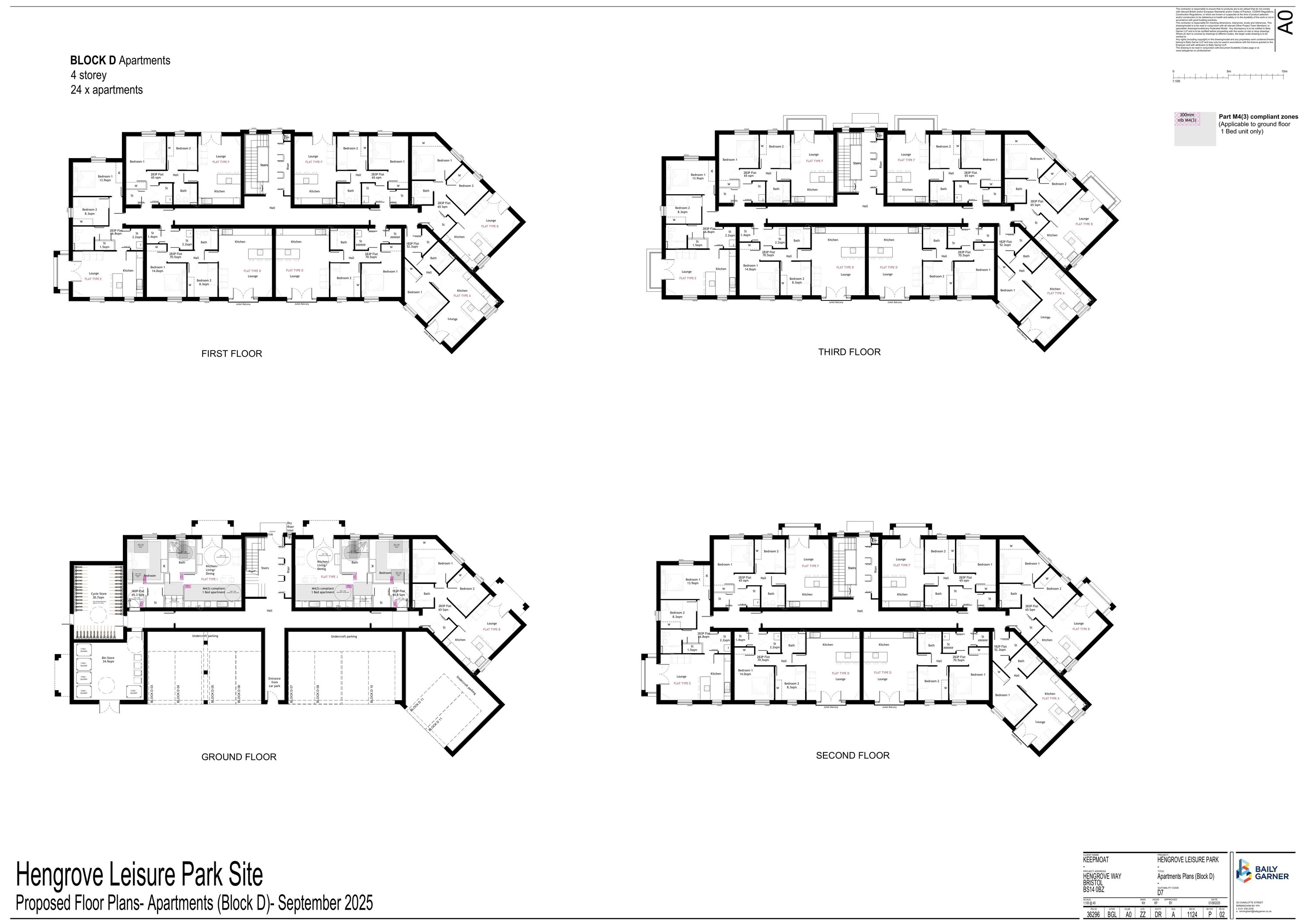
APARTMENT BLOCK D FLOOR PLANS
Superseded Plan
Not archived · Council Link
APARTMENT BLOCK E ELEVATIONS
Superseded Plan
Not archived · Council Link
APARTMENT BLOCK E FLOOR PLANS
Superseded Plan
Not archived · Council Link
APPLICATION FORM
Application Form
Not archived · Council Link
AVON FIRE & RESCUE SERVICE - 1 OF 2
Comment Received
Not archived · Council Link
AVON FIRE & RESCUE SERVICE - 2 OF 2
Comment Received
Not archived · Council Link
BRISTOL BUSINESS DEVELOPMENT VATTENFALL HEAT UK
Consultee Comment
Not archived · Council Link
BRISTOL TREE FORUM
Public Comment
Not archived · Council Link
BRISTOL TREE FORUM - OBJECTS (PRELIMINARY COMMENT)
Public Comment
Not archived · Council Link
CENTRAL LINEAR PARK PROPOSAL
Revised plan
Not archived · Council Link
CENTRAL LINEAR PARK PROPOSAL
Superseded Plan
Not archived · Council Link
CIL FORM 1 W APPENDIX 06.02.25
Superseded Plan
Not archived · Council Link
CIL FORM 1 W APPENDIX 24.10.25
Revised document
Not archived · Council Link
DESIGN AND ACCESS PART 1 OF 4
Design & Access Statement
Not archived · Council Link
DESIGN AND ACCESS PART 2 OF 4
Design & Access Statement
Not archived · Council Link
DESIGN AND ACCESS PART 3 OF 4
Design & Access Statement
Not archived · Council Link
DESIGN AND ACCESS PART 4 OF 4
Design & Access Statement
Not archived · Council Link
DETAILED PLANTING PROPOSALS SHEET 1 OF 8
Superseded Plan
Not archived · Council Link
DETAILED PLANTING PROPOSALS SHEET 2 OF 8
Superseded Plan
Not archived · Council Link
DETAILED PLANTING PROPOSALS SHEET 3 OF 8
Superseded Plan
Not archived · Council Link
DETAILED PLANTING PROPOSALS SHEET 4 OF 8
Superseded Plan
Not archived · Council Link
DETAILED PLANTING PROPOSALS SHEET 5 OF 8
Superseded Plan
Not archived · Council Link
DETAILED PLANTING PROPOSALS SHEET 6 OF 8
Superseded Plan
Not archived · Council Link
DETAILED PLANTING PROPOSALS SHEET 7 OF 8
Superseded Plan
Not archived · Council Link
DETAILED PLANTING PROPOSALS SHEET 8 OF 8
Superseded Plan
Not archived · Council Link
DETAILED PLANTING PROPOSALS SHEET1OF8
Revised plan
Not archived · Council Link
DETAILED PLANTING PROPOSALS SHEET2OF8
Revised plan
Not archived · Council Link
DETAILED PLANTING PROPOSALS SHEET3OF8
Revised plan
Not archived · Council Link
DETAILED PLANTING PROPOSALS SHEET4OF8
Revised plan
Not archived · Council Link
DETAILED PLANTING PROPOSALS SHEET5OF8
Revised plan
Not archived · Council Link
DETAILED PLANTING PROPOSALS SHEET6OF8
Revised plan
Not archived · Council Link
DETAILED PLANTING PROPOSALS SHEET7OF
Revised plan
Not archived · Council Link
DETAILED PLANTING PROPOSALS SHEET7OF8
Superseded Plan
Not archived · Council Link
DETAILED PLANTING PROPOSALS SHEET7OF8
Superseded Plan
Not archived · Council Link
DETAILED PLANTING PROPOSALS SHEET8OF8
Revised plan
Not archived · Council Link
DETAILED PLANTING PROPOSALS SHEET8OF8
Superseded Plan
Not archived · Council Link
ENVIRONMENT AGENCY
Comment Received
Not archived · Council Link
Revised plan
Archived · Council Link
Superseded Plan
Archived · Council Link
Extension of time
Extension of time
Not archived · Council Link
Extension of time
Extension of time
Not archived · Council Link
Extension of time
Extension of time
Not archived · Council Link
Extension of time
Extension of time
Not archived · Council Link
HLP - RMA & DOC COVER LETTER 24.10.25
Revised document
Not archived · Council Link
HLP - RMA AND DOC COVER LETTER 06.02.25
Supporting document
Not archived · Council Link
HOUSETYPE ASHBURN PLANS AND ELEVATIONS BUFF BRICK
Plan
Not archived · Council Link
HOUSETYPE DARRACOTT PLANS AND ELEVATIONS BUFF BRIC
Plan
Not archived · Council Link
HOUSETYPE DARRACOTT PLANS AND ELEVATIONS RED BRICK
Plan
Not archived · Council Link
HOUSETYPE DEVOKE PLANS AND ELEVATIONS BUFF BRICK
Superseded Plan
Not archived · Council Link
HOUSETYPE DEVOKE PLANS AND ELEVATIONS RED BRICK
Superseded Plan
Not archived · Council Link
HOUSETYPE FARLEY T1 PLANS AND ELEVATIONS RED BRICK
Plan
Not archived · Council Link
HOUSETYPE FARLEY T2 PLANS AND ELEVATIONS RED BRICK
Plan
Not archived · Council Link
HOUSETYPE HOLGATE PLANS AND ELEVATIONS BUFF BRICK
Superseded Plan
Not archived · Council Link
HOUSETYPE KERSHOPE PLANS AND ELEVATIONS RED BRICK
Plan
Not archived · Council Link
HOUSETYPE OLDBURY PLANS AND ELEVATIONS RED BRICK
Plan
Not archived · Council Link
HOUSETYPE SELSET PLANS AND ELEVATIONS BUFF BRICK
Superseded Plan
Not archived · Council Link
HOUSETYPE SELSET PLANS AND ELEVATIONS RED BRICK
Superseded Plan
Not archived · Council Link
HOUSETYPE WESTBOURNE PLANS AND ELEVATIONS BUFF BRI
Plan
Not archived · Council Link
LANDSCAPE AND ECOLOGICAL MANAGEMENT PLAN
Supporting document
Not archived · Council Link
LANDSCAPE GENERAL ARRANGEMENT PLAN
Revised plan
Not archived · Council Link
LANDSCAPE GENERAL ARRANGEMENT PLAN
Superseded Plan
Not archived · Council Link
LANDSCAPE GENERAL ARRANGEMENT PLAN
Superseded Plan
Not archived · Council Link
LANDSCAPE SPECIFICATION AND DETAILS
Superseded Plan
Not archived · Council Link
LANDSCAPE SPECIFICATION AND DETAILS
Revised plan
Not archived · Council Link
MISS JENNA ANGLE
Consultee Comment
Not archived · Council Link
MR LIAM POWELL
Consultee Comment
Not archived · Council Link
MR RICHARD BENNETT
Consultee Comment
Not archived · Council Link
MS BEATRICE MUNBY
Consultee Comment
Not archived · Council Link
NATURAL ENGLAND
Comment Received
Not archived · Council Link
NATURAL ENGLAND
Comment Received
Not archived · Council Link
NATURE CONSERVATION
Consultee Comment
Not archived · Council Link
NEIGHBOUR NOTIFICATION LIST ISSUED 24.02.2025
Neighbour Notification List
Not archived · Council Link
NEUTRAL
Public Comment
Not archived · Council Link
NEUTRAL
Public Comment
Not archived · Council Link
NEUTRAL
Public Comment
Not archived · Council Link
OBJECTS
Public Comment
Not archived · Council Link
OBJECTS
Public Comment
Not archived · Council Link
OBJECTS
Public Comment
Not archived · Council Link
OBJECTS
Public Comment
Not archived · Council Link
OBJECTS
Public Comment
Not archived · Council Link
OBJECTS
Public Comment
Not archived · Council Link
OBJECTS
Public Comment
Not archived · Council Link
OBJECTS
Public Comment
Not archived · Council Link
OBJECTS
Public Comment
Not archived · Council Link
OBJECTS
Public Comment
Not archived · Council Link
OBJECTS
Public Comment
Not archived · Council Link
OBJECTS
Public Comment
Not archived · Council Link
OBJECTS
Public Comment
Not archived · Council Link
OBJECTS
Public Comment
Not archived · Council Link
OBJECTS
Public Comment
Not archived · Council Link
OBJECTS
Public Comment
Not archived · Council Link
OBJECTS
Public Comment
Not archived · Council Link
OBJECTS
Public Comment
Not archived · Council Link
OBJECTS
Public Comment
Not archived · Council Link
OBJECTS
Public Comment
Not archived · Council Link
OBJECTS
Public Comment
Not archived · Council Link
OBJECTS
Public Comment
Not archived · Council Link
OBJECTS
Public Comment
Not archived · Council Link
OBJECTS
Public Comment
Not archived · Council Link
OBJECTS
Public Comment
Not archived · Council Link
OBJECTS
Public Comment
Not archived · Council Link
OBJECTS
Public Comment
Not archived · Council Link
OBJECTS
Public Comment
Not archived · Council Link
OPERATIONS AND MAINTENANCE (O&M) MANUAL
Supporting document
Not archived · Council Link
PLANNING COMPLIANCE STATEMENT
Supporting document
Not archived · Council Link
PROPOSED ACCOMMODATION SCHEDULE - DETAILED
Revised document
Not archived · Council Link
PROPOSED ACCOMMODATION SCHEDULE-P02 - PLANNING
Revised document
Not archived · Council Link
PROPOSED AFFORDABLE HOUSING PLAN
Superseded Plan
Not archived · Council Link
PROPOSED BIN & CYCLE STORAGE DETAILS
Revised plan
Not archived · Council Link
PROPOSED BIN COLLECTION POINT DETAILS
Revised plan
Not archived · Council Link
PROPOSED BIN COLLECTION POINT DETAILS
Superseded Plan
Not archived · Council Link
PROPOSED BIN CYCLE STORE DETAILS
Superseded Plan
Not archived · Council Link
PROPOSED BOUNDARIES PLAN
Superseded Plan
Not archived · Council Link
PROPOSED BOUNDARY TREATMENT PLAN
Revised plan
Not archived · Council Link
PROPOSED CAR PARKING & EVCP PLAN
Revised plan
Not archived · Council Link
PROPOSED CAR PARKING PLAN
Superseded Plan
Not archived · Council Link
PROPOSED ELEVATIONS- APARTMENTS (BLOCK A)
Revised plan
Not archived · Council Link
PROPOSED ELEVATIONS- APARTMENTS (BLOCK A)
Revised plan
Not archived · Council Link
PROPOSED ELEVATIONS- APARTMENTS (BLOCK B)
Revised plan
Not archived · Council Link
PROPOSED ELEVATIONS- APARTMENTS (BLOCK C)
Revised plan
Not archived · Council Link
PROPOSED ELEVATIONS- APARTMENTS (BLOCK D)
Revised plan
Not archived · Council Link
PROPOSED ELEVATIONS- APARTMENTS (BLOCK E)
Revised plan
Not archived · Council Link
PROPOSED ELEVATIONS- APARTMENTS (BLOCK F)
Revised plan
Not archived · Council Link
PROPOSED GROSS INTERNAL AREAS- OVERALL
Revised document
Not archived · Council Link
PROPOSED HEIGHTS PLAN
Revised plan
Not archived · Council Link
PROPOSED HEIGHTS PLAN
Superseded Plan
Not archived · Council Link
PROPOSED HIGHWAY AND PEDESTRIAN ROUTE PLAN
Revised plan
Not archived · Council Link
PROPOSED ILLUSTRATIVE MASTERPLAN
Revised plan
Not archived · Council Link
PROPOSED MATERIAL ALLOCATION PLAN
Revised plan
Not archived · Council Link
PROPOSED MATERIAL ALLOCATION PLAN
Revised plan
Not archived · Council Link
PROPOSED MATERIALS PLAN
Superseded Plan
Not archived · Council Link
PROPOSED SALES ARENA AND PARKING
Revised plan
Not archived · Council Link
PROPOSED SITE LAYOUT PLAN
Revised plan
Not archived · Council Link
PROPOSED SITE SECTIONS
Superseded Plan
Not archived · Council Link
PROPOSED SITE SECTIONS
Revised plan
Not archived · Council Link
PROPOSED SITE SECTIONS
Revised plan
Not archived · Council Link
PROPOSED STREET ELEVATIONS
Superseded Plan
Not archived · Council Link
PROPOSED STREET ELEVATIONS
Superseded Plan
Not archived · Council Link
PROPOSED STREET SCENES
Revised plan
Not archived · Council Link
PROPOSED STREET SCENES
Revised plan
Not archived · Council Link
PROPOSED TENURE PLAN
Revised plan
Not archived · Council Link
PROPOSED UNIT MIX PLAN
Revised plan
Not archived · Council Link
PROPOSED UNIT MIX PLAN
Superseded Plan
Not archived · Council Link
PROPOSED WASTE MANAGEMENT PLAN
Superseded Plan
Not archived · Council Link
PROPOSED WASTE MANAGEMENT PLAN
Revised plan
Not archived · Council Link
REVISED FLOOR PLANS & ELEVATIONS- DEVOKE HOUSETYPE (BUFF BRICK)
Revised plan
Not archived · Council Link
REVISED FLOOR PLANS & ELEVATIONS- DEVOKE HOUSETYPE (RED BRICK)
Revised plan
Not archived · Council Link
REVISED FLOOR PLANS & ELEVATIONS- HOLGATE HOUSETYPE (BUFF BRICK).
Revised plan
Not archived · Council Link
REVISED FLOOR PLANS & ELEVATIONS- SELSET HOUSETYPE (BUFF BRICK)
Revised plan
Not archived · Council Link
REVISED FLOOR PLANS & ELEVATIONS- SELSET HOUSETYPE (RED BRICK)
Revised plan
Not archived · Council Link
SALES GARAGE PLANS AND ELEVATIONS RED BRICK
Plan
Not archived · Council Link
SINGLE GARAGE PLANS AND ELEVATIONS BUFF BRICK
Plan
Not archived · Council Link
SINGLE GARAGE PLANS AND ELEVATIONS RED BRICK
Plan
Not archived · Council Link
SITE CONSTRAINTS PLAN
Revised plan
Not archived · Council Link
SITE VISIT REPORT, PREPARED BY TOTAL WEED CONTROL
Supporting document
Not archived · Council Link
SUPPORTS
Public Comment
Not archived · Council Link
SUSTAINABILITY TEAM COMMENTS
Comment Received
Not archived · Council Link
TDM RESPONSE
Consultee Comment
Not archived · Council Link
THE AVON FIRE AND RESCUE SERVICE
Consultee Comment
Not archived · Council Link
THE BRISTOL WASTE COMPANY
Consultee Comment
Not archived · Council Link
THE CRIME REDUCTION UNIT
Consultee Comment
Not archived · Council Link
THE CRIME REDUCTION UNIT
Consultee Comment
Not archived · Council Link
THE PUBLIC PROTECTION TEAM (LAND CONTAMINATION)
Consultee Comment
Not archived · Council Link
TWIN GARAGE PLANS AND ELEVATIONS RED BRICK
Plan
Not archived · Council Link
URBAN DESIGN RESPONSE
Consultee Comment
Not archived · Council Link
URBAN DESIGN RESPONSE
Consultee Comment
Not archived · Council Link

Take Action

Make your voice heard. Authorities need to hear from people who support new homes.

✉️ Write Email in Support View on Council Portal