← Back to Bristol City Council

Status

Pending consideration New housing
Received
02 Apr 2025
New dwellings
0

Summary

Construction of a new dwelling with integrated parking and garden.

Full Proposal

Construction of dwelling with integrated parking and garden.

Documents

APPENDIX 6.1 - REVISED DRAWINGS
Supporting document
Not archived · Council Link
APPENDIX 6.2 - SUSTAINABILITY AND ENERGY STATEMENT
Supporting document
Not archived · Council Link
APPENDIX 6.2 - SUSTAINABILITY AND ENERGY STATEMENT
Superseded document
Not archived · Council Link
APPENDIX 6.3 - HERITAGE STATEMENT
Supporting document
Not archived · Council Link
APPENDIX 6.3 - HERITAGE STATEMENT
Superseded document
Not archived · Council Link
APPENDIX 6.4 DAYLIGHT AND SUNLIGHT ASSESSMENT
Supporting document
Not archived · Council Link
APPLICATION COVER LETTER
Supporting document
Not archived · Council Link
APPLICATION FORM
Application Form
Not archived · Council Link
BIODIVERSITY NET GAIN EXEMPTION STATEMENT
Supporting document
Not archived · Council Link
BIODIVERSITY NET GAIN EXEMPTION STATEMENT
Supporting document
Not archived · Council Link
BROCHURE INVISIBLE
Supporting document
Not archived · Council Link
CIL - FORM 1 QUESTION FORM/ADDITIONAL INFORMATION
CIL Documents
Not archived · Council Link
CIL - FORM 1 QUESTION FORM/ADDITIONAL INFORMATION
CIL Documents
Not archived · Council Link
CIL - FORM 7 PART 1 SBR CLAIM
CIL Documents
Not archived · Council Link
CLARIFICATION OF WORKS
Supporting document
Not archived · Council Link
COAL MINING RISK ASSESSMENT
Superseded document
Not archived · Council Link
COAL MINING RISK ASSESSMENT
Supporting document
Not archived · Council Link
CONTAMINATED LAND
Consultee Comment
Not archived · Council Link
CROSS SECTIONS
Revised plan
Not archived · Council Link
DESIGN AND ACCESS STATEMENT - PART 1
Revised document
Not archived · Council Link
DESIGN AND ACCESS STATEMENT - PART 1
Superseded document
Not archived · Council Link
DESIGN AND ACCESS STATEMENT - PART 2
Superseded document
Not archived · Council Link
DESIGN AND ACCESS STATEMENT - PART 2
Revised document
Not archived · Council Link
DESIGN AND ACCESS STATEMENT - PART 3
Revised document
Not archived · Council Link
DESIGN AND ACCESS STATEMENT - PART 3
Superseded document
Not archived · Council Link
ELEVATION AND CROSS SECTION
Plan
Not archived · Council Link
EV CHARGING POINT WITH IN THE GARAGE
Supporting document
Not archived · Council Link
Plan
Archived · Council Link
FLOOR PLAN
Supporting document
Not archived · Council Link
LARGE CAR TRACKING GENERAL ARRANGEMENT
Superseded Plan
Not archived · Council Link
LARGE CAR TRACKING GENERAL ARRANGEMENT
Revised plan
Not archived · Council Link
MONTPELIER CHARACTER APPRAISAL
Supporting document
Not archived · Council Link
NATURE CONSERVATION
Consultee Comment
Not archived · Council Link
NEIGHBOUR NOTIFICATION LIST ISSUED 05.06.2025
Neighbour Notification List
Not archived · Council Link
NORTH & SOUTH (SIDE) ELEVATIONS
Superseded Plan
Not archived · Council Link
OBJECTS
Public Comment
Not archived · Council Link
OBJECTS
Public Comment
Not archived · Council Link
PHOTOGRAPH NEIGHBOURBOURING PROPERTIES ON FAIRFIELD ROAD
Supporting document
Not archived · Council Link
PHOTOGRAPH NEIGHBOURING PROPERTIES ON FAIRFIELD ROAD
Supporting document
Not archived · Council Link
PROPOSED CROSS SECTIONS
Superseded Plan
Not archived · Council Link
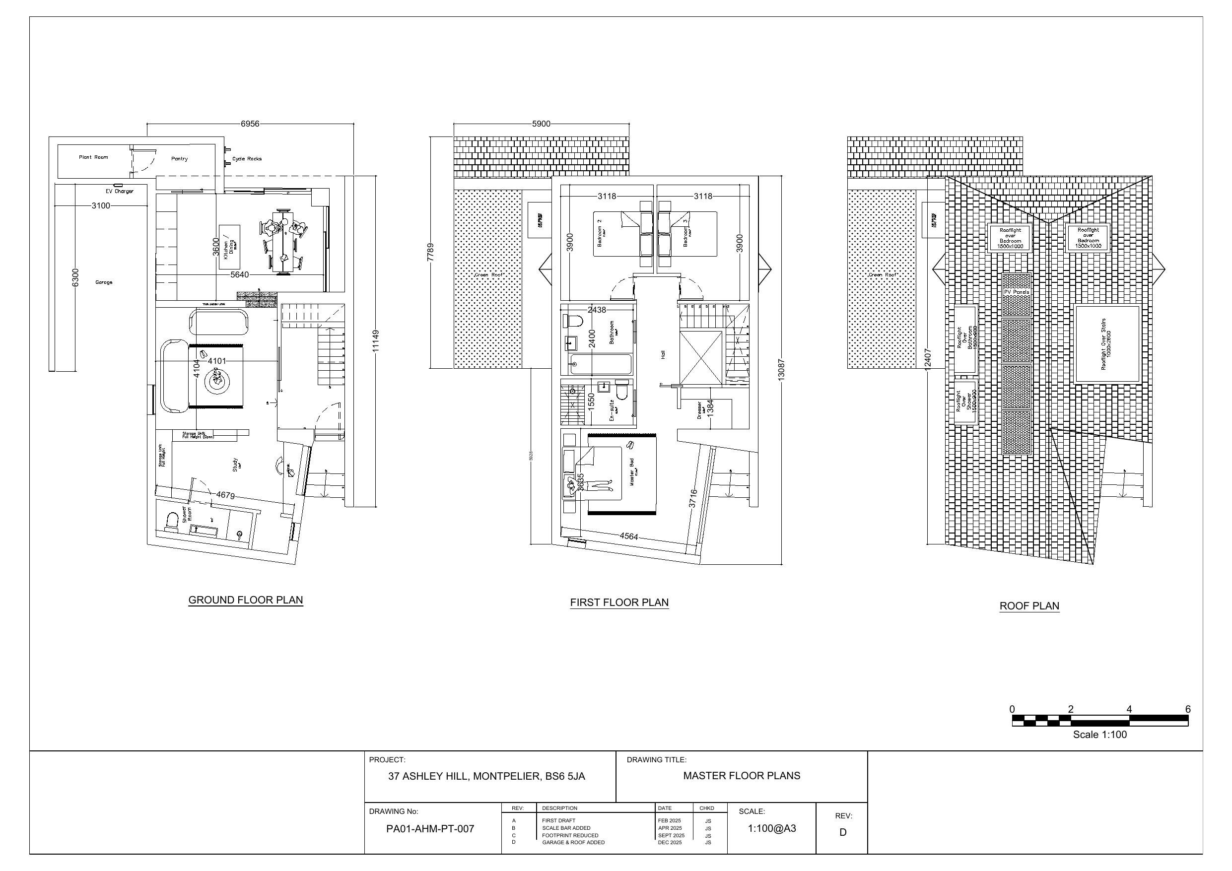
PROPOSED FIRST FLOOR PLAN GENERAL ARRANGEMENT
Revised plan
Not archived · Council Link
PROPOSED FIRST FLOOR PLAN GENERAL ARRANGEMENT
Superseded Plan
Not archived · Council Link
Superseded Plan
Archived · Council Link
Revised plan
Archived · Council Link
PROPOSED FRONT AND REAR ELEVATIONS
Superseded Plan
Not archived · Council Link
PROPOSED GROUND FLOOR PLAN GENERAL ARRANGEMENT
Revised plan
Not archived · Council Link
PROPOSED GROUND FLOOR PLAN GENERAL ARRANGEMENT
Superseded Plan
Not archived · Council Link
PROPOSED ROOF PLAN
Superseded Plan
Not archived · Council Link
PROPOSED ROOF PLAN GENERAL ARRANGEMENT
Revised plan
Not archived · Council Link
PROPOSED SOUTH & NORTH (SIDE) ELEVATIONS
Revised plan
Not archived · Council Link
PROPOSED WEST (FRONT) AND EAST (BACK) ELEVATIONS
Revised plan
Not archived · Council Link
RECYCLE BINS STORAGE
Supporting document
Not archived · Council Link
RESPONSE TO QUESTIONS RAISED BY CASE OFFICER
Supporting document
Not archived · Council Link
Plan
Archived · Council Link
THE COAL AUTHORITY
Comment Received
Not archived · Council Link
THE COAL AUTHORITY
Comment Received
Not archived · Council Link
TRANSPORT DEVELOPMENT MANAGEMENT
Consultee Comment
Not archived · Council Link
TWO HANGING CYCLE RAKS IN REAR GARDEN AREA
Supporting document
Not archived · Council Link
VIEWS OF NEW PROPOSED HOUSE AND HOST HOUSE
Supporting document
Not archived · Council Link
VIEWS OF NEW PROPOSED HOUSE AND HOST HOUSE
Supporting document
Not archived · Council Link
VIEWS OF NEW PROPOSED HOUSE AND HOST HOUSE
Supporting document
Not archived · Council Link
VIEWS OF NEW PROPOSED HOUSE AND HOST HOUSE
Supporting document
Not archived · Council Link
VIEWS OF NEW PROPOSED HOUSE AND HOST HOUSE
Supporting document
Not archived · Council Link
VIEWS OF NEW PROPOSED HOUSE AND HOST HOUSE
Supporting document
Not archived · Council Link

Take Action

Make your voice heard. Authorities need to hear from people who support new homes.

✉️ Write Email in Support View on Council Portal