← Back to Bristol City Council

Status

Pending consideration Commercial
Received
17 Apr 2025
New dwellings
0

Summary

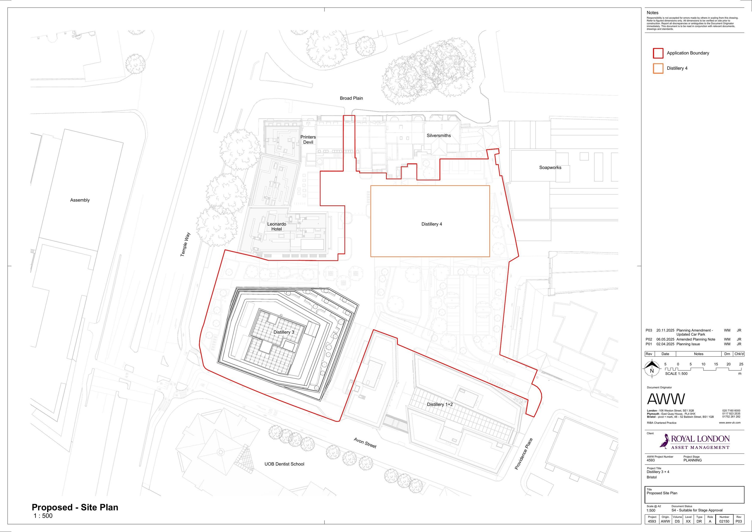
Hybrid commercial scheme: detailed office development, public realm and parking; outline mixed-use offices and ground-floor commercial.

Full Proposal

Hybrid application for site clearance and commercial development comprising: Full detailed approval for Distillery 3 (Glassfields Plot 1) for office use (Class E(c)(i), E(c)(ii) & E(g)(i)), public realm, landscaping, access, car parking, cycle storage, plant, machinery and other associated infrastructure. Outline planning permission with some matters reserved for the development of Distillery 4 (Glassfields Plot 3) for mixed use office (Class E(c)(i), E(c)(ii) & E(g)(i)) with ground floor flexible commercial use (Class E(b), E(c), E(d), E(g)(i) & Drinking Establishment (Sui Generis)). Approval sought for Access, layout, and landscaping.

Documents

16241_BNG_STATUTORY_METRIC_0 4112025
Revised document
Not archived · Council Link
ADVERT FROM PAPER
Supporting document
Not archived · Council Link
AIR QUALITY ASSESSMENT
Supporting document
Not archived · Council Link
AIR QUALITY ASSESSMENT - 14 NOVEMBER 2025
Revised document
Not archived · Council Link
APPLICATION FORM
Application Form
Not archived · Council Link
ARBORICULTURAL IMPACT ASSESSMENT
Supporting document
Not archived · Council Link
ARBORICULTURAL IMPACT ASSESSMENT - 25 NOVEMBER 2025
Revised document
Not archived · Council Link
BAY STUDY 02 - AVON STREET - E01
Revised plan
Not archived · Council Link
BIODIVERSITY NET GAIN - METRIC
Supporting document
Not archived · Council Link
BREEAM COMMUNITIES SCOPING EXERCISE
Supporting document
Not archived · Council Link
BRISTOL BUSINESS DEVELOPMENT VATTENFALL HEAT UK
Consultee Comment
Not archived · Council Link
BRISTOL BUSINESS DEVELOPMENT VATTENFALL HEAT UK
Consultee Comment
Not archived · Council Link
BRISTOL BUSINESS DEVELOPMENT VATTENFALL HEAT UK
Consultee Comment
Not archived · Council Link
BRISTOL CIVIC SOCIETY
Comment Received
Not archived · Council Link
BRISTOL CIVIC SOCIETY - SUPPORTS
Public Comment
Not archived · Council Link
BRISTOL CIVIC SOCIETY - SUPPORTS
Public Comment
Not archived · Council Link
BRISTOL WALKING ALLIANCE - COMMENT
Public Comment
Not archived · Council Link
CAR PARK - BASEMENT PLAN
Plan
Not archived · Council Link
CAR PARK - CORE 1 - ELEVATIONS
Plan
Not archived · Council Link
CAR PARK - CORE 1 - PLANS
Plan
Not archived · Council Link
CAR PARK - CORE 1 - SECTIONS
Plan
Not archived · Council Link
CAR PARK - CORE 2 - ELEVATIONS
Plan
Not archived · Council Link
CAR PARK - CORE 2 - PLANS
Plan
Not archived · Council Link
CAR PARK - ELEVATIONS
Plan
Not archived · Council Link
CAR PARK - LANDSCAPE LEVEL (GROUND FLOOR PLAN)
Plan
Not archived · Council Link
CAR PARK - LANDSCAPE LEVEL GROUND FLOOR PLAN
Revised plan
Not archived · Council Link
CAR PARK - SECTIONS
Plan
Not archived · Council Link
CAR PARK CORE 2 - SECTIONS
Plan
Not archived · Council Link
CDG
Consultee Comment
Not archived · Council Link
CDG
Comment Received
Not archived · Council Link
CIL - FORM 1 QUESTION FORM/ADDITIONAL INFORMATION
CIL Documents
Not archived · Council Link
COAL MINING RISK ASSESSMENT - (BRISTOL COAL MINING ARCHIVES)
Supporting document
Not archived · Council Link
COVER LETTER
Supporting document
Not archived · Council Link
COVERING LETTER DATED 10TH DECEMBER 2025
Revised document
Not archived · Council Link
D3 - BASEMENT LEVEL - 01 GA
Plan
Not archived · Council Link
D3 - BAY STUDY 01 - AVON STREET - PLINTH
Plan
Not archived · Council Link
D3 - BAY STUDY 02 - AVON STREET - EOJ
Plan
Not archived · Council Link
D3 - BAY STUDY 03 - AVON STREET - TYPICAL 3 ST BAY 01
Plan
Not archived · Council Link
D3 - BAY STUDY 04 - AVON STREET - TYPICAL 3ST BAY 02
Plan
Not archived · Council Link
D3 - BAY STUDY 05 - AVON STREET - CROWN
Plan
Not archived · Council Link
D3 - EXTERNAL ELEVATION 01 - TEMPLE WAY - PARKSIDE
Plan
Not archived · Council Link
D3 - EXTERNAL ELEVATION 02 - DISTILLERY
Plan
Not archived · Council Link
D3 - EXTERNAL ELEVATION 03 - AVON STREET
Plan
Not archived · Council Link
D3 - EXTERNAL ELEVATION 04 - TEMPLE WAY
Plan
Not archived · Council Link
D3 - LEVEL 00 - GA - UPPER GROUND
Plan
Not archived · Council Link
D3 - LEVEL 00 GA - LOWER GROUND
Plan
Not archived · Council Link
D3 - LEVEL 01 GA
Plan
Not archived · Council Link
D3 - LEVEL 02 - GA
Plan
Not archived · Council Link
D3 - LEVEL 03 - GA
Plan
Not archived · Council Link
D3 - LEVEL 04 - GA
Plan
Not archived · Council Link
D3 - LEVEL 05 - GA
Plan
Not archived · Council Link
D3 - LEVEL 06 - GA
Plan
Not archived · Council Link
D3 - LEVEL 07 GA
Plan
Not archived · Council Link
D3 - LEVEL 08 - GA
Plan
Not archived · Council Link
D3 - LEVEL 09 - GA
Plan
Not archived · Council Link
D3 - LEVEL 10 - GA
Plan
Not archived · Council Link
D3 - LEVEL 11 - GA
Plan
Not archived · Council Link
D3 - LEVEL 12 GA
Plan
Not archived · Council Link
D3 - LEVEL 13 GA
Plan
Not archived · Council Link
D3 - LEVEL 14 - GA
Plan
Not archived · Council Link
D3 - ROOF LEVEL GA
Plan
Not archived · Council Link
D3 - STREET ELEVATION 01 - AVON STREET
Plan
Not archived · Council Link
D3 - STREET ELEVATION 02 - TEMPLE WAY
Plan
Not archived · Council Link
D3 - WHOLE BUILDING SECTION A
Plan
Not archived · Council Link
D3 - WHOLE BUILDING SECTION B
Plan
Not archived · Council Link
D4 - EAST ELEVATION
Plan
Not archived · Council Link
D4 - LEVEL 00, 01, 02 & 03 GA
Plan
Not archived · Council Link
D4 - LEVEL 04 & 05 GA
Plan
Not archived · Council Link
D4 - NORTH & SOUTH ELEVATIONS
Plan
Not archived · Council Link
D4 - WEST ELEVATION
Plan
Not archived · Council Link
D4 - WHOLE BUILDING SECTION A
Plan
Not archived · Council Link
D4 - WHOLE BUILDING SECTION B
Plan
Not archived · Council Link
DAS - CHAPTER 1 & 2
Design & Access Statement
Not archived · Council Link
DAS - CHAPTER 3
Design & Access Statement
Not archived · Council Link
DAS - CHAPTER 4 PART 1
Design & Access Statement
Not archived · Council Link
DAS - CHAPTER 4 PART 2
Design & Access Statement
Not archived · Council Link
DAS - CHAPTER 5, 6 & 7
Design & Access Statement
Not archived · Council Link
DAS - CHAPTER 8 PART 1
Design & Access Statement
Not archived · Council Link
DAS - CHAPTER 8 PART 2
Design & Access Statement
Not archived · Council Link
DAS - THE APPENDICES PART 1
Design & Access Statement
Not archived · Council Link
DAS - THE APPENDICES PART 2
Design & Access Statement
Not archived · Council Link
DAS - THE APPENDICES PART 3
Design & Access Statement
Not archived · Council Link
DAYLIGHT AND SUNLIGHT (APPENDICES) - ADDITIONAL INFO (PART 1 OF 4)
Supporting document
Not archived · Council Link
DAYLIGHT AND SUNLIGHT - (APPENDICES) - ADDITIONAL INFO (PART 3 OF 4)
Supporting document
Not archived · Council Link
DAYLIGHT AND SUNLIGHT - (APPENDICES) - ADDITIONAL INFO (PART 4 OF 4)
Supporting document
Not archived · Council Link
DAYLIGHT AND SUNLIGHT - APPENDICES) - ADDITIONAL INFO (PART 2 OF 4)
Supporting document
Not archived · Council Link
DAYLIGHT AND SUNLIGHT REPORT
Supporting document
Not archived · Council Link
DESIGN AND ACCESS STATEMENT 1
Revised document
Not archived · Council Link
DESIGN AND ACCESS STATEMENT 2
Revised document
Not archived · Council Link
DESIGN AND ACCESS STATEMENT 3
Revised document
Not archived · Council Link
DESIGN AND ACCESS STATEMENT 4
Revised document
Not archived · Council Link
DESIGN AND ACCESS STATEMENT 5
Revised document
Not archived · Council Link
DESIGN AND ACCESS STATEMENT 6
Revised document
Not archived · Council Link
DRAINAGE STRATEGY
Supporting document
Not archived · Council Link
EAST ELEVATION
Revised plan
Not archived · Council Link
ECOLOGICAL IMPACT ASSESSMENT
Supporting document
Not archived · Council Link
ECOLOGICAL IMPACT ASSESSMENT - PART 1 OF 2
Supporting document
Not archived · Council Link
ECOLOGICAL IMPACT ASSESSMENT - PART 2 OF 2
Supporting document
Not archived · Council Link
ENERGY AND SUSTAINABILITY STATEMENT
Supporting document
Not archived · Council Link
ENERGY AND SUSTAINABILITY STATEMENT - 3RD NOVEMBER 2025
Revised document
Not archived · Council Link
ENVIRONMENT AGENCY
Comment Received
Not archived · Council Link
ENVIRONMENT AGENCY
Comment Received
Not archived · Council Link
Plan
Archived · Council Link
EXTERNAL ELEVATION 03 - AVON STREET
Revised plan
Not archived · Council Link
EXTERNAL LIGHTING PLANNING REPORT
Revised document
Not archived · Council Link
EXTERNAL LIGHTING PLANNING REPORT (PART 1 OF 2)
Supporting document
Not archived · Council Link
EXTERNAL LIGHTING PLANNING REPORT (PART 2 OF 2)
Supporting document
Not archived · Council Link
FLOOD RISK ASSESSMENT - 18 NOVEMBER 2025
Revised document
Not archived · Council Link
FLOOD RISK ASSESSMENT 0057577-BHE-XX-XX-RP-CW- 0001
Supporting document
Not archived · Council Link
GENERAL ARRANGEMENT
Revised plan
Not archived · Council Link
GENERAL ARRANGEMENT - LOWER GROUND
Revised plan
Not archived · Council Link
GENERATOR BUILDING - EXISTING ELEVATIONS
Plan
Not archived · Council Link
GENERATOR BUILDING - PROPOSED ELEVATIONS
Plan
Not archived · Council Link
GEO ENVIRONMENTAL INTERPRETATIVE REPORT
Revised document
Not archived · Council Link
GEOENVIRONMENTAL INTERPRETATIVE REPORT 0057577-BHE-XX-XX-RP-YG-0003
Supporting document
Not archived · Council Link
HEALTH IMPACT ASSESSMENT
Supporting document
Not archived · Council Link
HERITAGE ASSESSMENT ISSUE 3
Supporting document
Not archived · Council Link
HERITAGE ASSESSMENT VOLUME 2 ILLUSTRATIONS ISSUE 2
Supporting document
Not archived · Council Link
HERITAGE TECHNICAL NOTE
Revised document
Not archived · Council Link
HISTORIC ENGLAND
Comment Received
Not archived · Council Link
HISTORIC ENGLAND
Consultee Comment
Not archived · Council Link
HISTORIC ENGLAND
Comment Received
Not archived · Council Link
LANDSCAPE
Comment Received
Not archived · Council Link
LANDSCAPE + PUBLIC REALM DESIGN STATEMENT_PART1
Revised document
Not archived · Council Link
LANDSCAPE + PUBLIC REALM DESIGN STATEMENT_PART2
Revised document
Not archived · Council Link
LANDSCAPE + PUBLIC REALM DESIGN STATEMENT_PART3
Revised document
Not archived · Council Link
LANDSCAPE + PUBLIC REALM DESIGN STATEMENT_PART4
Revised document
Not archived · Council Link
LANDSCAPE GENERAL ARRANGEMENT PLAN - LEVEL 00
Revised plan
Not archived · Council Link
LANDSCAPE PUBLIC REALM DESIGN STATEMENT - PART 1
Supporting document
Not archived · Council Link
LANDSCAPE PUBLIC REALM DESIGN STATEMENT - PART 2
Supporting document
Not archived · Council Link
LANDSCAPE PUBLIC REALM DESIGN STATEMENT - PART 3
Supporting document
Not archived · Council Link
LANDSCAPE PUBLIC REALM DESIGN STATEMENT - PART 4
Supporting document
Not archived · Council Link
LEVEL 00 01 02 03 GENERAL ARRANGEMENT
Revised plan
Not archived · Council Link
LEVEL 04 05 GENERAL ARRANGEMENT
Revised plan
Not archived · Council Link
MISS ABI SELMAN
Consultee Comment
Not archived · Council Link
MR LIAM POWELL
Consultee Comment
Not archived · Council Link
MR MARK CURTIS - POLLUTION CONTROL
Consultee Comment
Not archived · Council Link
MR MARK CURTIS - POLLUTION CONTROL
Consultee Comment
Not archived · Council Link
MR NICK FINNEY
Consultee Comment
Not archived · Council Link
MR NICK FINNEY
Consultee Comment
Not archived · Council Link
MRS GEORGINA BOLTON
Consultee Comment
Not archived · Council Link
NEIGHBOUR NOTIFICATION LIST ISSUED 05/06/2025
Neighbour Notification List
Not archived · Council Link
NEUTRAL
Public Comment
Not archived · Council Link
NEUTRAL
Public Comment
Not archived · Council Link
NEUTRAL
Public Comment
Not archived · Council Link
NOISE IMPACT ASSESSMENT
Supporting document
Not archived · Council Link
NORTH SOUTH ELEVATION
Revised plan
Not archived · Council Link
OBJECTS
Public Comment
Not archived · Council Link
OLD MARKET COMMUNITY ASSOCIATION
Comment Received
Not archived · Council Link
OVERALL LANDSCAPE MASTERPLAN
Revised plan
Not archived · Council Link
PLANNING STATEMENT
Supporting document
Not archived · Council Link
PLOT 4 COAL MINING ASSESSMENT REPORT
Supporting document
Not archived · Council Link
PROPOSED CYCLE CONNECTION BETWEEN PROPOSED TEMPLE WAY AND AVON STREET CYCL
Revised plan
Not archived · Council Link
Plan
Archived · Council Link
Revised plan
Archived · Council Link
REVISED DRAINAGE STRATEGY P01
Revised document
Not archived · Council Link
Plan
Archived · Council Link
STATEMENT OF COMMUNITY INVOLVEMENT
Supporting document
Not archived · Council Link
SUPPORTS
Public Comment
Not archived · Council Link
SUPPORTS
Public Comment
Not archived · Council Link
SUPPORTS
Public Comment
Not archived · Council Link
SUPPORTS
Public Comment
Not archived · Council Link
SUPPORTS
Public Comment
Not archived · Council Link
THE BRISTOL WASTE COMPANY
Consultee Comment
Not archived · Council Link
THE BRISTOL WASTE COMPANY
Consultee Comment
Not archived · Council Link
THE CITY DESIGN GROUP - CONSERVATION SECTION
Consultee Comment
Not archived · Council Link
THE CITY DESIGN GROUP - CONSERVATION SECTION
Consultee Comment
Not archived · Council Link
THE COAL AUTHORITY
Comment Received
Not archived · Council Link
THE COAL AUTHORITY
Comment Received
Not archived · Council Link
THE PUBLIC PROTECTION TEAM (LAND CONTAMINATION)
Consultee Comment
Not archived · Council Link
THE PUBLIC PROTECTION TEAM (LAND CONTAMINATION)
Consultee Comment
Not archived · Council Link
TPOWNSCAPE AND VISUAL IMPACT ASSESSMENT - REDUCED SIZE
Supporting document
Not archived · Council Link
TRANSPORT ASSESSMENT ADDENDUM
Revised document
Not archived · Council Link
TRANSPORT ASSESSMENT V4.0_PART 1 OF 3
Supporting document
Not archived · Council Link
TRANSPORT ASSESSMENT V4.0_PART 2 OF 3
Supporting document
Not archived · Council Link
TRANSPORT ASSESSMENT V4.0_PART 3 OF 3
Supporting document
Not archived · Council Link
TRAVEL PLAN V4.0_PART 1 OF 2
Supporting document
Not archived · Council Link
TRAVEL PLAN V4.0_PART 2 OF 2
Supporting document
Not archived · Council Link
TRAVEL PLAN V5.0 PART 1 OF 2
Revised document
Not archived · Council Link
TRAVEL PLAN V5.0 PART 2 OF 2
Revised document
Not archived · Council Link
UTILITY STATEMENT AND BROADBAND CONNECTIVITY ASSESSMENT
Supporting document
Not archived · Council Link
UTILITY STATEMENT AND BROADBAND CONNECTIVITY ASSESSMENT - 3RD NOVEMBER 202
Revised document
Not archived · Council Link
VISUALLY VERIFIED MONTAGES - PART 1 OF 4
Supporting document
Not archived · Council Link
VISUALLY VERIFIED MONTAGES - PART 2 OF 4
Supporting document
Not archived · Council Link
VISUALLY VERIFIED MONTAGES - PART 3 OF 4
Supporting document
Not archived · Council Link
VISUALLY VERIFIED MONTAGES - PART 4 OF 4
Supporting document
Not archived · Council Link
WEST ELEVATION
Revised plan
Not archived · Council Link
WHOLE BUILDING SECTION A
Revised plan
Not archived · Council Link
WHOLE BUILDING SECTION B
Revised plan
Not archived · Council Link
WIND ENGINEERING PLANNING REPORT
Supporting document
Not archived · Council Link

Take Action

Make your voice heard. Authorities need to hear from people who support new homes.

✉️ Write Email in Support View on Council Portal