← Back to Bristol City Council

Status

Pending consideration New housing
Received
25 Apr 2025
New dwellings
41

Summary

Outline redevelopment to provide up to 41 apartment dwellings with drainage and landscaping.

Full Proposal

Outline application with access, layout and scale to be considered, for demolition of existing buildings and redevelopment of site to provide up to 41no. dwellings (apartments) units with associated drainage and hard/soft landscape works.

Documents

ADDENDUM TO ARBORICULTURAL REPORT
Supporting document
Not archived · Council Link
AFFORDABLE HOUSING STATEMENT
Supporting document
Not archived · Council Link
APPLICATION FORM
Application Form
Not archived · Council Link
AVON FIRE AND RESCUE
Comment Received
Not archived · Council Link
AVON FIRE AND RESCUE
Comment Received
Not archived · Council Link
BIODIVERSITY METRIC ASSESSMENTS
Supporting document
Not archived · Council Link
BIODIVERSITY METRIC TOOL
Supporting document
Not archived · Council Link
BRISTOL CIVIC SOCIETY - OBJECTS
Public Comment
Not archived · Council Link
BRISTOL WASTE COMPANY
Comment Received
Not archived · Council Link
BROADBAND CONNECTIVITY STATEMENT
Supporting document
Not archived · Council Link
BUILDING BRISTOL EMPLOYMENT AND SKILLS BRISTOL CITY COUNCIL
Consultee Comment
Not archived · Council Link
CIL FORM
CIL Documents
Not archived · Council Link
CONTAMINATED LAND
Consultee Comment
Not archived · Council Link
COUNCILLOR DAVID WILCOX
Councillor Comment
Not archived · Council Link
CRIME REDUCTION UNIT
Comment Received
Not archived · Council Link
CRIME REDUCTION UNIT
Comment Received
Not archived · Council Link
DESIGN AND ACCESS STATEMENT
Design & Access Statement
Not archived · Council Link
EMPLOYMENT AND SKILLS PLAN
Supporting document
Not archived · Council Link
ENERGY AND SUSTAINABILITY REPORT
Superseded document
Not archived · Council Link
ENVIRONMENT AGENCY
Comment Received
Not archived · Council Link
ENVIRONMENT AGENCY
Comment Received
Not archived · Council Link
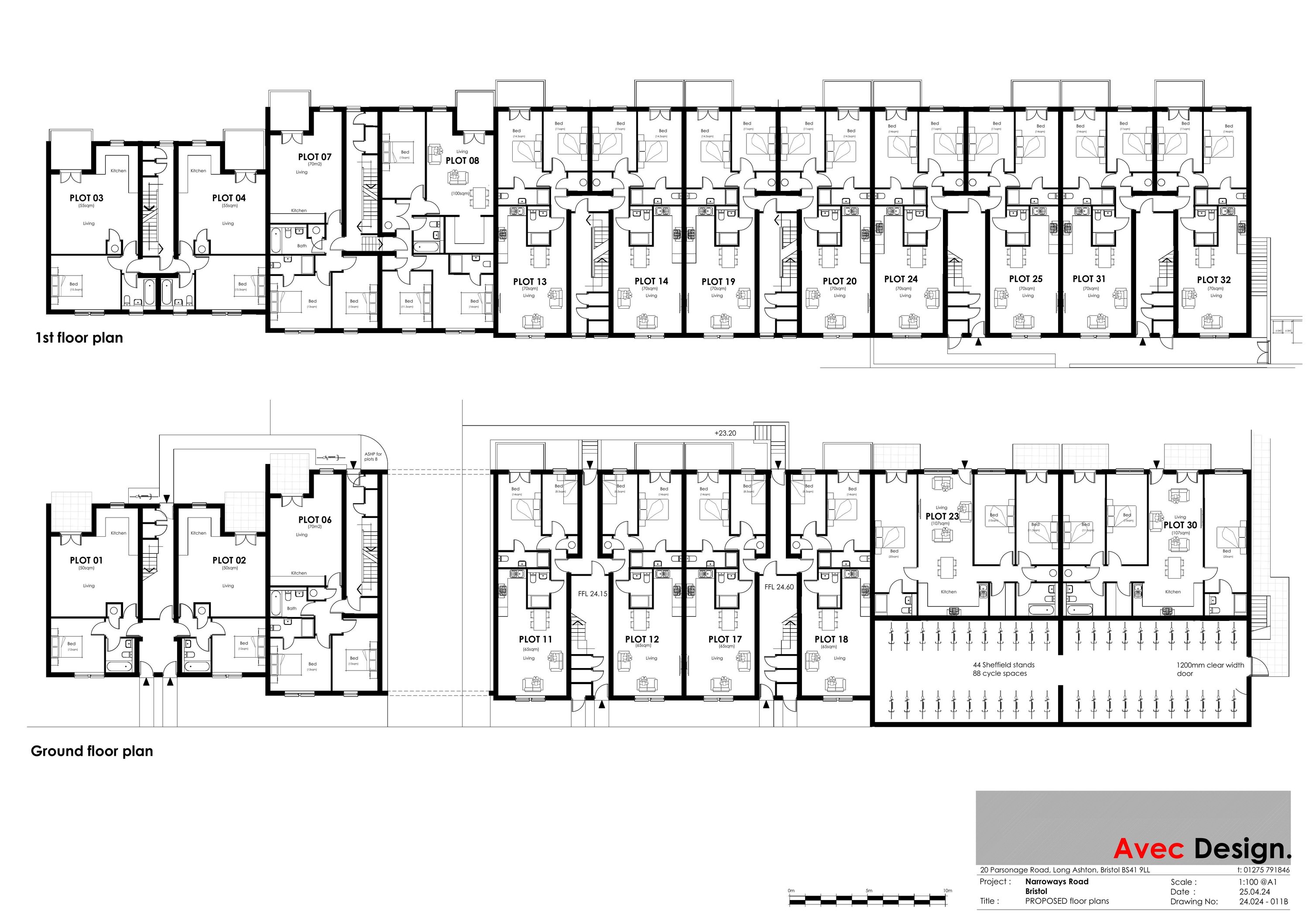
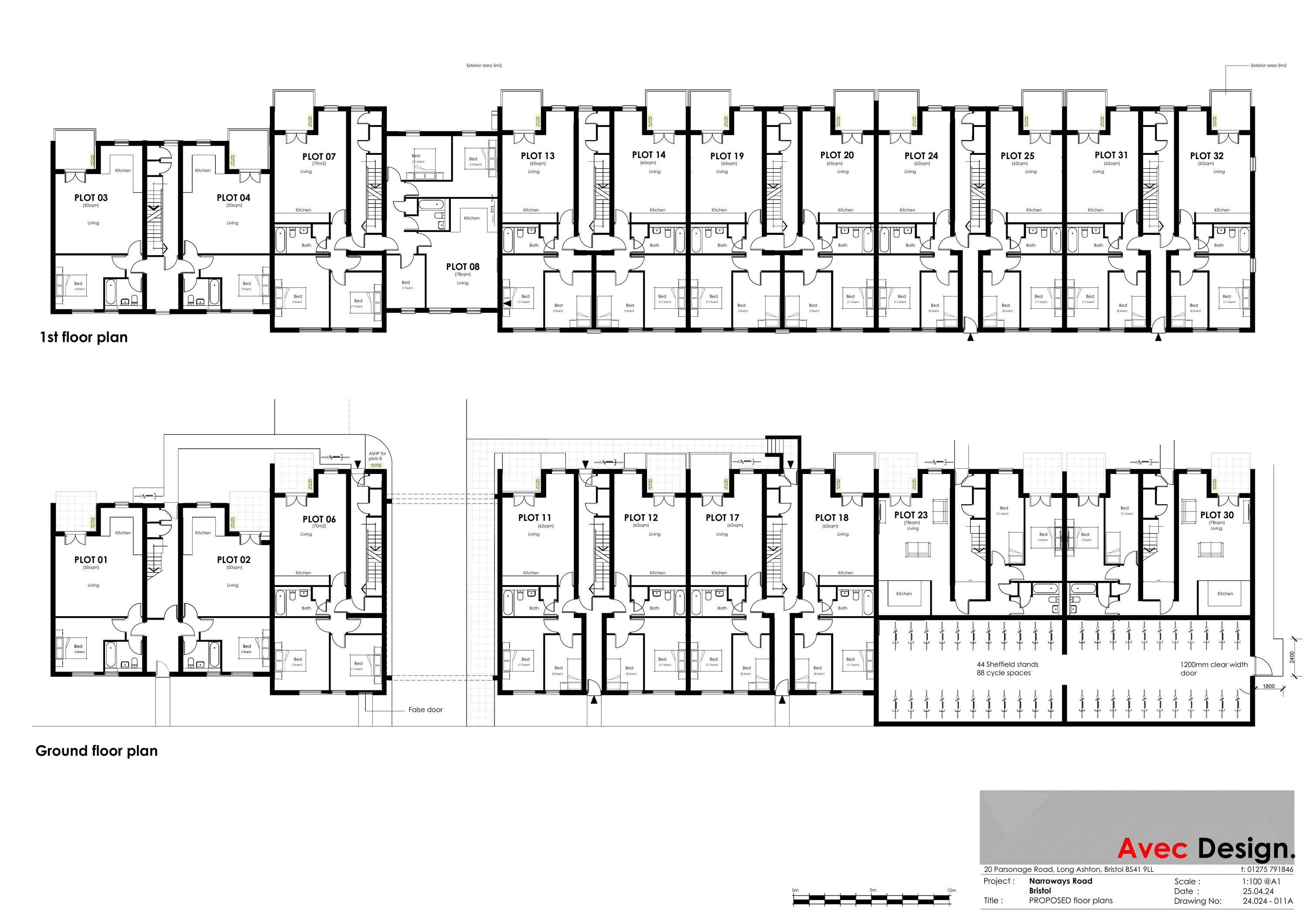
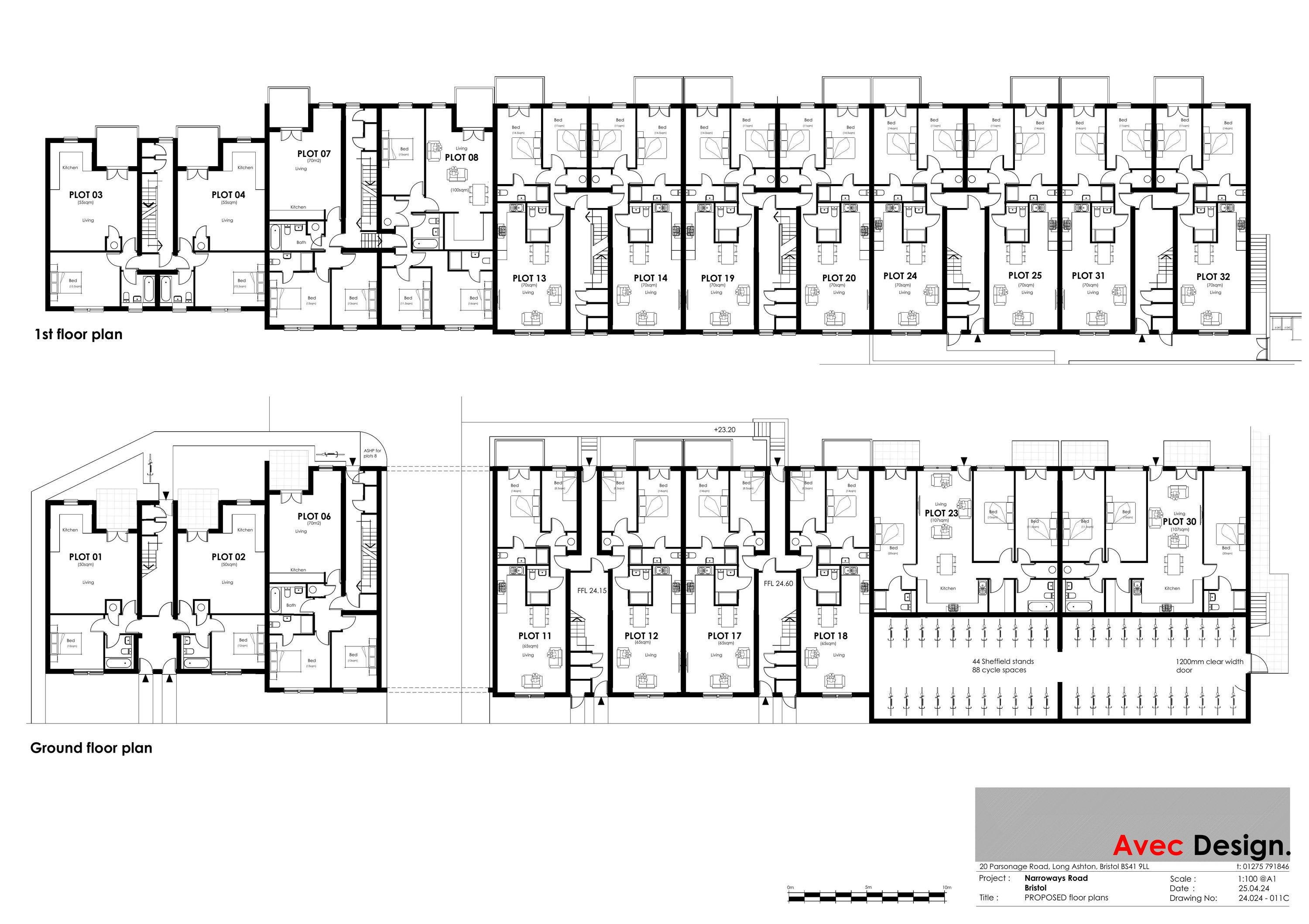
EXISTING BLOCK PLAN
Plan
Not archived · Council Link
EXISTING FLOOR PLAN
Plan
Not archived · Council Link
Plan
Archived · Council Link
EXISTING SITE SECTIONS
Plan
Not archived · Council Link
FINANCIAL VIABILITY ASSESSMENT
Supporting document
Not archived · Council Link
HEALTH AND SAFETY EXECUTIVE
Comment Received
Not archived · Council Link
LOCATION PLAN
Plan
Not archived · Council Link
MR MARK CURTIS - POLLUTION CONTROL
Consultee Comment
Not archived · Council Link
MR THOMAS MEYRICK
Consultee Comment
Not archived · Council Link
MRS JOANNE GOODHIND
Consultee Comment
Not archived · Council Link
MRS JOANNE GOODHIND
Consultee Comment
Not archived · Council Link
MRS JOANNE GOODHIND
Consultee Comment
Not archived · Council Link
NEIGHBOURS ISSUED 23RD JUNE 2025
Neighbour Notification List
Not archived · Council Link
OBJECTS
Public Comment
Not archived · Council Link
OBJECTS
Public Comment
Not archived · Council Link
OBJECTS
Public Comment
Not archived · Council Link
OBJECTS
Public Comment
Not archived · Council Link
OBJECTS
Public Comment
Not archived · Council Link
OBJECTS
Public Comment
Not archived · Council Link
OBJECTS
Public Comment
Not archived · Council Link
OBJECTS
Public Comment
Not archived · Council Link
OBJECTS
Public Comment
Not archived · Council Link
OBJECTS
Public Comment
Not archived · Council Link
OBJECTS
Public Comment
Not archived · Council Link
OBJECTS
Public Comment
Not archived · Council Link
OBJECTS
Public Comment
Not archived · Council Link
OBJECTS
Public Comment
Not archived · Council Link
OBJECTS
Public Comment
Not archived · Council Link
OBJECTS
Public Comment
Not archived · Council Link
OBJECTS
Public Comment
Not archived · Council Link
OBJECTS
Public Comment
Not archived · Council Link
OBJECTS
Public Comment
Not archived · Council Link
OBJECTS
Public Comment
Not archived · Council Link
OBJECTS
Public Comment
Not archived · Council Link
OBJECTS
Public Comment
Not archived · Council Link
OBJECTS
Public Comment
Not archived · Council Link
OBJECTS
Public Comment
Not archived · Council Link
OBJECTS
Public Comment
Not archived · Council Link
OBJECTS
Public Comment
Not archived · Council Link
OBJECTS
Public Comment
Not archived · Council Link
OBJECTS
Public Comment
Not archived · Council Link
OBJECTS
Public Comment
Not archived · Council Link
OBJECTS
Public Comment
Not archived · Council Link
OBJECTS
Public Comment
Not archived · Council Link
OBJECTS
Public Comment
Not archived · Council Link
OBJECTS
Public Comment
Not archived · Council Link
OBJECTS
Public Comment
Not archived · Council Link
OBJECTS
Public Comment
Not archived · Council Link
OBJECTS
Public Comment
Not archived · Council Link
OBJECTS
Public Comment
Not archived · Council Link
OBJECTS
Public Comment
Not archived · Council Link
OBJECTS
Public Comment
Not archived · Council Link
OBJECTS
Public Comment
Not archived · Council Link
OBJECTS
Public Comment
Not archived · Council Link
OBJECTS
Public Comment
Not archived · Council Link
PLANNING STATEMENT
Supporting document
Not archived · Council Link
PRELIMINARY ECOLOGICAL APPRAISAL AND BIODIVERSITY NET GAIN
Supporting document
Not archived · Council Link
PROPOSED DRAINAGE STRATEGY
Supporting document
Not archived · Council Link
PROPOSED DRAINAGE STRATEGY
Plan
Not archived · Council Link
Superseded Plan
Archived · Council Link
Superseded Plan
Archived · Council Link
Superseded Plan
Archived · Council Link
PROPOSED IMAGE 1
Supporting document
Not archived · Council Link
PROPOSED IMAGE 2
Supporting document
Not archived · Council Link
PROPOSED IMAGE 3
Supporting document
Not archived · Council Link
PROPOSED MATERIALS
Superseded Plan
Not archived · Council Link
PROPOSED ROOF PLAN
Superseded Plan
Not archived · Council Link
Superseded Plan
Archived · Council Link
PROPOSED SITE SECTIONS
Plan
Not archived · Council Link
PROPOSED SITE SECTIONS
Superseded Plan
Not archived · Council Link
PROPOSED SITE SECTIONS
Plan
Not archived · Council Link
PROPOSED SITE SECTIONS
Superseded Plan
Not archived · Council Link
PROPOSED SITE SECTIONS
Plan
Not archived · Council Link
PROPOSED SITE SECTIONS
Superseded Plan
Not archived · Council Link
Public Comment
Public Comment
Not archived · Council Link
REVISED: ENERGY AND SUSTAINABILITY REPORT
Revised document
Not archived · Council Link
Superseded Plan
Archived · Council Link
Revised plan
Archived · Council Link
Superseded Plan
Archived · Council Link
Revised plan
Archived · Council Link
Superseded Plan
Archived · Council Link
REVISED: PROPOSED MATERIALS
Revised plan
Not archived · Council Link
REVISED: PROPOSED ROOF PLAN
Revised plan
Not archived · Council Link
REVISED: PROPOSED SITE SECTIONS
Revised plan
Not archived · Council Link
REVISED: PROPOSED SITE SECTIONS
Revised plan
Not archived · Council Link
ROAD TRANSPORT STATEMENT
Supporting document
Not archived · Council Link
SUPPORTS
Public Comment
Not archived · Council Link
THE BRISTOL WASTE COMPANY
Consultee Comment
Not archived · Council Link
TRAVEL PLAN STATEMENT
Supporting document
Not archived · Council Link
UPDATED TRANSPORT STATEMENT - TECHNICAL NOTE
Revised document
Not archived · Council Link

Take Action

Make your voice heard. Authorities need to hear from people who support new homes.

✉️ Write Email in Support View on Council Portal