← Back to Bristol City Council

Status

Pending consideration Commercial
Received
14 Jul 2025
New dwellings
0

Summary

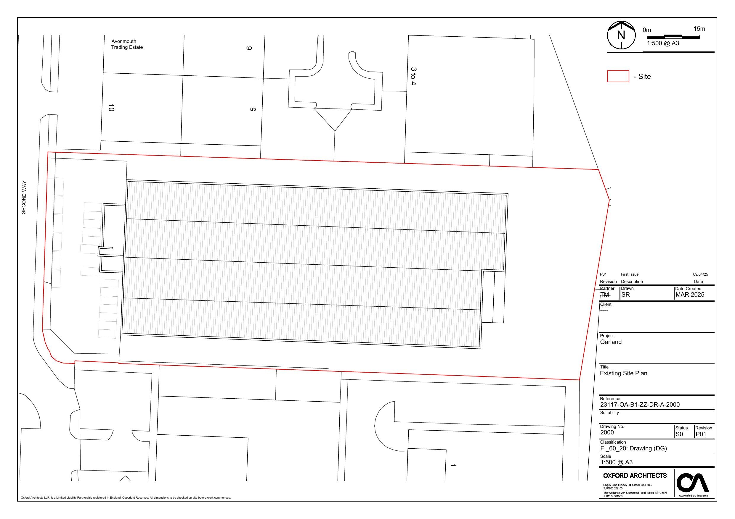
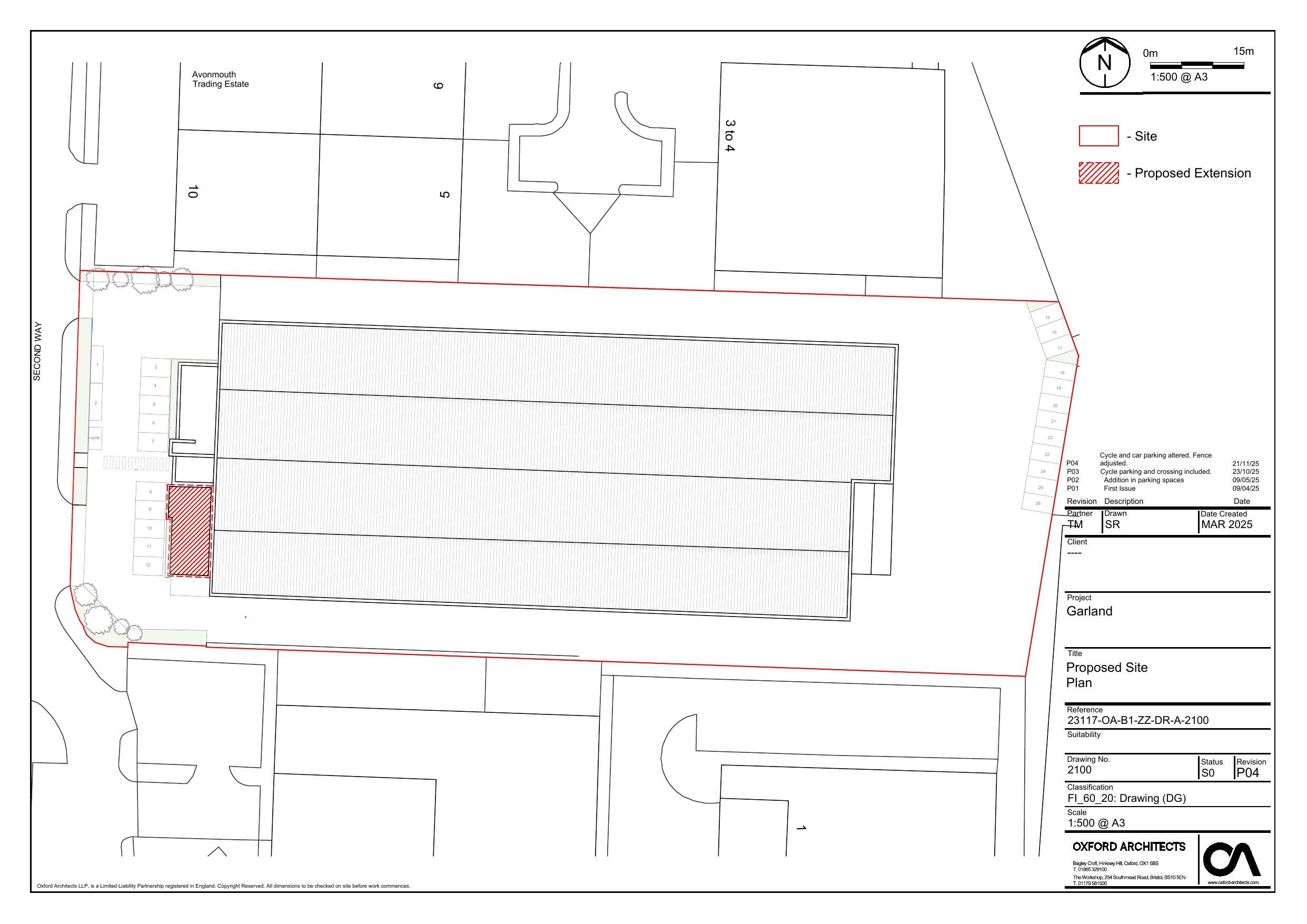
Office extension to existing office building serving Garland warehouse.

Full Proposal

Proposed office extension to an existing office building serving Garland warehouse.

Documents

AIR QUALITY ASSESSMENT
Supporting document
Not archived · Council Link
APPLICATION FORM
Application Form
Not archived · Council Link
ARBORICULTURAL IMPACT ASSESSMENT
Supporting document
Not archived · Council Link
ARBORICULTURAL OFFICER
Consultee Comment
Not archived · Council Link
BNG EXEMPTION STATEMENT
Supporting document
Not archived · Council Link
CIL - FORM 1 QUESTION FORM/ADDITIONAL INFORMATION
CIL Documents
Not archived · Council Link
DESIGN AND ACCESS STATEMENT
Design & Access Statement
Not archived · Council Link
ECOLOGICAL IMPACT ASSESSMENT
Supporting document
Not archived · Council Link
EXISTING AND PROPOSED ELEVATIONS
Plan
Not archived · Council Link
EXISTING GROUND FLOOR PLAN
Superseded Plan
Not archived · Council Link
EXISTING SECTIONS
Plan
Not archived · Council Link
Plan
Archived · Council Link
Extension of time
Extension of time
Not archived · Council Link
EXTENSION OF TIME CONFIRMATION LETTER
Extension of time
Not archived · Council Link
FLOOD RISK ASSESSMENT AND DRAINAGE STRATEGY
Supporting document
Not archived · Council Link
FLOOD RISK MANAGER
Consultee Comment
Not archived · Council Link
LAND CONTAMINATION REPORT
Supporting document
Not archived · Council Link
MR ANDREW EDWARDS
Consultee Comment
Not archived · Council Link
MR MARK CURTIS - POLLUTION CONTROL
Consultee Comment
Not archived · Council Link
NATURE CONSERVATION
Consultee Comment
Not archived · Council Link
NEIGHBOUR NOTIFICATION LIST ISSUED 15/08/2025
Neighbour Notification List
Not archived · Council Link
PROPOSED PERSPECTIVE VIEWS
Plan
Not archived · Council Link
PROPOSED SECTIONS
Plan
Not archived · Council Link
PROPOSED SUDS SECTION
Plan
Not archived · Council Link
REVISED EXISTING GROUND FLOOR PLAN
Revised plan
Not archived · Council Link
REVISED FLOOD RISK ASSESSMENT AND DRAINAGE STRATEGY
Revised document
Not archived · Council Link
REVISED PROPOSED FIRST FLOOR PLAN
Revised plan
Not archived · Council Link
REVISED PROPOSED GROUND FLOOR PLAN
Revised plan
Not archived · Council Link
Revised plan
Archived · Council Link
Plan
Archived · Council Link
THE PUBLIC PROTECTION TEAM (LAND CONTAMINATION)
Consultee Comment
Not archived · Council Link
TRANSPORT STATEMENT
Supporting document
Not archived · Council Link
WESSEX WATER CONNECTIONS MAP
Supporting document
Not archived · Council Link
WESSEX WATER RESPONSE
Supporting document
Not archived · Council Link

Take Action

Make your voice heard. Authorities need to hear from people who support new homes.

✉️ Write Email in Support View on Council Portal