← Back to Bristol City Council

Status

Pending consideration New housing
Received
18 Aug 2025
New dwellings
3

Full Proposal

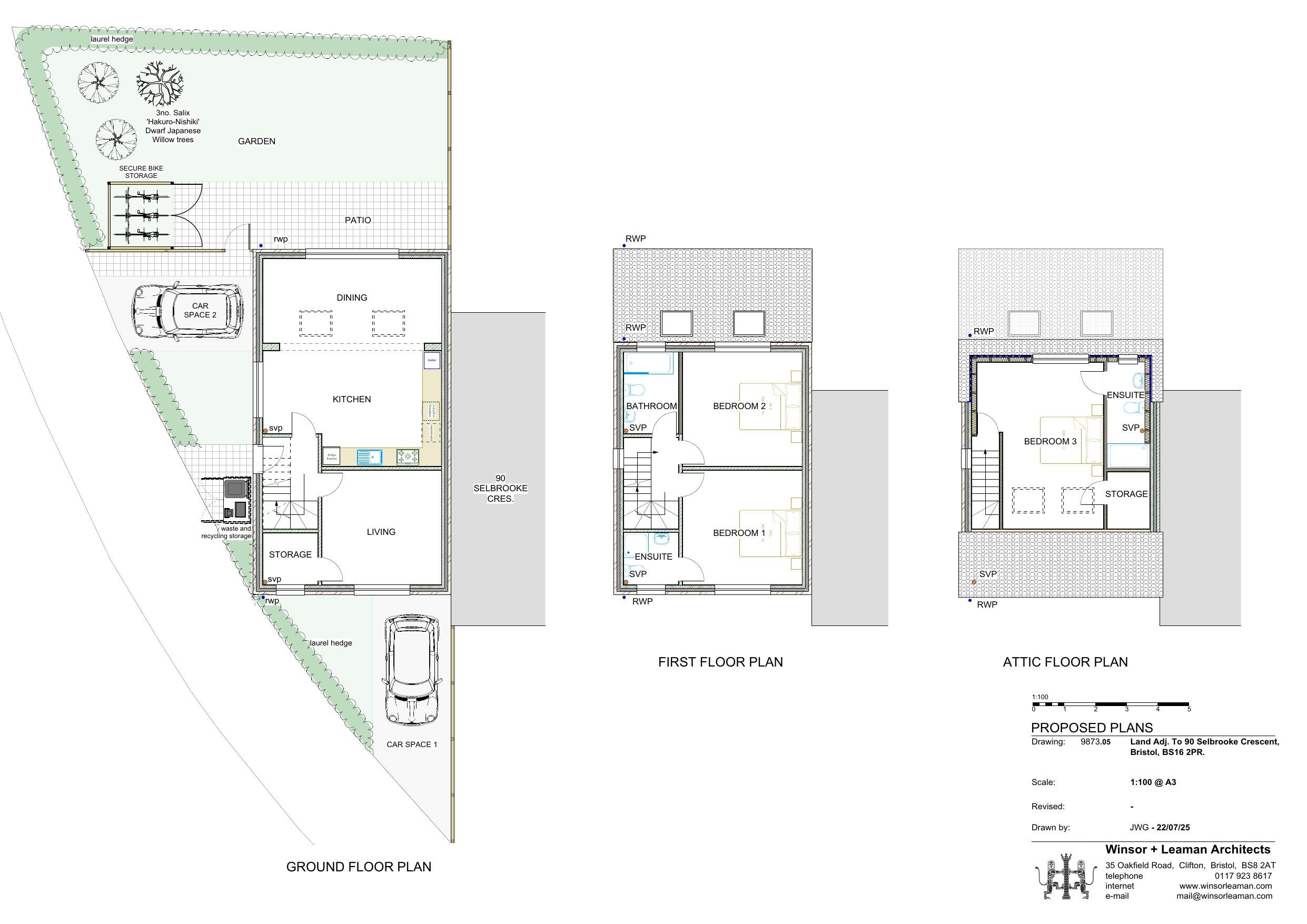
Creation of a three bedroom house with a garden and two parking spaces.

Documents

APPLICATION FORM
Application Form
Not archived · Council Link
BIODIVERSITY GAIN PLAN
Supporting document
Not archived · Council Link
CIL - FORM 1 QUESTION FORM/ADDITIONAL INFORMATION
CIL Documents
Not archived · Council Link
DESIGN AND ACCESS STATEMENT
Design & Access Statement
Not archived · Council Link
ENERGY STRATEGY
Supporting document
Not archived · Council Link
HEADLINE RESULTS
Supporting document
Not archived · Council Link
LOCATION PLAN
Plan
Not archived · Council Link
NATURE CONSERVATION
Consultee Comment
Not archived · Council Link
NEIGHBOUR NOTIFICATION LIST ISSUED 06/11/2025
Neighbour Notification List
Not archived · Council Link
PRE-DEVELOPMENT PLAN BASELINE MAP
Supporting document
Not archived · Council Link
PROPOSED ELEVATIONS
Superseded Plan
Not archived · Council Link
PROPOSED ELEVATIONS
Revised plan
Not archived · Council Link
Revised plan
Archived · Council Link
Superseded Plan
Archived · Council Link
SAP CALCULATION
Supporting document
Not archived · Council Link
SAP CALCULATION
Supporting document
Not archived · Council Link
SAP CALCULATION
Supporting document
Not archived · Council Link
SAP CALCULATION
Supporting document
Not archived · Council Link
SAP CALCULATION
Supporting document
Not archived · Council Link
SAP CALCULATION ASHP & PV
Supporting document
Not archived · Council Link
Plan
Archived · Council Link
STATUTORY METRIC
Supporting document
Not archived · Council Link
SUSTAINABILITY STATEMENT
Supporting document
Not archived · Council Link

Take Action

Make your voice heard. Authorities need to hear from people who support new homes.

✉️ Write Email in Support View on Council Portal