← Back to Bristol City Council

Status

Pending consideration New housing
Received
02 Sep 2025
New dwellings
3

Summary

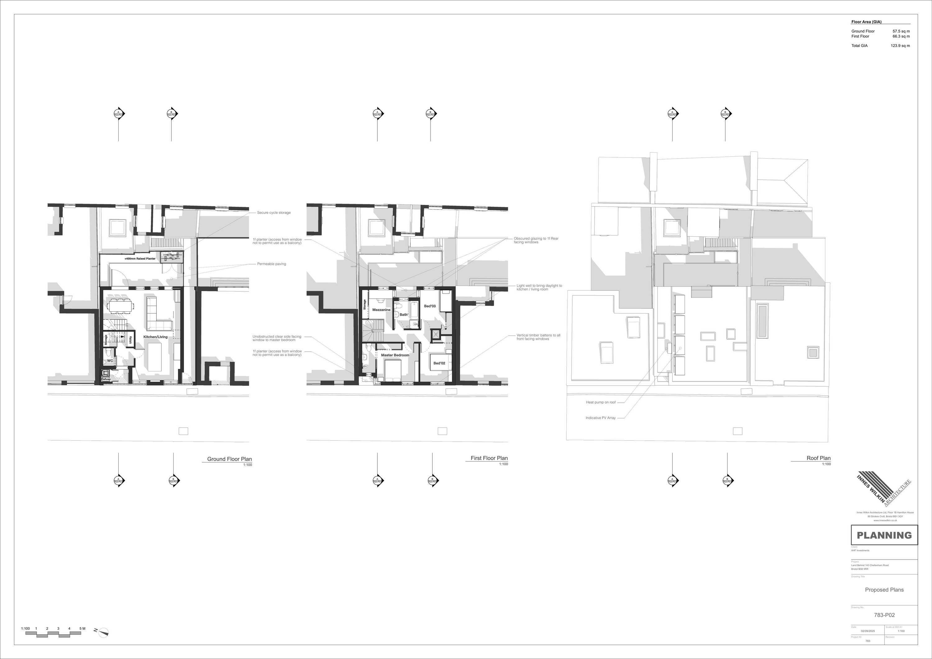
Demolish garages and construct a two-storey three-bedroom dwelling accessed from Sydenham Lane.

Full Proposal

Demolition of existing garages and construction of a two-storey three bedroom dwelling house accessed from Sydenham Lane.

Documents

APPLICATION FORM
Application Form
Not archived · Council Link
BIO DIVERSITY NET GAIN REPORT
Supporting document
Not archived · Council Link
BLOCK PLAN AND STREET SCENE
Plan
Not archived · Council Link
BNG HABITAT PLANS
Plan
Not archived · Council Link
CIL FORM
CIL Documents
Not archived · Council Link
CYCLE AND REFUSE STORE
Plan
Not archived · Council Link
DAYLIGHT IMPACT ANALAYSIS
Plan
Not archived · Council Link
DESIGN AND ACCESS STATEMENT
Design & Access Statement
Not archived · Council Link
ENERGY AND SUSTAINABILITY STATEMENT
Supporting document
Not archived · Council Link
EXISTING PLANS AND ELEVATIONS
Plan
Not archived · Council Link
HERITAGE STATEMENT
Supporting document
Not archived · Council Link
HOST BUILDING REFUSE STORE
Plan
Not archived · Council Link
ISOMETRIC
Plan
Not archived · Council Link
NEIGHBOURS ISSUED 23RD SEPTEMBER 2025
Neighbour Notification List
Not archived · Council Link
OBJECTS
Public Comment
Not archived · Council Link
OBJECTS
Public Comment
Not archived · Council Link
PROPOSED ELEVATIONS AND SECTIONS
Plan
Not archived · Council Link
Plan
Archived · Council Link
SHADOW IMPACT ANALAYSIS
Plan
Not archived · Council Link
Plan
Archived · Council Link
STREET PERSPECTIVE
Supporting document
Not archived · Council Link
THE SMALL SITES METRIC 1.2.3
Supporting document
Not archived · Council Link

Take Action

Make your voice heard. Authorities need to hear from people who support new homes.

✉️ Write Email in Support View on Council Portal