← Back to Bristol City Council

Status

Pending consideration House extension
Received
10 Sep 2025
New dwellings
0

Full Proposal

Erection of front and rear single storey extensions, hip to gable roof extensions and erection of an attached new dwelling on the side. (Self Build)

Documents

APPLICATION FORM
Application Form
Not archived · Council Link
BIODIVERSITY NET GAIN EXEMPTION STATEMENT
Supporting document
Not archived · Council Link
CIL SELF BUILD EXEMPTION FORM 7 I
CIL Documents
Not archived · Council Link
COMBINED BIN AND BIKE STORE
Plan
Not archived · Council Link
COMBINED REPORT ADDITIONAL MEASURES
Supporting document
Not archived · Council Link
COMBINED REPORT RENEWABLES
Supporting document
Not archived · Council Link
ENERGY STRATEGY
Supporting document
Not archived · Council Link
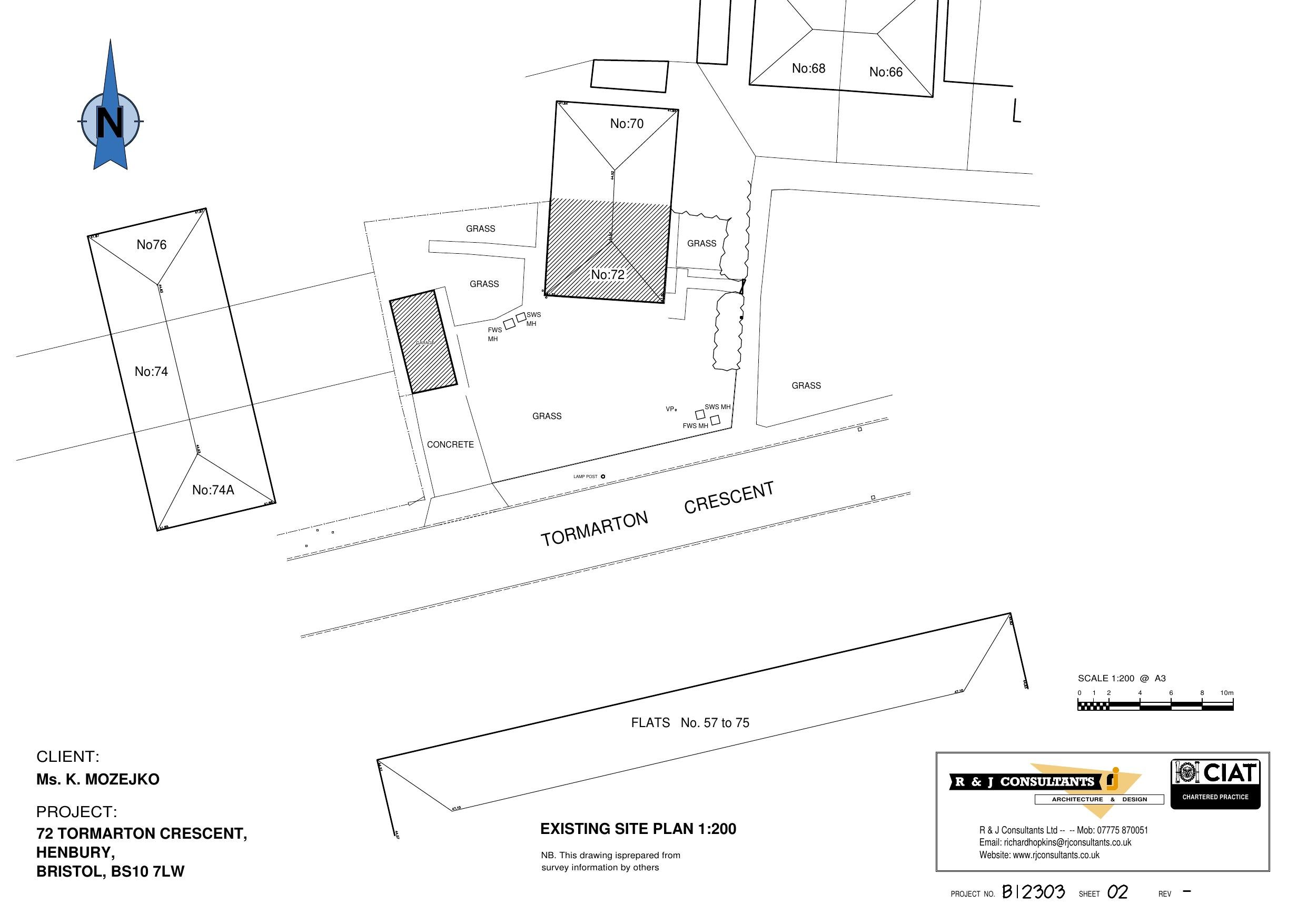
EXISTING PLANS
Plan
Not archived · Council Link
Plan
Archived · Council Link
FORM 1 CIL ADDITIONAL INFORMATION
CIL Documents
Not archived · Council Link
LOCATION PLAN
Plan
Not archived · Council Link
MR HARRY SIMPSON - TRANSPORT DM
Consultee Comment
Not archived · Council Link
MR MARK CURTIS - POLLUTION CONTROL
Consultee Comment
Not archived · Council Link
NEIGHBOUR NOTIFICATION LIST ISSUED 22/09/2025
Neighbour Notification List
Not archived · Council Link
OBJECTS
Public Comment
Not archived · Council Link
OBJECTS
Public Comment
Not archived · Council Link
OBJECTS
Public Comment
Not archived · Council Link
OBJECTS
Public Comment
Not archived · Council Link
OBJECTS
Public Comment
Not archived · Council Link
OBJECTS
Public Comment
Not archived · Council Link
OBJECTS
Public Comment
Not archived · Council Link
PLANNING DESIGN AND ACCESS STATEMENT - AUG 25
Design & Access Statement
Not archived · Council Link
Plan
Archived · Council Link
SUSTAINABILITY STATEMENT
Supporting document
Not archived · Council Link
THE PUBLIC PROTECTION TEAM (LAND CONTAMINATION)
Consultee Comment
Not archived · Council Link
WESSEX WATER - B10 FINAL APPROVAL
Supporting document
Not archived · Council Link

Take Action

Make your voice heard. Authorities need to hear from people who support new homes.

✉️ Write Email in Support View on Council Portal