← Back to Bristol City Council

Status

Pending consideration New housing
Received
28 Oct 2025
New dwellings
2

Summary

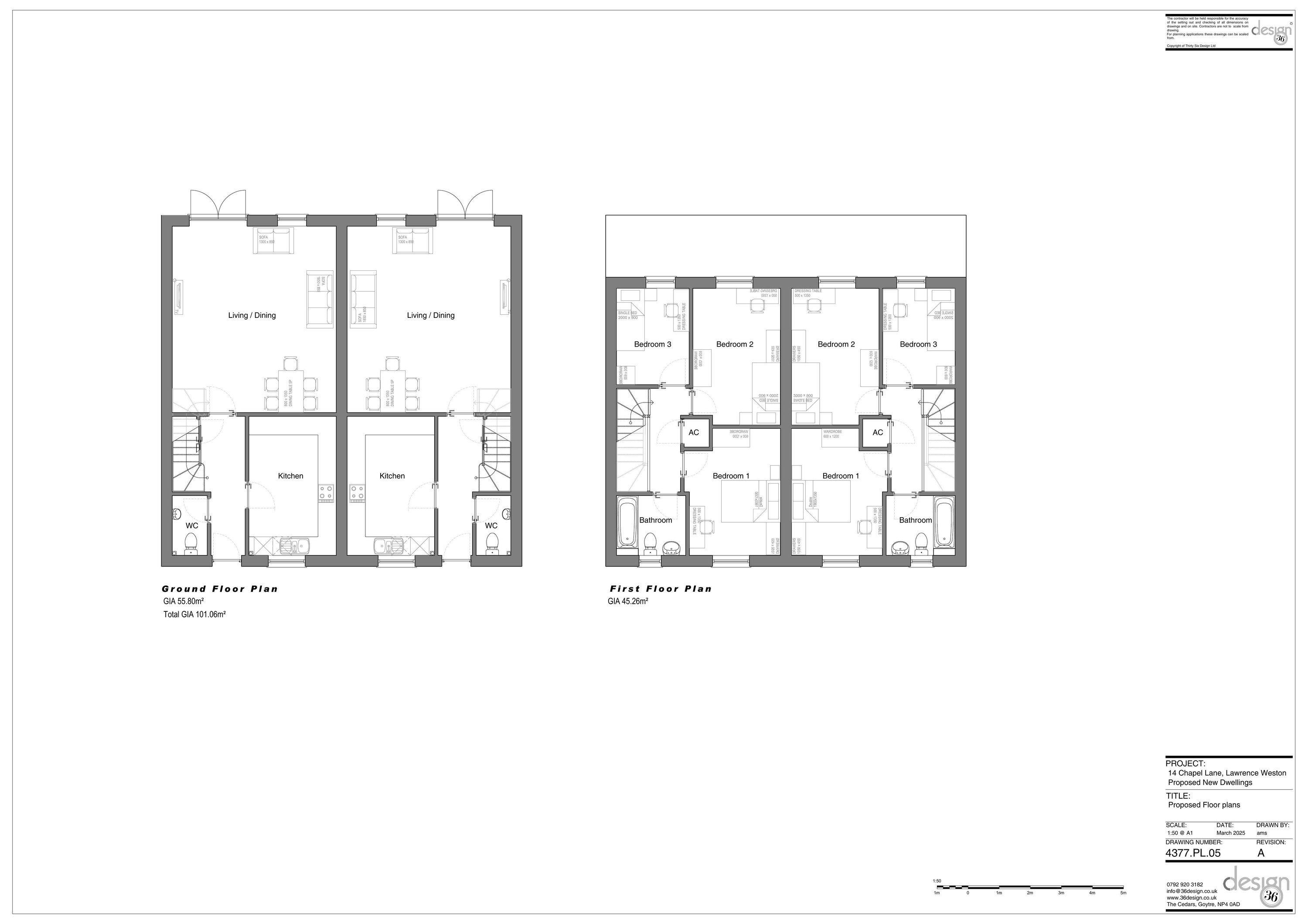
Demolition of bungalow and construction of two houses with parking and gardens.

Full Proposal

Demolition of existing bungalow and redevelopment of site, to provide two dwellinghouses with parking, amenity space, and associated works.

Documents

APPLICATION FORM
Application Form
Not archived · Council Link
ARBORICULTURAL OFFICER
Consultee Comment
Not archived · Council Link
BNG CONDITION ASSESSMENTS
Supporting document
Not archived · Council Link
BNG THE STATUTORY METRIC
Supporting document
Not archived · Council Link
BNG THE STATUTORY METRIC MACRO ENABLED
Supporting document
Not archived · Council Link
CIL FORM 1
CIL Documents
Not archived · Council Link
COVERING LETTER
Supporting document
Not archived · Council Link
ECOLOGICAL APPRAISAL AND BNG ASSESSMENT
Supporting document
Not archived · Council Link
ENERGY STATEMENT
Supporting document
Not archived · Council Link
EXISTING AND PROPOSED BLOCK PLAN
Plan
Not archived · Council Link
EXISTING AND PROPOSED STREET SCENE
Plan
Not archived · Council Link
EXISTING FLOOR PLANS AND ELEVATIONS
Plan
Not archived · Council Link
LOCATION PLAN
Plan
Not archived · Council Link
LOCATIONPLAN
Plan
Not archived · Council Link
MR MARK CURTIS - POLLUTION CONTROL
Consultee Comment
Not archived · Council Link
NEIGHBOURS ISSUED 17TH NOVEMBER 2025
Neighbour Notification List
Not archived · Council Link
PROPOSED ELEVATIONS
Plan
Not archived · Council Link
Plan
Archived · Council Link

Take Action

Make your voice heard. Authorities need to hear from people who support new homes.

✉️ Write Email in Support View on Council Portal