← Back to Bristol City Council

Status

Pending consideration Industrial
Received
12 Dec 2025
New dwellings
0

Full Proposal

Permanent retention of existing pre-cast concrete production building: construction of temporary associated development including concrete batching plant , cranes , offices, storage areas and parking , loading and unolding facilities.

Documents

AIR QUALITY
Supporting document
Not archived · Council Link
AIR QUALITY
Supporting document
Not archived · Council Link
APPLICATION FORM
Application Form
Not archived · Council Link
ARCHAEOLOGICAL DESK BASE ASSESSMENT
Supporting document
Not archived · Council Link
BIODIVERSITY NET GAIN EXEMPTION STATEMENT
Supporting document
Not archived · Council Link
BROADBAND AND CONNECTIVITY STATEMENT
Supporting document
Not archived · Council Link
CIL DOCUMENTS
CIL Documents
Not archived · Council Link
COVER LETTER
Supporting document
Not archived · Council Link
COVERING LETTER
Supporting document
Not archived · Council Link
DESIGN AND ACCESS STATEMENT
Design & Access Statement
Not archived · Council Link
DRAINAGE STRATEGY REPORT
Supporting document
Not archived · Council Link
ECOLOGICAL IMPACT ASSESSMENT
Supporting document
Not archived · Council Link
ENERGY STATEMENT
Supporting document
Not archived · Council Link
EXISTING AND PROPOSED DRAWING FOR APPROVAL
Plan
Not archived · Council Link
EXISTING AND PROPOSED DRAWINGS NOT FOR APPROVAL
Plan
Not archived · Council Link
EXTERNAL LIGHTING STRATEGY
Supporting document
Not archived · Council Link
FLOOD RISK ASSESSMENT
Supporting document
Not archived · Council Link
FLOOD WARNING AND EVACUATION PLAN
Supporting document
Not archived · Council Link
HABITATS REGULATION ASSESSMENT (SCREENING)
Supporting document
Not archived · Council Link
HEALTH IMPACT ASSESSMENT
Supporting document
Not archived · Council Link
LANDSCAPE AND VISUAL APPRAISAL
Supporting document
Not archived · Council Link
NOISE AND VIBRATION ASSESSMENT
Supporting document
Not archived · Council Link
PLANNING OBLIGATIONS STATEMENT
Supporting document
Not archived · Council Link
PLANNING STATEMENT
Supporting document
Not archived · Council Link
PRELIMINARY CONTAMINATED LAND RISK ASSESSMENT
Supporting document
Not archived · Council Link
PRELIMINARY GROUND INVESTIGATION SCOPE REPORT
Supporting document
Not archived · Council Link
PROPOSED BATCHING PLANTS
Plan
Not archived · Council Link
PROPOSED BUILDINGS B2 & B3 COMBINED ELEVATIONS & FLOOR PLANS
Plan
Not archived · Council Link
PROPOSED EXTERNAL LIGHTING REQUIREMENTS
Plan
Not archived · Council Link
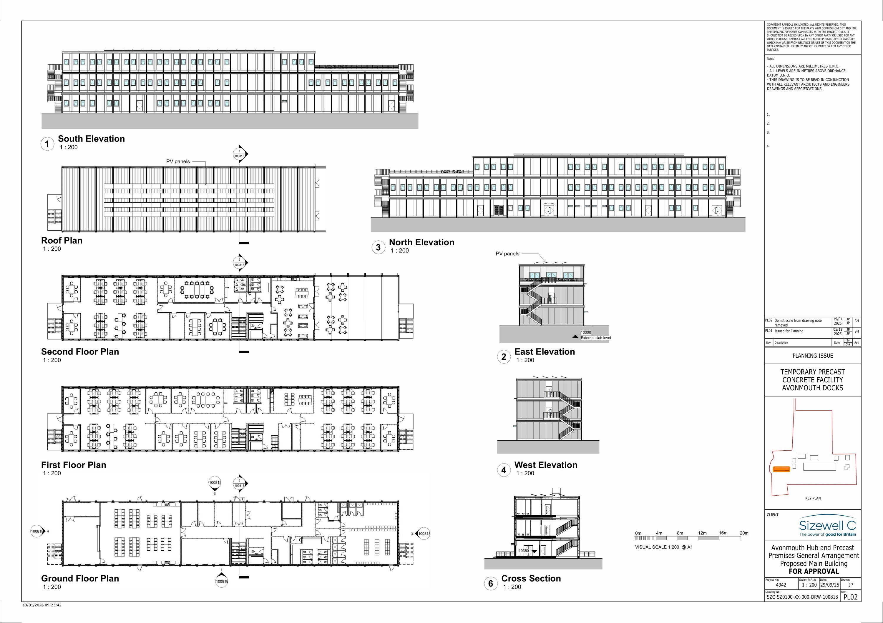
PROPOSED LAB, OFFICE & WELFARE ELEVATIONS AND FLOOR PLANS
Plan
Not archived · Council Link
PROPOSED SEGMENT FACTORY ELEVATIONS
Plan
Not archived · Council Link
Plan
Archived · Council Link
PROPOSED STORAGE BUILDING ELEVATIONS AND FLOOR PLAN
Plan
Not archived · Council Link
PROPOSED TOWER CRANES
Plan
Not archived · Council Link
PROPOSED TRANSER TROLLEY, GANTRY CRANES & AGGREGATE ST
Plan
Not archived · Council Link
Plan
Archived · Council Link
SITE SECTIONS
Plan
Not archived · Council Link
STATEMENT OF COMMUNITY INVOLVEMENT
Supporting document
Not archived · Council Link
SUSTAINABILITY STATEMENT
Supporting document
Not archived · Council Link
TRANSPORT STATEMENT
Supporting document
Not archived · Council Link
TRAVEL PLAN
Supporting document
Not archived · Council Link
WATER FRAMEWORK DIRECTIVE ASSESSMENT
Supporting document
Not archived · Council Link

Take Action

Make your voice heard. Authorities need to hear from people who support new homes.

✉️ Write Email in Support View on Council Portal