← Back to Bristol City Council

Status

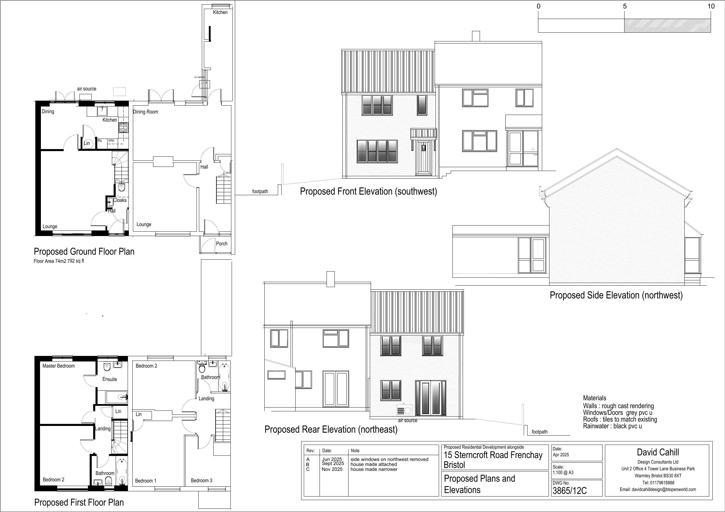
Pending consideration House extension
Received
Last month
New dwellings
0

Full Proposal

Application for Planning permission for attached two storey house.

Documents

APPLICATION FORM
Application Form
Not archived · Council Link
ARBORICULTURAL REPORT
Supporting document
Not archived · Council Link
BIODIVERSITY NET GAIN EXEMPTION STATEMENT
Supporting document
Not archived · Council Link
CIL - FORM 1 QUESTION FORM/ADDITIONAL INFORMATION
CIL Documents
Not archived · Council Link
COVER LETTER
Supporting document
Not archived · Council Link
ENERGY & SUSTAINABILITY STATEMENT
Supporting document
Not archived · Council Link
EXISTING FLOOR PLANS AND ELEVATIONS
Plan
Not archived · Council Link
Plan
Archived · Council Link
NEIGHBOUR NOTIFICATION LIST 20.01.2026
Neighbour Notification List
Not archived · Council Link
PROPOSED BIN AND BIKE STORE DETAILS
Plan
Not archived · Council Link
Plan
Archived · Council Link
Plan
Archived · Council Link

Take Action

Make your voice heard. Authorities need to hear from people who support new homes.

✉️ Write Email in Support View on Council Portal