← Back to Bromsgrove District Council

Status

Pending Consideration House extension
Received
24 Feb 2025
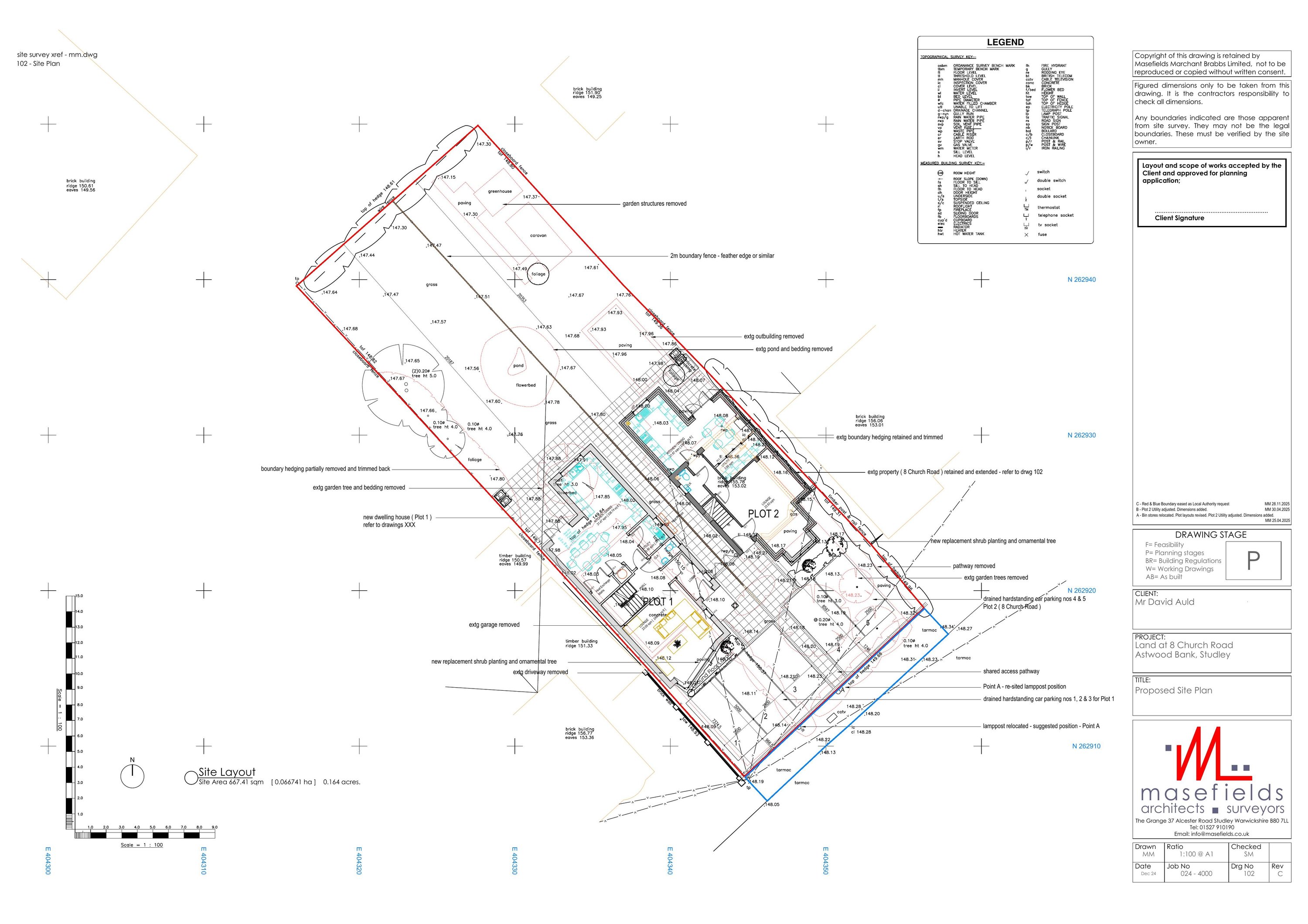
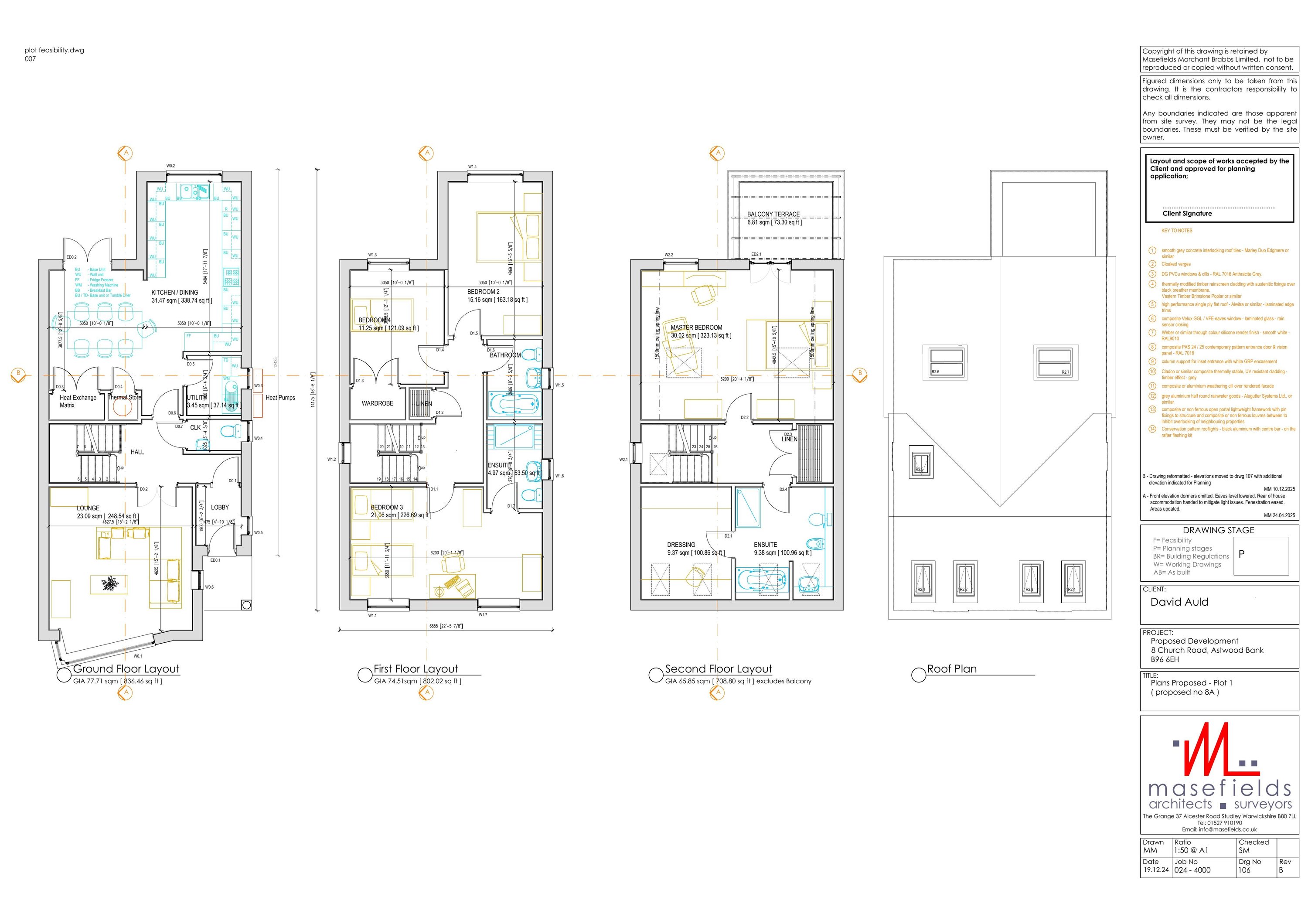
New dwellings
1

Full Proposal

Alteration & Extension of existing dwelling and erection of 1no additional dwelling

Documents

024 - 4000 - 103 - PLANS EXISTING - A1 - 50
Plans
Not archived · Council Link
024 - 4000 - 104 - PROPOSED STREET SCENE - A1 - 100
Plans
Not archived · Council Link
024 - 4000 - CIL FORM
Plans
Not archived · Council Link
AMENDED OWNERSHIP CERTIFICATE
Application Form
Not archived · Council Link
APPLICATIONFORMREDACTED
Application Form
Not archived · Council Link
BNG INFORMATION
Supporting Information
Not archived · Council Link
BNG INFORMATION
Supporting Information
Not archived · Council Link
ECOLOGY REPORT
Supporting Information
Not archived · Council Link
HIGHWAYS
Consultee Comments
Not archived · Council Link
LOCATION PLAN
Plans
Not archived · Council Link
STW
Consultee Comments
Not archived · Council Link
SUPERSEDED 024 - 4000 - 100 - LOCATION PLAN - A3 - 500
Plans
Not archived · Council Link
SUPERSEDED 024 - 4000 - 102 - PROPOSED SITE LAYOUT - A1 - 100
Plans
Not archived · Council Link
SUPERSEDED PLANS 024 - 4000 - 105 - PROPOSED PLOT 2 - A1 - 50
Plans
Not archived · Council Link
SUPERSEDED PLANS 024 - 4000 - 106 - PROPOSED PLOT 1 - A1 - 50
Plans
Not archived · Council Link

Take Action

Make your voice heard. Authorities need to hear from people who support new homes.

✉️ Write Email in Support View on Council Portal