← Back to Bromsgrove District Council

Status

Prior Approval Required Change of use
Received
28 Mar 2025
New dwellings
6

Summary

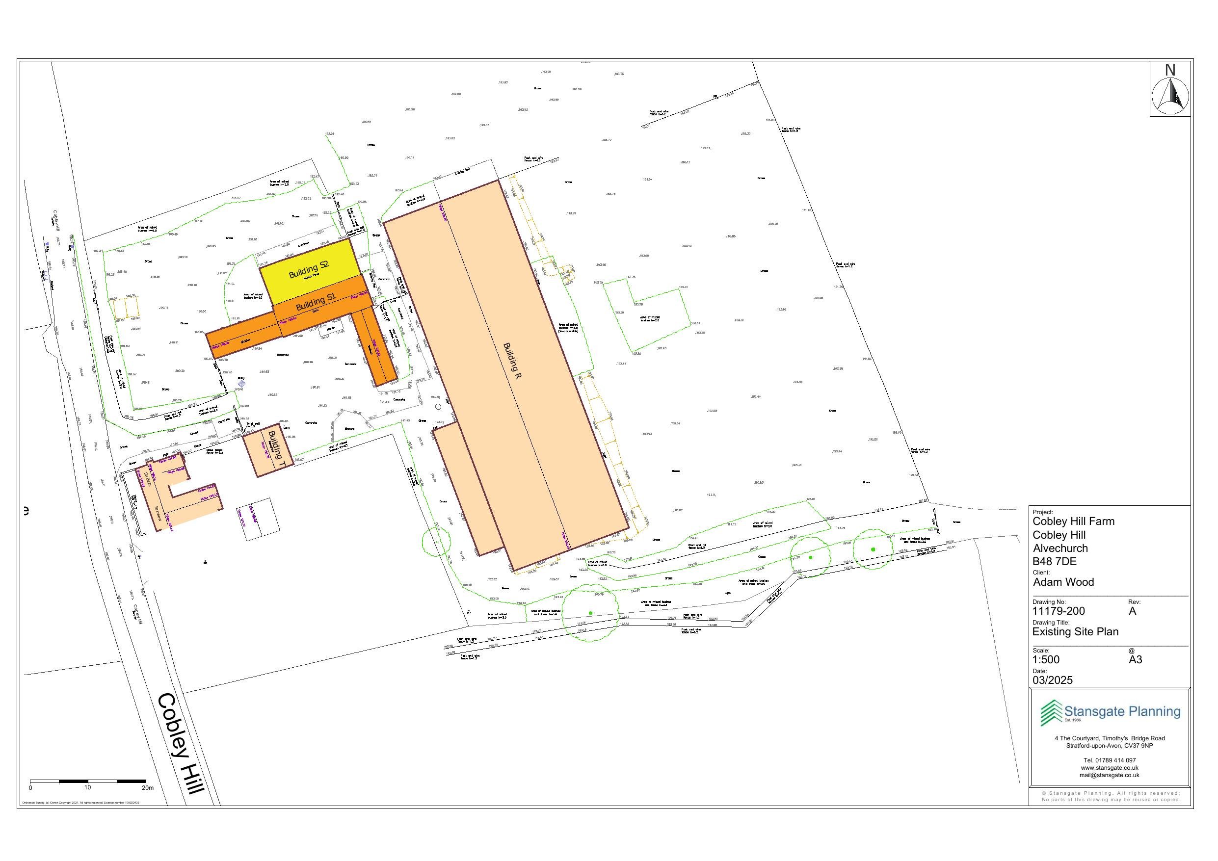
Change of use of building R at Cobley Hill Farm to six dwellings.

Full Proposal

Proposed change of use of building R at Cobley Hill Farm to 6 dwelling houses

Documents

11179-100 LOCATION PLAN (A3)
Plans
Not archived · Council Link
11179-300 EXISTING FLOOR PLAN (A1).
Plans
Not archived · Council Link
11179-301 PROPOSED FLOOR PLAN (A1).
Plans
Not archived · Council Link
11179-400 EXISTING ELEVATIONS (A1)
Plans
Not archived · Council Link
11179-401 PROPOSED ELEVATIONS (A1)
Plans
Not archived · Council Link
APPLICATIONFORMREDACTED
Application Form
Not archived · Council Link
COVERING LETTER.
Supporting Information
Not archived · Council Link
DN
Decision
Not archived · Council Link
HERITAGE IMPACT ASSESSMENT
Supporting Information
Not archived · Council Link
OBJECTION COMMENTS
Public Comments
Not archived · Council Link
OBJECTION COMMENTS
Public Comments
Not archived · Council Link
OBJECTION COMMENTS
Public Comments
Not archived · Council Link
PH 1 BAT AND BIRD SURVEY BUILDING R
Supporting Information
Not archived · Council Link
PLANNING STATEMENT
Supporting Information
Not archived · Council Link
SCHEDULE OF WORKS JANUARY 2025
Supporting Information
Not archived · Council Link
WRS BARN AND AGRICULTURAL BUILDING CONVERSION TO RESIDENTIAL DWELLINGS QUESTIONN
Supporting Information
Not archived · Council Link

Take Action

Make your voice heard. Authorities need to hear from people who support new homes.

✉️ Write Email in Support View on Council Portal