← Back to Bromsgrove District Council

Status

Pending Consideration New housing
Received
01 Sep 2025
New dwellings
7

Summary

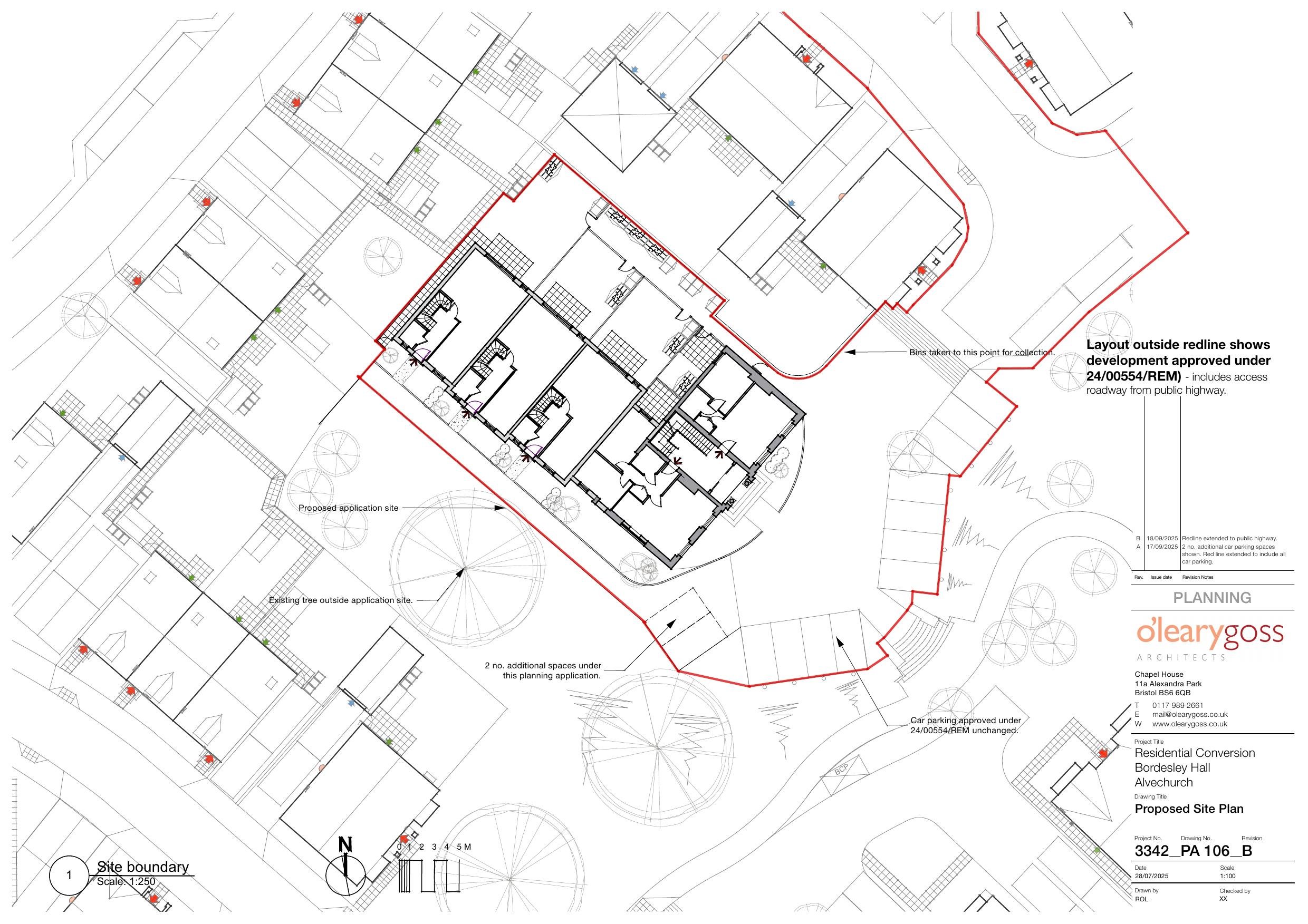
Conversion and new build to provide seven dwellings with associated infrastructure.

Full Proposal

Construction of 7 dwellings including the conversion of original south east part of the building to form 4 no. apartments and partial demolition of the north western part of the building and new build to form 3 no. houses and associated works and infrastructure.

Documents

250822 COVER LETTER - BORDESLEY HALL FULL 7 DWELLINGS
Supporting Information
Not archived · Council Link
33342_PA 120_A_PROPOSED GROUND FLOOR PLAN
Plans
Not archived · Council Link
3342_BORDESLEY DESIGN AND ACCESS STATEMENT
Plans
Not archived · Council Link
3342_PA 100_C_LOCATION PLAN
Plans
Not archived · Council Link
3342_PA 110__EXISTING GROUND FLOOR PLAN
Plans
Not archived · Council Link
3342_PA 111__EXISTING FIRST FLOOR PLAN
Plans
Not archived · Council Link
3342_PA 112__EXISTING ROOF PLAN
Plans
Not archived · Council Link
3342_PA 121_A_PROPOSED FIRST FLOOR PLAN
Plans
Not archived · Council Link
3342_PA 122_A_PROPOSED ROOF PLAN
Plans
Not archived · Council Link
3342_PA 130__EXISTING SOUTH-EAST AND SOUTH-WEST ELEVATIONS
Plans
Not archived · Council Link
3342_PA 131__EXISTING NORTH-WEST AND NORTH-EAST ELEVATIONS
Plans
Not archived · Council Link
3342_PA 140_A_PROPOSED SOUTH-EAST AND SOUTH-WEST ELEVATIONS
Plans
Not archived · Council Link
3342_PA 141_A_PROPOSED NORTH-WEST AND NORTH-EAST ELEVATIONS
Plans
Not archived · Council Link
APPLICATIONFORMREDACTED
Application Form
Not archived · Council Link
P20-1153_R002V1_BRS_HT - BUILT HERITAGE STATEMENT_26_08_25
Supporting Information
Not archived · Council Link

Take Action

Make your voice heard. Authorities need to hear from people who support new homes.

✉️ Write Email in Support View on Council Portal