← Back to Bromsgrove District Council

Status

Prior Approval Required Change of use
Received
03 Oct 2025
New dwellings
9

Summary

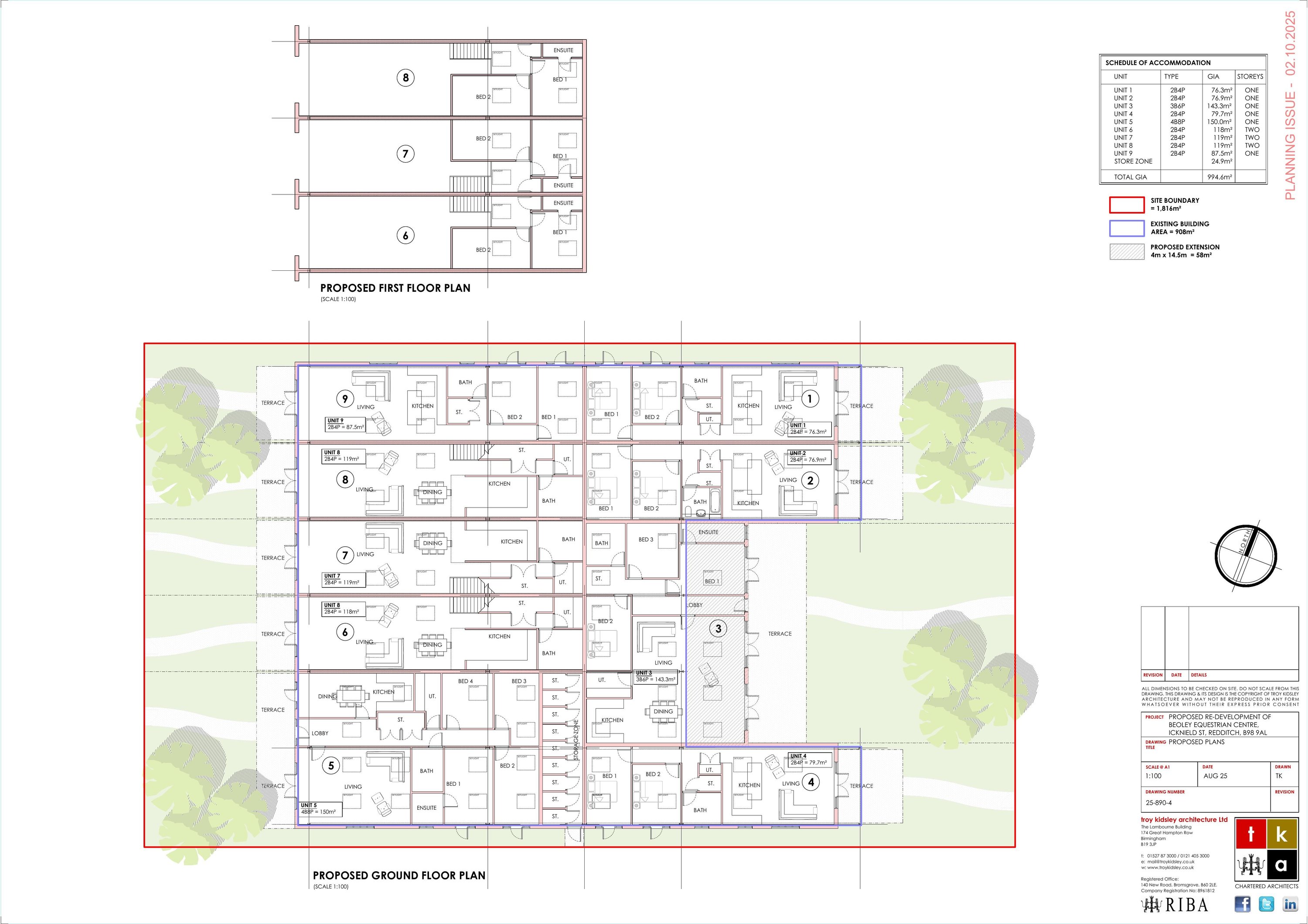
Prior approval to convert an agricultural building into nine residential dwellings with associated works.

Full Proposal

Notification for prior approval for the proposed change of use of an agricultural building to nine residential dwellings (Class C3) and associated operational development.

Documents

AMENDED PLANNING STATEMENT
Supporting Information
Not archived · Council Link
AMENDED PLANNING STATEMENT
Plans
Not archived · Council Link
AMENDED PROPOSED ELEVATIONS
Plans
Not archived · Council Link
AMENDED PROPOSED ELEVATIONS
Plans
Not archived · Council Link
APPLICATION FORM - REDACTED
Application Form
Not archived · Council Link
CONTAMINATED LAND COMMENTS
Consultee Comments
Not archived · Council Link
CPRE COMMENTS
Public Comments
Not archived · Council Link
DECISION NOTICE
Decision
Not archived · Council Link
FLOOD RISK ASSESSMENT
Supporting Information
Not archived · Council Link
FROM MANORGREEN
Public Comments
Not archived · Council Link
FROM NATE NEWTH
Public Comments
Not archived · Council Link
GIP PHASE 1 REPORT
Supporting Information
Not archived · Council Link
HIGHWAYS COMMENTS
Consultee Comments
Not archived · Council Link
LOCATION PLAN
Plans
Not archived · Council Link
MEASURED BUILDING SURVEY
Plans
Not archived · Council Link
MEASURED ELEVATIONS
Plans
Not archived · Council Link
MEASURED ELEVATIONS 2
Plans
Not archived · Council Link
ORDNANCE SURVEY
Plans
Not archived · Council Link
PLANNING STATEMENT
Supporting Information
Not archived · Council Link
PRELIMINARY ECOLOGICAL APPRAISAL
Plans
Not archived · Council Link
PROPOSED ELEVATIONS
Plans
Not archived · Council Link
Plans
Archived · Council Link
SITE SURVEY
Supporting Information
Not archived · Council Link
STRUCTURAL INSPECTION REPORT
Supporting Information
Not archived · Council Link
TOPOGRAPHICAL SURVEY
Supporting Information
Not archived · Council Link
TOPOGRAPHICAL SURVEY 2
Supporting Information
Not archived · Council Link
UNTIL 12TH DECEMBER 2025
Agreement to extend time
Not archived · Council Link

Take Action

Make your voice heard. Authorities need to hear from people who support new homes.

✉️ Write Email in Support View on Council Portal