← Back to Buckinghamshire Council

Status

Registered New housing
Received
n/a
New dwellings
4

Summary

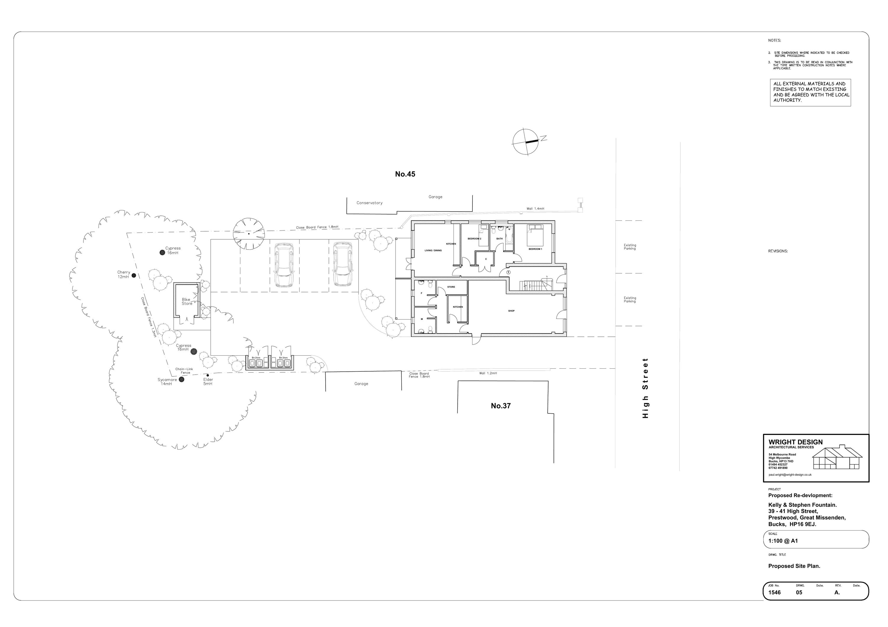
Demolish existing building and construct new building with hairdressers and four flats above.

Full Proposal

Proposed demolition of existing building and construction of new three storey building housing the existing hairdressers at ground floor and four flats over three floors, plus bike and bin stores and parking.

Documents

1546 - 01A.
Plan
Not archived · Council Link
Superseded
Archived · Council Link
1546 - 04 LOCATION PLAN
Plan - Location Plan
Not archived · Council Link
1546 - DESIGN AND ACCESS STATEMENT
Design and Access Statement
Not archived · Council Link
1546 - ECOLOGY AND TREES CHECKLIST
Additional Information
Not archived · Council Link
1546 - INFILTRATION TEST
Additional Information
Not archived · Council Link
39-41-HIGH-STREET - SURVEY.
Plan
Not archived · Council Link
APPLICATIONFORMREDACTED
Application Form and Certificate
Not archived · Council Link
ARBTECH - BAT EMERGENCE AND RE-ENTRY SURVEY
Additional Information
Not archived · Council Link
ARBTECH - BIODIVERSITY NET GAIN ASSESSMENT
Additional Information
Not archived · Council Link
ARBTECH - PRELIMINARY ECOLOGICAL APPRAISAL AND ROOST ASSESSMENT
Additional Information
Not archived · Council Link
BUILDING CONTROL
Consultation Letter
Not archived · Council Link
CALL-IN REQUEST - CLLR HEATHER WALLACE
Planning Committee
Not archived · Council Link
CALL-IN REQUEST - CLLR PETER MARTIN-NEUTRAL
Planning Committee
Not archived · Council Link
CONSULTING WITH TREES - ARBORICULTURAL REPORT
Additional Information
Not archived · Council Link
ECOLOGY OFFICER
Consultation Letter
Not archived · Council Link
GREAT MISSENDEN PARISH COUNCIL
Consultation Letter
Not archived · Council Link
PARISH EOT REQUEST
Consultation Letter
Not archived · Council Link
SOUTHERN WASTE DEVELOPMENT
Consultation Letter
Not archived · Council Link
STATUTORY BIODIVERSITY NET GAIN METRIC
Additional Information
Not archived · Council Link
STRATEGIC ACCESS OFFICER
Consultation Letter
Not archived · Council Link

Take Action

Make your voice heard. Authorities need to hear from people who support new homes.

✉️ Write Email in Support View on Council Portal