← Back to Buckinghamshire Council

Status

Registered New housing
Received
n/a
New dwellings
5

Summary

Erection of five dwellings with associated access, landscaping and infrastructure.

Full Proposal

Erection of five dwellings with associated access, landscaping and infrastructure

Documents

Plan - Site Plan
Archived · Council Link
Plan - Location Plan
Archived · Council Link
Plan - Site Plan
Archived · Council Link
(SK)091 PROPOSED BOUNDARY TREATMENT PLAN
Plan
Not archived · Council Link
(SK)092 PROPOSED PARKING AND CYCLE STRATEGY PLAN
Plan
Not archived · Council Link
(SK)093 PROPOSED REFUSE STRATEGY PLAN
Plan
Not archived · Council Link
(SK)094 PROPOSED SURFACE TREATMENT PLAN
Plan
Not archived · Council Link
Plan - Floor Plan
Archived · Council Link
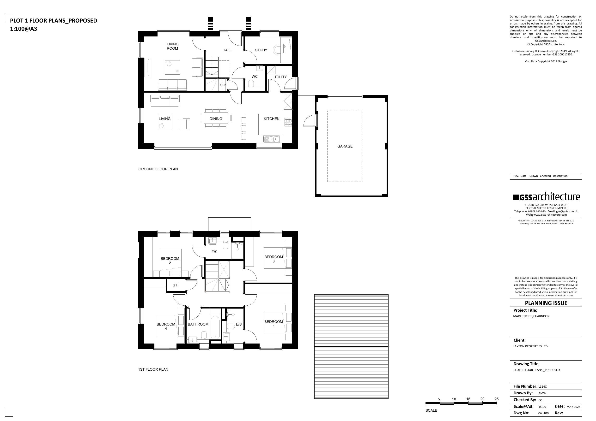
(SK)110 PLOT 1 - PROPOSED ELEVATIONS
Plan - Elevation
Not archived · Council Link
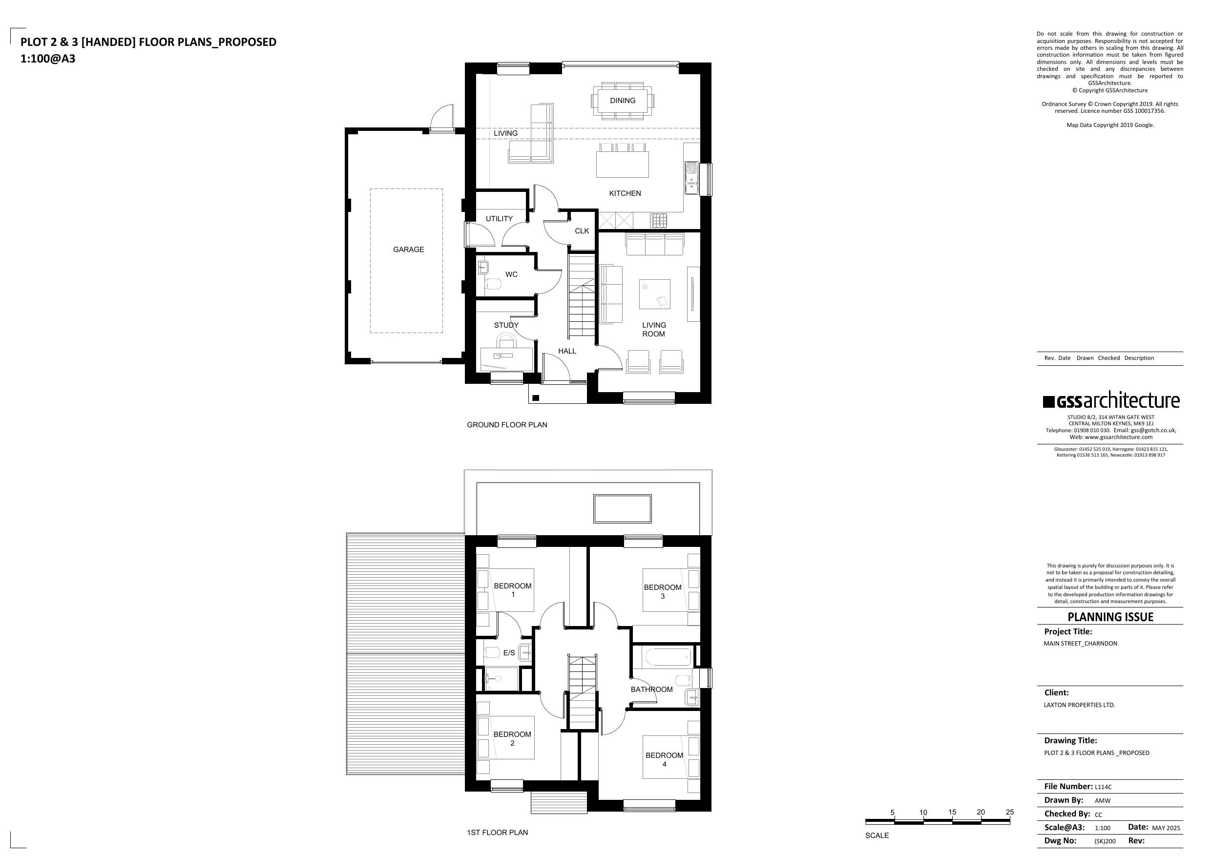
(SK)210 PLOT 2 AND 3 PROPOSED ELEVATIONS
Plan - Elevation
Not archived · Council Link
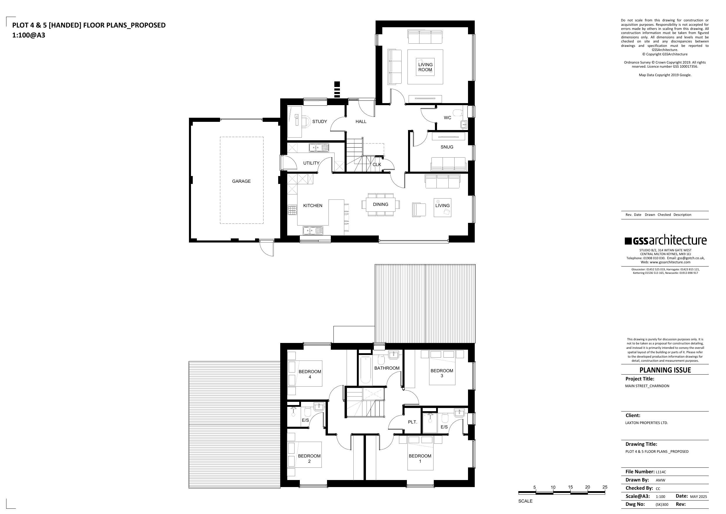
(SK)310 PLOT 4 AND 5 - PROPOSED ELEVATIONS
Plan - Elevation
Not archived · Council Link
(SK)500 STREET SCENES PROPOSED
Plan
Not archived · Council Link
0413-7-851 REV A & 0413-7-852 REV A - TOPOGRAPHIC SURVEY
Plan
Not archived · Council Link
7017-1500 REV P3 LEVELS STRATEGY
Plan
Not archived · Council Link
7017-1900 REV P4 IMPERMEABLE AREAS
Plan
Not archived · Council Link
7017-1910 REV P4 DRAINAGE STRATEGY
Plan
Not archived · Council Link
7017-SK005 REFUSE TRACKING
Plan
Not archived · Council Link
APPLICATIONFORMREDACTED
Application Form and Certificate
Not archived · Council Link
ART313.01.A ARBORICULTURAL SURVEY AND ASSESSMENT PLAN
Plan
Not archived · Council Link
ART313.02.0 TREE AND GROUND PROTECTION PLAN
Plan
Not archived · Council Link
ART313.03.0 LANDSCAPE PROPOSALS
Plan
Not archived · Council Link
BIODIVERSITY METRIC CALCULATION
Additional Information
Not archived · Council Link
BNG ASSESSMENT
Additional Information
Not archived · Council Link
COVERING LETTER
Covering Letter
Not archived · Council Link
DESIGN AND ACCESS STATEMENT
Design and Access Statement
Not archived · Council Link
DRAINAGE COMMENTS, 28.11.2025
Consultation Letter
Not archived · Council Link
ECOLOGY
Consultation Letter
Not archived · Council Link
ECOLOGY AND TREES CHECKLIST
Additional Information
Not archived · Council Link
ENVIRONMENTAL HEALTH COMMENTS 03.11.2025
Consultee Comment
Not archived · Council Link
FLOOD RISK ASSESSMENT AND DRAINAGE STRATEGY
Additional Information
Not archived · Council Link
GEO ENVIRONMENTAL ASSESSMENT
Additional Information
Not archived · Council Link
HIGHWAY TECHNICAL NOTE
Additional Information
Not archived · Council Link
HIGHWAYS
Consultation Letter
Not archived · Council Link
HIGHWAYS COMMENTS 18.12.2025
Consultee Comment
Not archived · Council Link
PARISH
Consultation Letter
Not archived · Council Link
PARISH EOT REQUEST
Consultation Letter
Not archived · Council Link
PLANNING STATEMENT
Additional Information
Not archived · Council Link
PRELIMINARY ECOLOGICAL APPRAISAL
Additional Information
Not archived · Council Link
PROJECT SPECIFICATION FOR AN ARCHAEOLOGICAL EVALUATION
Additional Information
Not archived · Council Link
REPTILE SURVEY REPORT
Additional Information
Not archived · Council Link

Take Action

Make your voice heard. Authorities need to hear from people who support new homes.

✉️ Write Email in Support View on Council Portal