← Back to Buckinghamshire Council

Status

Registered New housing
Received
n/a
New dwellings
1

Full Proposal

Demolition of existing dwelling & construction of new (self build) dwelling & garage

Documents

Plan
Archived · Council Link
APPLICATIONFORMREDACTED
Application Form and Certificate
Not archived · Council Link
DESIGN ACCESS PLANNING STATEMENT
Additional Information
Not archived · Council Link
ENVIRONMENTAL HEALTH
Consultation Letter
Not archived · Council Link
F105-ECOLOGY-AND-TREES-CHECKLIST-V3
Plan
Not archived · Council Link
FINAL ECOLOGICAL APPRAISAL 2025
Additional Information
Not archived · Council Link
FINAL EMERGENCE 2025
Additional Information
Not archived · Council Link
HIA MURSLEY - FINAL
Additional Information
Not archived · Council Link
Plan
Archived · Council Link
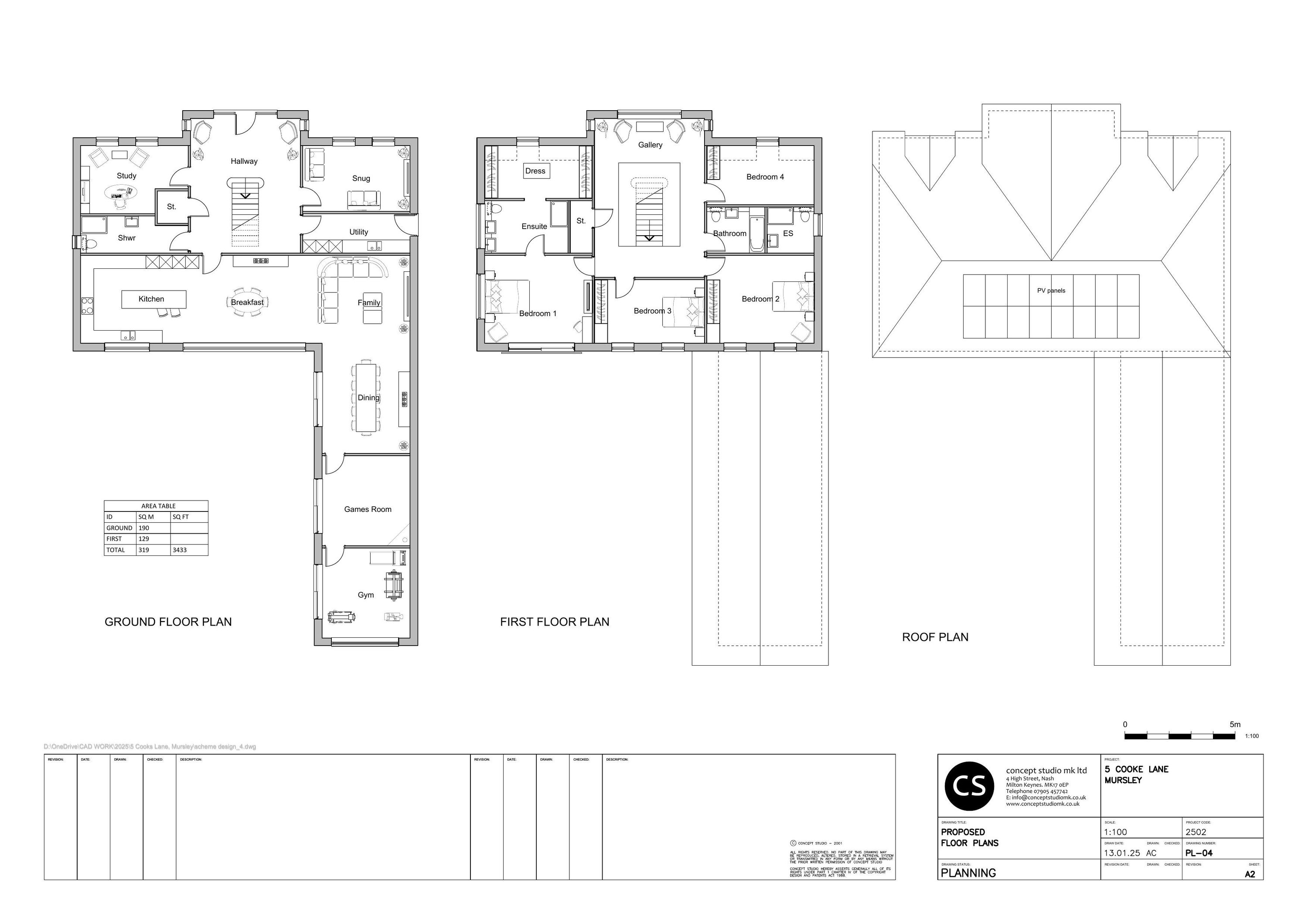
PL-02 LOCATION PLAN
Plan
Not archived · Council Link
PL-03 PROPOSED ELEVATIONS
Plan
Not archived · Council Link
PL-05 PROPOSED GARAGE
Plan
Not archived · Council Link
PLANNING, DESIGN & ACCESS STATEMENT
Additional Information
Not archived · Council Link
PROFORMA FOR SCHEMES THAT ARE SELF OR CUSTOM BUILD
Additional Information
Not archived · Council Link
SU-01 EXISITNG PLAN AND ELEVATIONS
Plan
Not archived · Council Link
SUSTAINABILITY REPORT
Additional Information
Not archived · Council Link
TREE SURVEY REPORT MAY2025
Additional Information
Not archived · Council Link

Take Action

Make your voice heard. Authorities need to hear from people who support new homes.

✉️ Write Email in Support View on Council Portal