← Back to Buckinghamshire Council

Status

Registered Other
Received
n/a
New dwellings
0

Full Proposal

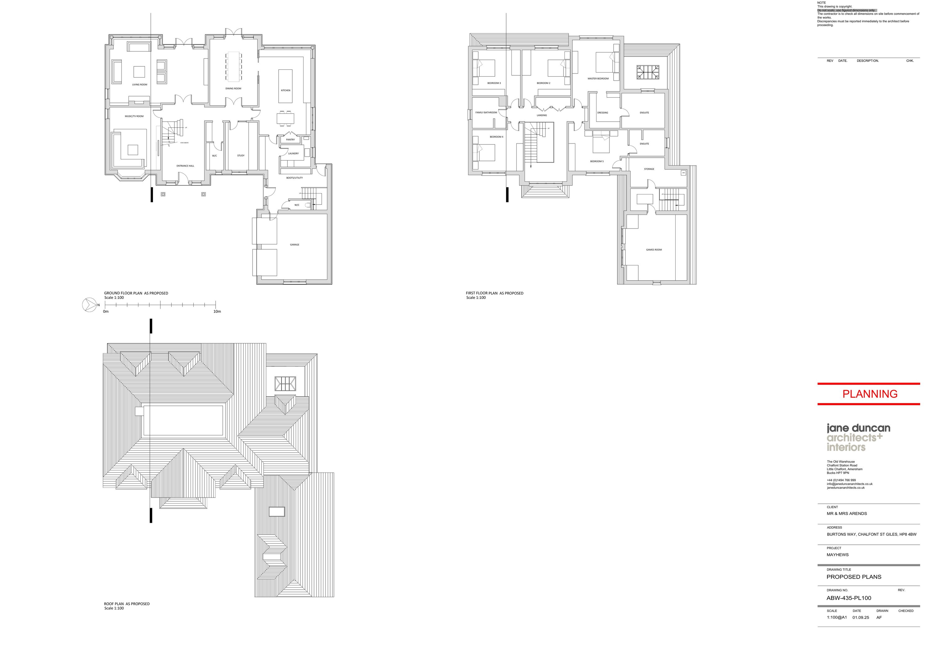
Replacement dwelling with integrated garage together with associated hardstanding and landscaping

Documents

ABW435 - 200 - PROPOSED ELEVATIONS
Plan
Not archived · Council Link
ABW435 DESIGN AND ACCESS STATEMENT DEC25 OPT
Design and Access Statement
Not archived · Council Link
APPLICATIONFORMREDACTED
Application Form and Certificate
Not archived · Council Link
BAT SURVEY J1131.009_V.2 OPT
Plan
Not archived · Council Link
ECOLOGY TREES CHECKLIST
Additional Information
Not archived · Council Link
HIGHWAYS COMMENTS
Consultation Letter
Not archived · Council Link
LUG9.0 - EXISTING SITE SURVEY
Plan
Not archived · Council Link
LUG9.1 - EXISTING FLOOR PLANS
Plan
Not archived · Council Link
LUG9.2 EXISTING ELEVATIONS SECTIONS
Plan
Not archived · Council Link
SELF-BUILD DECLARATION FORM
Additional Information
Not archived · Council Link

Take Action

Make your voice heard. Authorities need to hear from people who support new homes.

✉️ Write Email in Support View on Council Portal