← Back to Buckinghamshire Council

Status

Registered New housing
Received
n/a
New dwellings
5

Full Proposal

Demolition of existing structures. Alterations and conversion of agricultural buildings to 5no. residential dwellings. Erection of 2no.car ports with electric charging points

Documents

2527 DESIGN AND ACCESS STATEMENT_REV A
Additional Information
Not archived · Council Link
2527_251209_10 - EXISTING CHICKEN PENS
Plan
Not archived · Council Link
2527_251209_12 - PROPOSED BLOCK PLAN
Plan
Not archived · Council Link
2527_251209_14 - PROPOSED ELEVATIONS PLOT 1
Plan
Not archived · Council Link
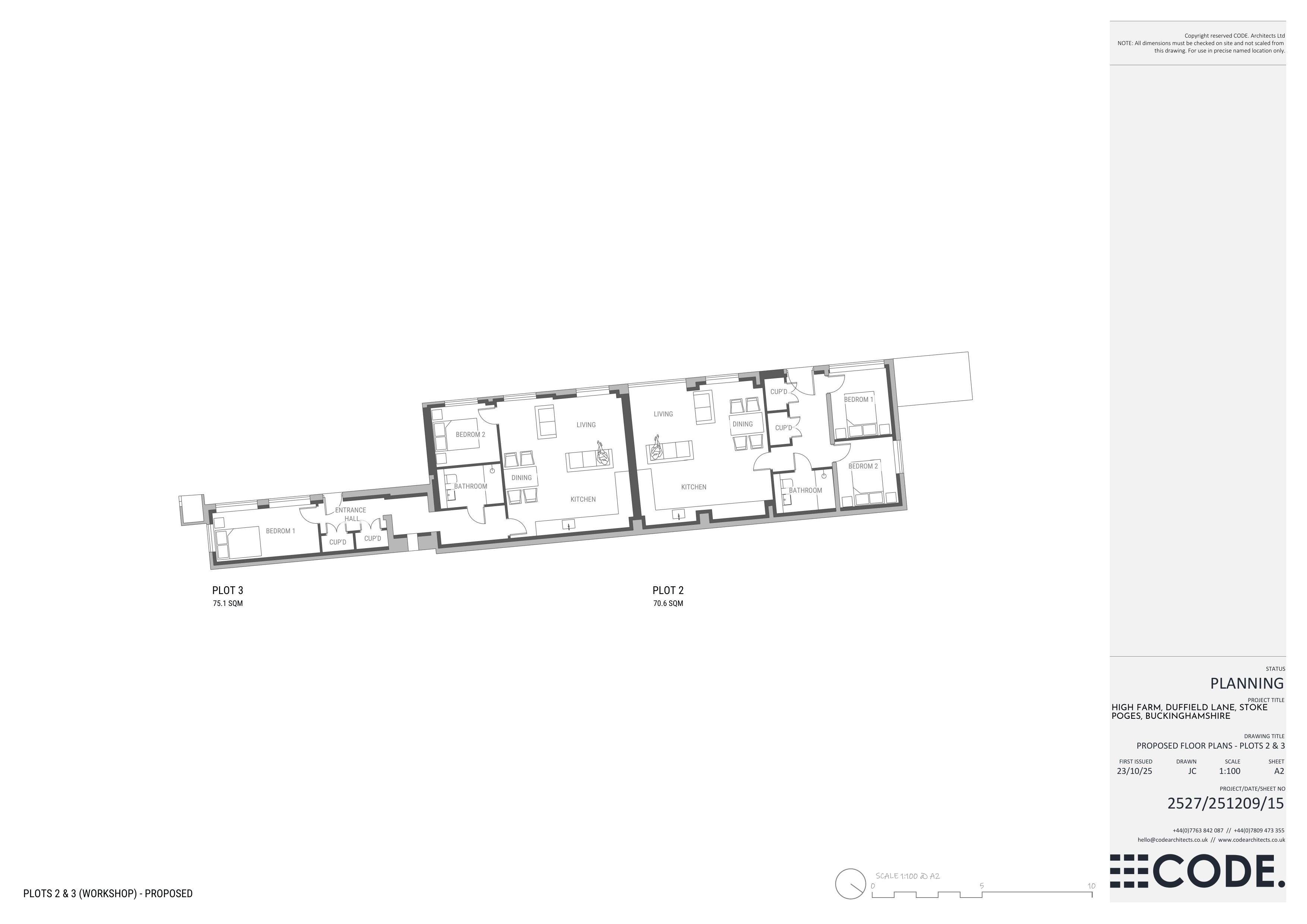
2527_251209_16 - PROPOSED ELEVATIONS PLOTS 2 AND 3
Plan
Not archived · Council Link
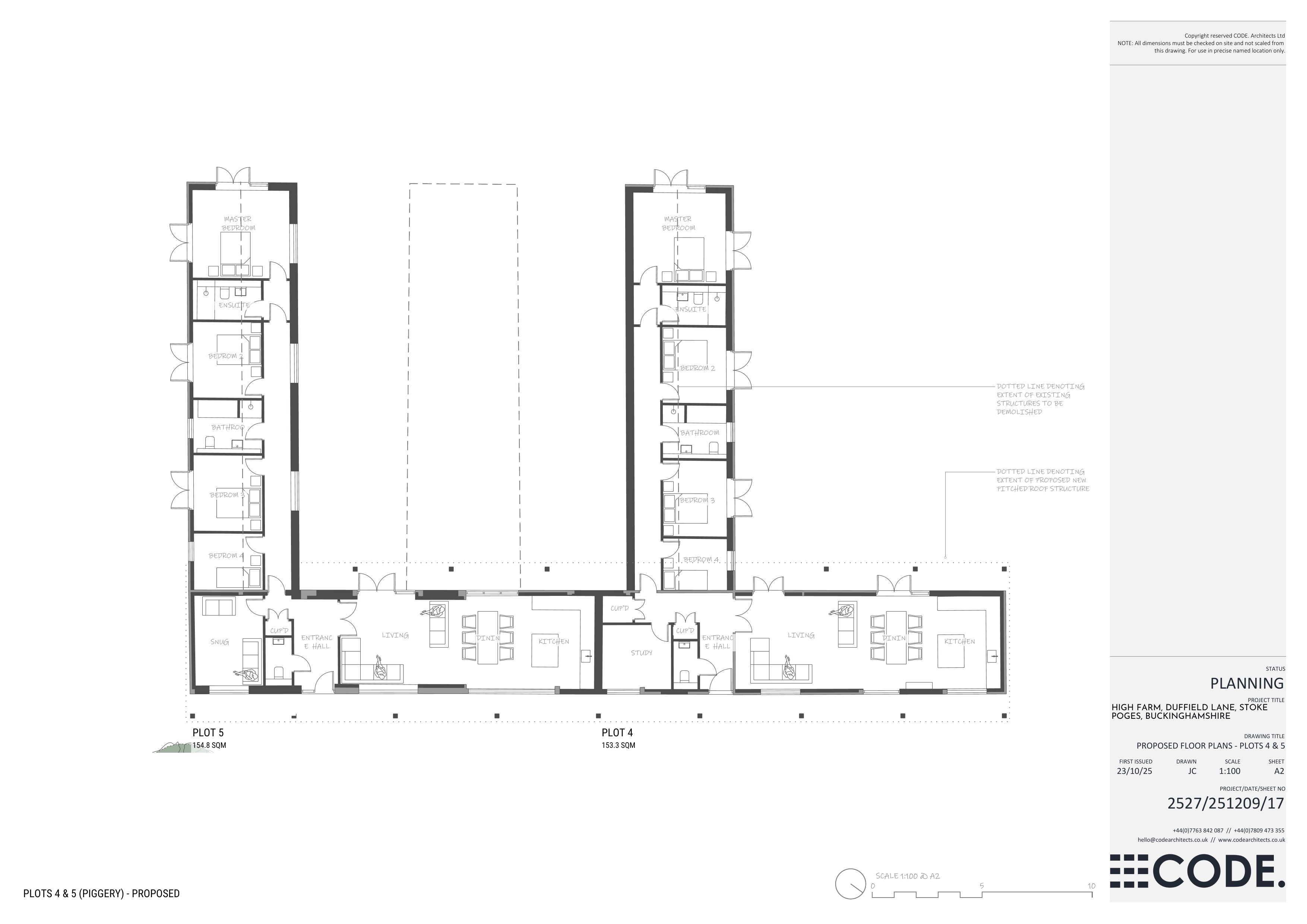
2527_251209_18 - PROPOSED ELEVATIONS PLOTS 4 AND 5
Plan
Not archived · Council Link
2527_251209_19 - PROPOSED CARPORT
Plan
Not archived · Council Link
2527_251209_2 - LOCATION PLAN
Plan
Not archived · Council Link
2527_251209_4 - EXISTING PLAN BARN
Plan
Not archived · Council Link
2527_251209_5 - EXISTING ELEVATIONS BARN
Plan
Not archived · Council Link
2527_251209_6 - EXISTING PLAN WORKSHOP
Plan
Not archived · Council Link
2527_251209_7 - EXISTING ELEVATIONS WORKSHOP
Plan
Not archived · Council Link
2527_251209_8 - EXISTING PLAN PIGGERY
Plan
Not archived · Council Link
2527_251209_9 - EXISTING ELEVATIONS PIGGERY
Plan
Not archived · Council Link
APPENDIX 1 - MANSELL AND TONBRIDGE DECISION
Additional Information
Not archived · Council Link
APPENDIX 2 - HOLYWELL FARM - FALLBACK
Additional Information
Not archived · Council Link
APPENDIX 3 - TRAYLESFIELD FARM
Additional Information
Not archived · Council Link
APPENDIX 4 - FALLBACK AND SUSTAINABLITY - MANOR FARM
Additional Information
Not archived · Council Link
APPENDIX 5 - APPEAL DECISION - 3278018
Additional Information
Not archived · Council Link
APPLICATIONFORMREDACTED
Application Form and Certificate
Not archived · Council Link
BAT EMERGENCE SURVEY
Additional Information
Not archived · Council Link
BNG MATRIX
Additional Information
Not archived · Council Link
BNG PRE- AND POST-DEVELOPMENT
Additional Information
Not archived · Council Link
BNG PRE-DEVELOPMENT ONLY
Additional Information
Not archived · Council Link
CONVERTIBILITY REPORT
Additional Information
Not archived · Council Link
F105-ECOLOGY-AND-TREES-CHECKLIST-
Additional Information
Not archived · Council Link
PEA
Additional Information
Not archived · Council Link
PLANNING STATEMENT - FALLBACK
Additional Information
Not archived · Council Link
REPTILE SURVEY
Additional Information
Not archived · Council Link
WASTE AND RECYCLING STRATEGY
Additional Information
Not archived · Council Link

Take Action

Make your voice heard. Authorities need to hear from people who support new homes.

✉️ Write Email in Support View on Council Portal