← Back to Burnley Borough Council

Status

Unknown House extension
Received
20 Mar 2025
New dwellings
0

Summary

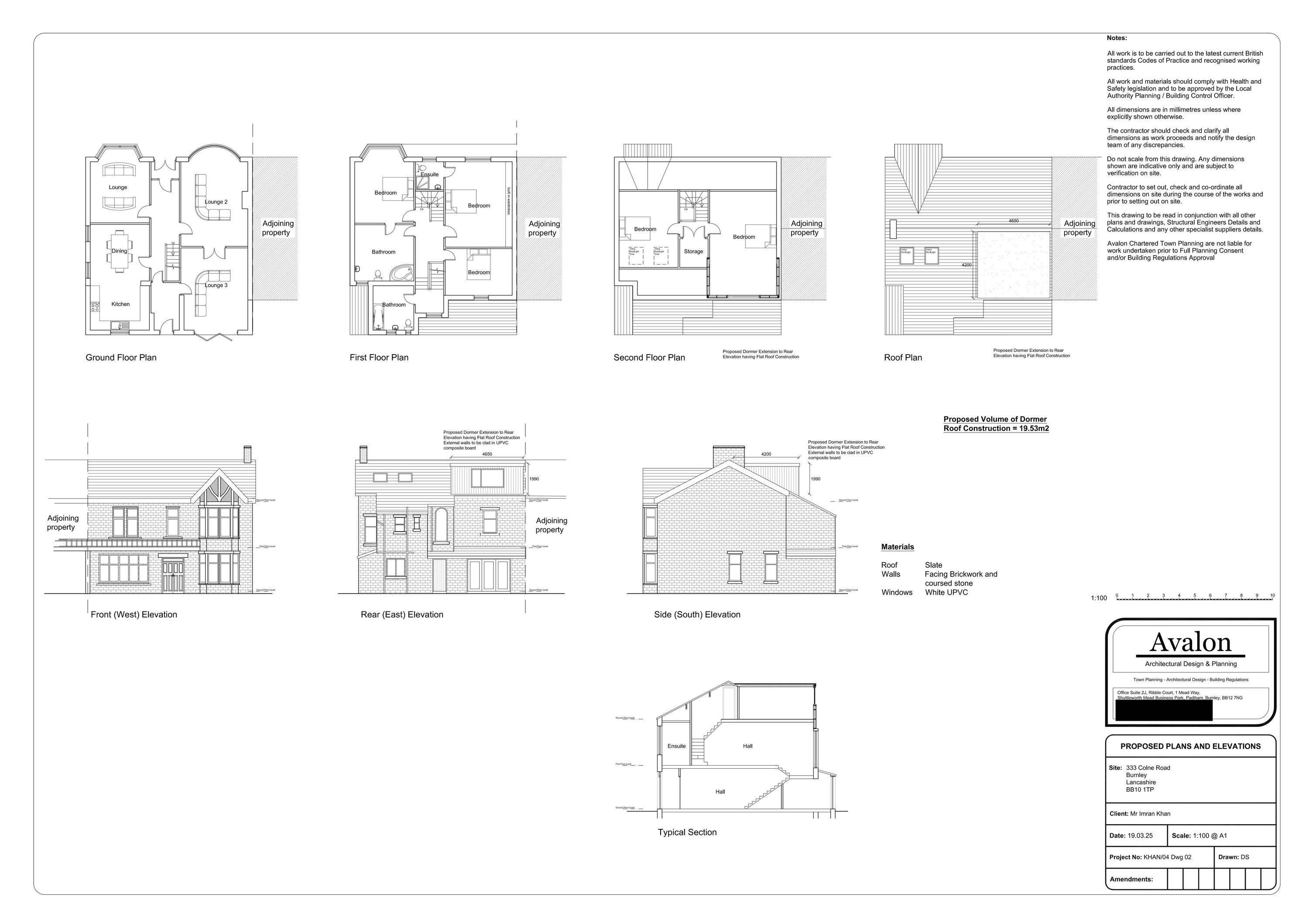
Rear dormer roof extension to form a bedroom within existing roof space.

Full Proposal

Proposed erection of dormer roof to rear elevation of dwelling to form bedroom within existing roof space

Documents

ACK LAWFUL DEV CERTIFICATE
Correspondence
Not archived · Council Link
APPLICATION FORM REDACTED
Application Form
Not archived · Council Link
DECISION NOTICE
Planning Decision
Not archived · Council Link
EXISTING PLANS AND ELEVATIONS
Drawing
Not archived · Council Link
LOCATION PLAN
Drawing
Not archived · Council Link
OFFICER REPORT
Officer Report
Not archived · Council Link
Drawing
Archived · Council Link

Take Action

Make your voice heard. Authorities need to hear from people who support new homes.

✉️ Write Email in Support View on Council Portal