← Back to Burnley Borough Council

Status

Unknown Change of use
Received
06 Jan 2025
New dwellings
0

Full Proposal

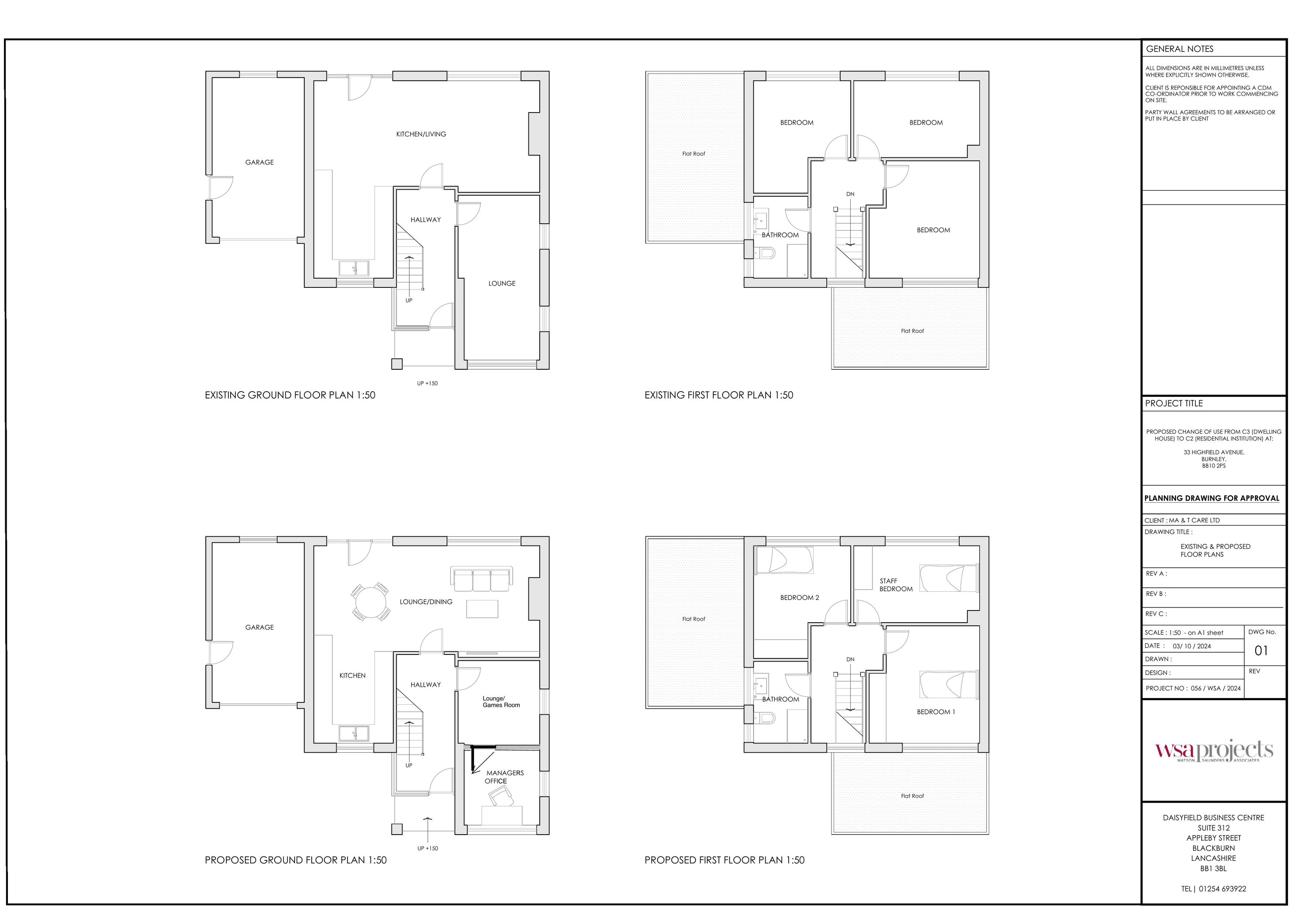
Proposal from an existing family home dwelling (Class C3(a), to use as a residential children's home dwelling for two children (Class C2). Age from 8 to 18 with priority to local children 1 bed in the home will be given to LCC exclusively for a local placement.

Documents

APPLICATION FORM REDACTED
Application Form
Not archived · Council Link
CHILDRENS HOME REGULATIONS QUALITY AND PURPOSE OF CARE SECTION 3
Other
Not archived · Council Link
CONSULTATION OTHER SERVICE UNITS
Consultation
Not archived · Council Link
CONSULTATION OTHER SERVICE UNITS
Consultation
Not archived · Council Link
DECISION NOTICE
Planning Decision
Not archived · Council Link
DESIGN AND ACCESS STATEMENT
Other
Not archived · Council Link
Superseded Drawing
Archived · Council Link
HIGHWAYS RESPONSE
Consultee Comment
Not archived · Council Link
HIGHWAYS RESPONSE - ADDITIONAL COMMENTS
Consultee Comment
Not archived · Council Link
LCC POLICY, COMMISSIONING AND CHILDREN'S HEALTH
Consultee Comment
Not archived · Council Link
LOCATION PLAN
OS Extract
Not archived · Council Link
Drawing
Archived · Council Link
NEIGHBOUR CONSULTATION
Consultation
Not archived · Council Link
OFFICER REPORT
Officer Report
Not archived · Council Link
PARKING
Correspondence
Not archived · Council Link
PARKING PLAN
Drawing
Not archived · Council Link
PLANNING STATEMENT
Other
Not archived · Council Link
RISK ASSESSMENT
Other
Not archived · Council Link
STANDARD ACKNOWLEDGEMENT
Correspondence
Not archived · Council Link
STANDARD CONSULTATION
Consultation
Not archived · Council Link
STANDARD CONSULTATION
Consultation
Not archived · Council Link
WARD COUNCILLOR CONSULTATION
Consultation
Not archived · Council Link

Take Action

Make your voice heard. Authorities need to hear from people who support new homes.

✉️ Write Email in Support View on Council Portal