← Back to Burnley Borough Council

Status

Unknown Change of use
Received
08 Jan 2025
New dwellings
1

Summary

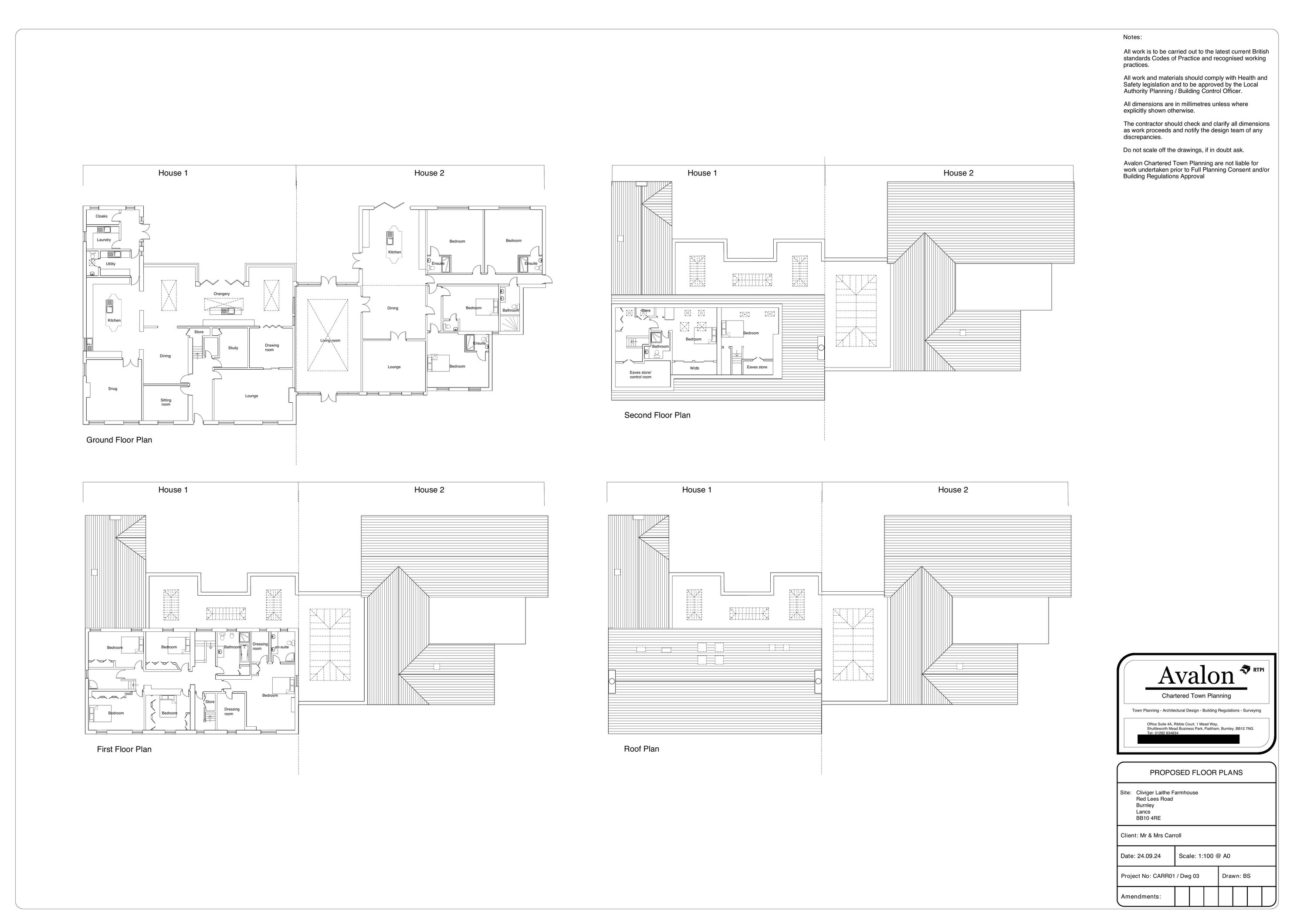
Subdivision of one dwelling into two separate residential units.

Full Proposal

Subdivision of existing dwelling into 2 separate dwellings

Documents

BNG TECHNICAL NOTE
Other
Not archived · Council Link
CONSULTATION OTHER SERVICE UNITS
Consultation
Not archived · Council Link
CONSULTATION OTHER SERVICE UNITS
Consultation
Not archived · Council Link
DECISION NOTICE
Planning Decision
Not archived · Council Link
DESIGN AND ACCESS STATEMENT
Other
Not archived · Council Link
ENVIRONMENTAL HEALTH RESPONSE
Consultee Comment
Not archived · Council Link
EXISTING ELEVATIONS
Drawing
Not archived · Council Link
EXISTING FLOOR PLANS
Drawing
Not archived · Council Link
Drawing
Archived · Council Link
LCC HIGHWAYS RESPONSE
Consultee Comment
Not archived · Council Link
LOCATION PLAN
Drawing
Not archived · Council Link
NEIGHBOUR CONSULTATION
Consultation
Not archived · Council Link
OFFICER REPORT
Officer Report
Not archived · Council Link
PARISH COUNCIL CONSULTATION
Consultation
Not archived · Council Link
PROPOSED ELEVATIONS
Drawing
Not archived · Council Link
Drawing
Archived · Council Link
Drawing
Archived · Council Link
REDACTED APPLICATION FORM
Application Form
Not archived · Council Link
STANDARD ACKNOWLEDGEMENT
Correspondence
Not archived · Council Link
STANDARD CONSULTATION
Consultation
Not archived · Council Link
THE STATUTORY BIODIVERSITY METRIC CALCULATION TOOL
Other
Not archived · Council Link
WARD COUNCILLOR CONSULTATION
Consultation
Not archived · Council Link

Take Action

Make your voice heard. Authorities need to hear from people who support new homes.

✉️ Write Email in Support View on Council Portal