← Back to Burnley Borough Council

Status

Unknown New housing
Received
09 Apr 2025
New dwellings
1

Summary

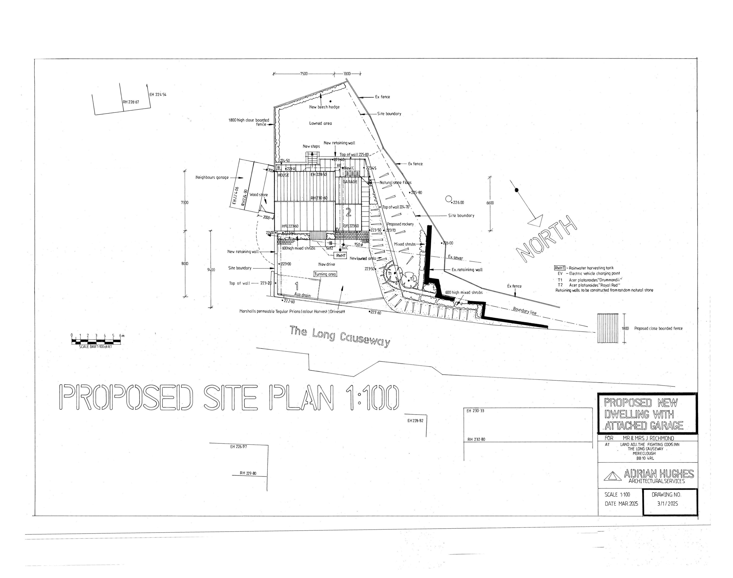
Erection of a dwelling with attached single garage.

Full Proposal

Erection of dwelling with attached single garage

Documents

APPLICATION FORM REDACTED
Application Form
Not archived · Council Link
CONSULTATION OTHER SERVICE UNITS
Consultation
Not archived · Council Link
DECISION NOTICE
Planning Decision
Not archived · Council Link
ENVIRONMENTAL HEALTH - RESPONSE
Consultee Comment
Not archived · Council Link
GMEU RESPONSE
Consultee Comment
Not archived · Council Link
HISTORIC ENVIRONMENT TEAM - RESPONSE
Consultee Comment
Not archived · Council Link
LCC HIGHWAYS AND TRANSPORT - RESPONSE
Consultee Comment
Not archived · Council Link
LCC REVISED COMMENTS
Consultee Comment
Not archived · Council Link
LOCATION PLAN
OS Extract
Not archived · Council Link
NEIGHBOUR CONSULTATION
Consultation
Not archived · Council Link
OFFICER REPORT
Officer Report
Not archived · Council Link
PARISH COMMENT
Consultee Comment
Not archived · Council Link
PARISH COUNCIL CONSULTATION
Consultation
Not archived · Council Link
PHOTO 1
Photo
Not archived · Council Link
PHOTO 1
Photo
Not archived · Council Link
PHOTO 2
Drawing
Not archived · Council Link
PHOTO 2
Photo
Not archived · Council Link
PHOTO 3
Photo
Not archived · Council Link
PHOTO 3
Photo
Not archived · Council Link
PROPOSED ELEVATIONS AND SECTIONS
Drawing
Not archived · Council Link
SELF-BUILD PRO-FORMA
Other
Not archived · Council Link
Drawing
Archived · Council Link
STANDARD ACKNOWLEDGEMENT
Correspondence
Not archived · Council Link
STANDARD CONSULTATION
Consultation
Not archived · Council Link
STANDARD CONSULTATION
Consultation
Not archived · Council Link
STANDARD CONSULTATION
Consultation
Not archived · Council Link
STANDARD CONSULTATION
Consultation
Not archived · Council Link
SURFACE WATER ASSESSMENT
Report
Not archived · Council Link
TOPOGRAPHICAL SURVEY
Drawing
Not archived · Council Link
TOPOGRAPHICAL SURVEY
Drawing
Not archived · Council Link
UNITED UTILITIES RESPONSE
Consultee Comment
Not archived · Council Link
WARD COUNCILLOR CONSULTATION
Consultation
Not archived · Council Link

Take Action

Make your voice heard. Authorities need to hear from people who support new homes.

✉️ Write Email in Support View on Council Portal